The CSU School of Dentistry building at Wagga-Wagga provides specialist dental teaching facilities for 150 students and a large Public Dental Clinic to serve southern NSW. The building’s design expresses a sophisticated rural aesthetic linking it strongly through form, colour, and materials to its gentle bush site to create a beautiful and striking symbol for the campus.
![]() |
| © Christian Mushenko |
The project was intended to be a built symbol for the University, expressing the precision and advanced technology of Dental Science, the technology of sustainable architecture and its strong relationship to its rural place. Light steel framed structures support large steel trussed roofs under which are built free standing component buildings clad in bright corrugated steel panels. The forms are reminiscent both of rural sheds and high technology manufacturing plants.
Two main wings are laid out along the natural contours of the site; each has a deep layering of structure, sunshading and facade that create a series of permeable veils. The dark colour and slenderness of the steel structure and the complexity and colour of the overlapping layers create an impression that the building is a natural part of the site, reminiscent of the stands of gums which surround it The building shares the site with the endangered Superb Parrot and takes their bright hues for its internal colour scheme.
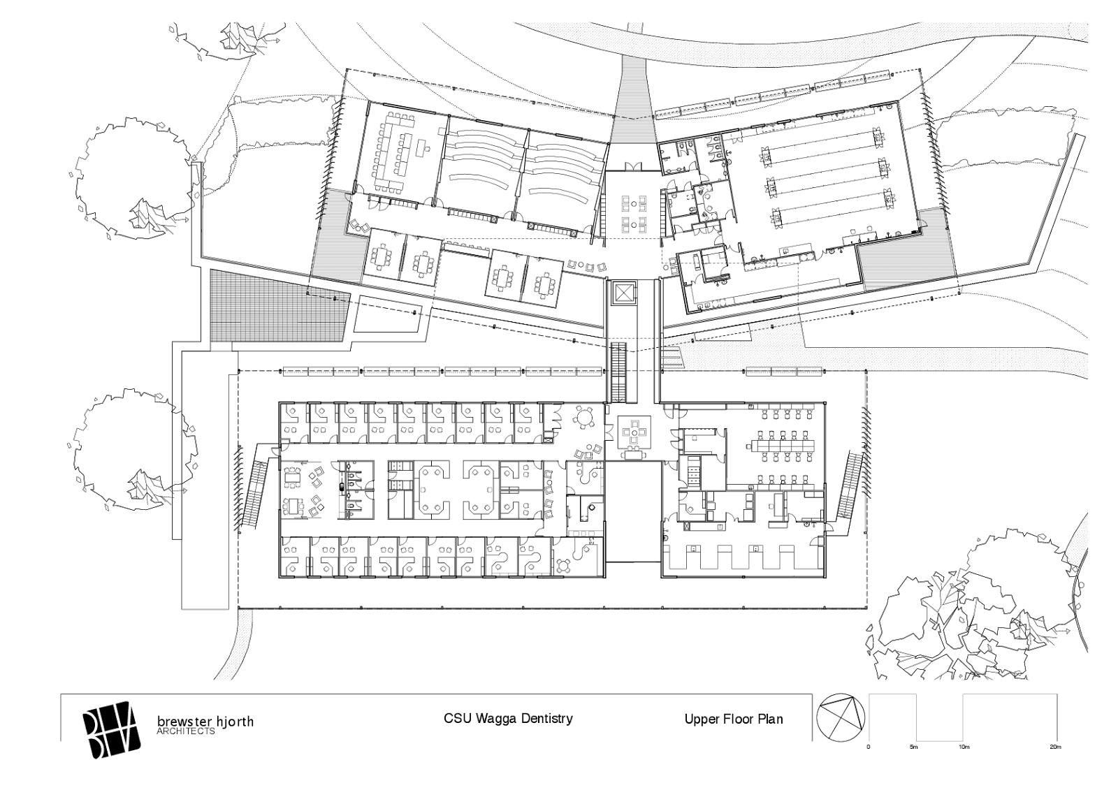
The project is core to a program to bring dental services to rural NSW. The school will care for over 1,000 public patients/ week with a large 24-chair clinic, research laboratories, specialist workshops and training facilities available for local practitioners and a cohort of 150 students. The facility is considered to be the most advanced of its kind in the world. The two storey double wing ‘H’ plan allows for effective operational zoning, very good internal communication paths, and excellent environmental outcomes. The layout provides for separation between the clinics and non-public student zones whilst allowing a visual connection between the simulation areas and the clinics to promote the students’ continuing engagement with patients. The School’s academic teaching and learning areas incorporate world’s best practice simulation laboratories with inspiring and flexible multi-modal teaching spaces and syndicate rooms designed to provide an immersive learning environment.
The building was designed to achieve 5 Greenstar (without certification). It incorporates passive/ active carbon reduction strategies: double skin ventilated roof, layered envelope with enhanced insulation, double glazing, and extensive sun shading. It has a mixed mode HVAC with fan induced thermal chimneys, BMS controlled purging and PV arrays. Daylight sensors in all spaces control light switching. Rainwater harvesting supplements the building’s extensive greywater recycling.
![]() |
| © Christian Mushenko |
![]() |
| © Christian Mushenko |
![]() |
| © Christian Mushenko |
![]() |
| © Christian Mushenko |
![]() |
| © Christian Mushenko |
![]() |
| © Christian Mushenko |
![]() |
| © Christian Mushenko |
![]() |
| © Christian Mushenko |
![]() |
| © Christian Mushenko |
![]() |
| © Christian Mushenko |
![]() |
| © Christian Mushenko |
![]() |
| © Christian Mushenko |
![]() |
| © Christian Mushenko |
![]() |
| © Christian Mushenko |
![]() |
| © Christian Mushenko |
![]() |
| © Christian Mushenko |
![]() |
| © Christian Mushenko |























