10 de enero de 2011.

© Gang Wei, Zhenfei Wang
Architects: HHD_FUN
Location: Tianjin Binhai District, China
Client: Tianjin Binhai Government
Project area: 18,000 sqm
Project year: 2008 – 2009
Photographs: Gang Wei, Zhenfei Wang

© Gang Wei, Zhenfei Wang
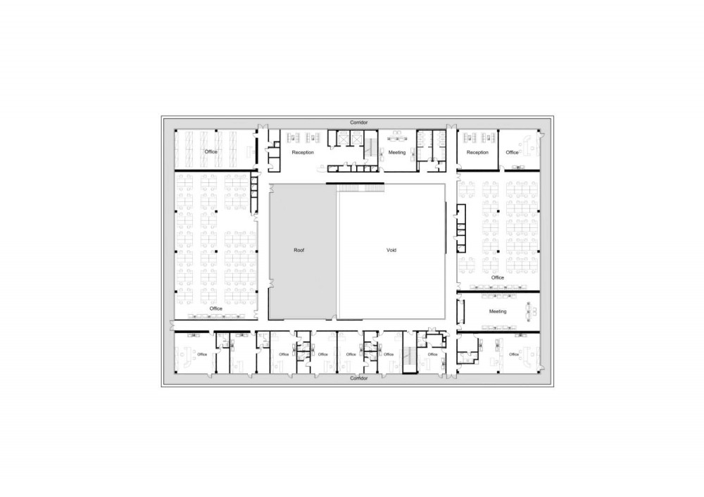
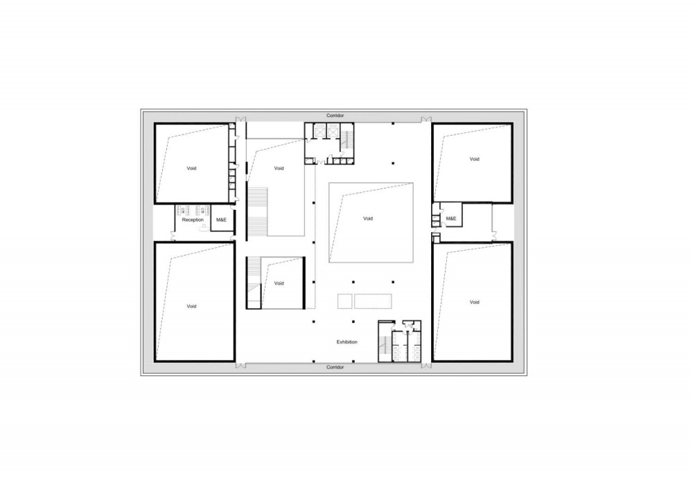
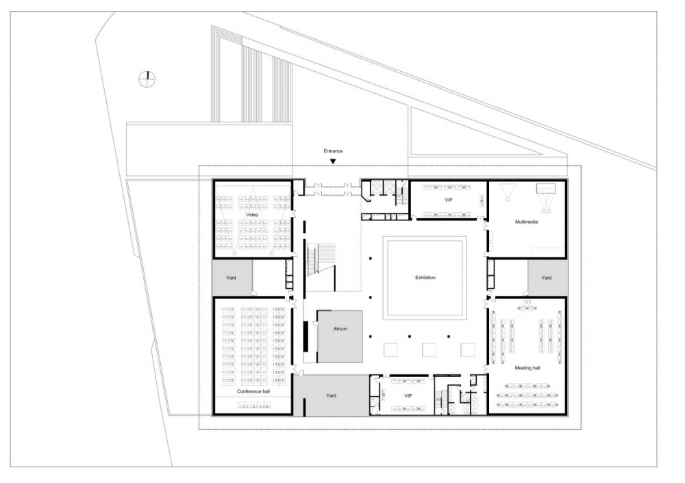
YJP Administrative Center is a temporary building in Tianjin Binhai CBD. Enclosed verandahs are arranged around the building to afford visual access to the CBD area from within the building. This allows the occupants to survey the surrounding construction site.

The size of openings within the facade relates directly to the lighting requirements for particular activities within different areas of the building. The porosity of the façade is designed to produce the required conditions for these activities. The integration of the density of the patterned façade with the various inner functions forms a key focus of the project.

The façade apertures serve as view frames. Aperture size and orientation is varied in a continuous manner introducing topological difference across the façade. The whole façade is constructed from six forms, reflected to give twelve types of identical components, making the building process highly efficient. This meant that the building to be constructed in less than seven months.












http://www.archdaily.com/102085/yjp-administrative-center-hhd_fun/#more-102085