16 de Marzo de 2011
Por Alejandro Concha
PUBLICADO EN: Obras Destacadas, Vivienda Colectiva , Arquitectura española, España, Pampols Arquitecte
© Oriol Rosell
Arquitectos: Pàmpols Arquitecte / Romà Pàmpols, David Pàmpols
Ubicación: c/cavallers, 14-20, Lleida, España
Arquitecto técnico: David Cívico Florejachs, Ramiro Muñoz Alaman
Arquitectos Colaboradores: Susanna Simó
Ingeniería: Jordi Dalmau, Ilert Enginyeria
Promotor: Empresa Municipal de Urbanismo de Lleida
Constructor: Rehabitec Lleida, SL
Año Proyecto: 2006
Año Construcción: 2007-2009
Superfície: 2.140,43 m2
Presupuesto: 2.147.443,24 €
Fotografía: Oriol Rosell
En los últimos tiempos se han sucedido, en los centros históricos de las ciudades europeas, experiencias varias de reconstrucción de sus zonas históricas, impelidas por la necesidad de reconvertir y dotar de nuevos usos edificios y espacios deteriorados por el paso del tiempo o por alguna catástrofe accidental.
© Oriol Rosell
Casi todas estas intervenciones han provocado, de una u otra manera, la confrontación dialéctica de dos posiciones antagónicas orientadas a la definición del criterio a seguir: ultraconservadurismo o evolución planificada.
Por otro lado, afrontar la construcción de vivienda social en un centro histórico, agrupados y seriados nos sugería el establecimiento de paralelismos entre tareas de función sencilla y finalidades complejas, y que coloca la creación de vivienda contemporánea ante la necesidad imperiosa de estandarizar. De acuerdo con esta experiencia, se ha buscado la perfección, la armonía, la exactitud, la economía de espacios. Todo esto no es solo perfección y armonía: es belleza.
© Oriol Rosell
En la arquitectura propuesta, la imagen de la manzana o cuadra viene solo sugerida por la de dos edificios de volumen rotundo deslizándose entre ellos. Estos definen un movimiento horizontal – el único posible, dado las visiones fragmentarias que de ellos se tienen en su aproximación- , de los unos sobre los otros, agujereados por líneas de ventanas con varios sistemas de cierre.
© Oriol Rosell
Hoy en día, el sistema económico obliga a la racionalización y normalización en la vivienda de precio ajustado o social. Pero, por otro lado, el aumento de complejidad de nuestros requerimientos sociales (singles, familias monoparentales, gente mayor, inmigración con estructuras familiares numerosas, etc…) exige flexibilidad. En un futuro deberá atenderse a ambos aspectos. Para lograr este propósito, proponemos un sistema de construcción en esqueleto como el más oportuno, dado que hace posible medios de fijación racionalizados y, al mismo tiempo, la división sin trabas en el interior.
© Oriol Rosell
En este sentido, hemos considerado las cocinas y cámaras higiénicas, dados los requerimientos de sus instalaciones, como núcleos fijos y que el espacio restante pueda ser (com)partido con mobiliario o tabiques móviles. En función de las necesidades del usuario, del tipo de familia que lo habite, de la llegada de visitantes o del ciclo día/noche, ocio/trabajo, el espacio cambiará, se transformará…
© Oriol Rosell
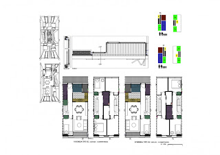
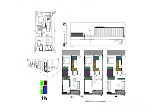
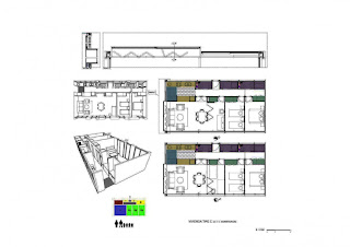
A partir de un único concepto de vivienda se desarrollan las cinco tipologías, en función del número de dormitorios requeridos y de su flexibilidad programática. Este mecanismo se muestra idóneo si, como es el caso, se fija el mismo porcentaje para todas las tipologías, que permite reversibilidad en caso de nuevas necesidades. La versatilidad del modelo raíz permite adjudicar virtualmente la “misma” vivienda a cada unidad familiar y establecer, así, un principio real de igualdad entre sus inquilinos.
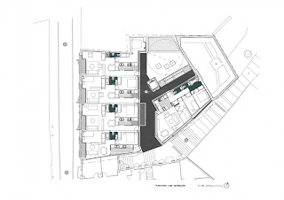
planta 1
El espacio de la vivienda es siempre continuo, atravesado en todo momento por largas líneas visuales que prolongan la vivienda al espacio exterior, más allá de sí mismo, sin menoscabar la necesaria intimidad de sus habitantes gracias a sus tabiques/mobiliario móviles.
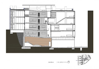
Todas las viviendas se abren tanto a la calle como al espacio interior de patio. Este carácter pasante los dota de una idónea ventilación cruzada y de un buen asoleo, potenciado por el escalonamiento descendente de la sección.
corte 1
La unidad que produce la seriación, la flexibilidad del modelo versátil, la continuidad del espacio, el carácter pasante que facilita la iluminación y la ventilación naturales, la economía de soluciones técnicas y la simplicidad constructiva se rebelan como cualidades deseables en el desarrollo de la vivienda social y como tales los hemos entendido como herramientas que favorecen su desarrollo como un bien deseable.
http://www.plataformaarquitectura.cl/2011/03/16/19-viviendas-de-alquiler-para-jovenes-en-el-centro-historico-pampols-arquitecte/




































