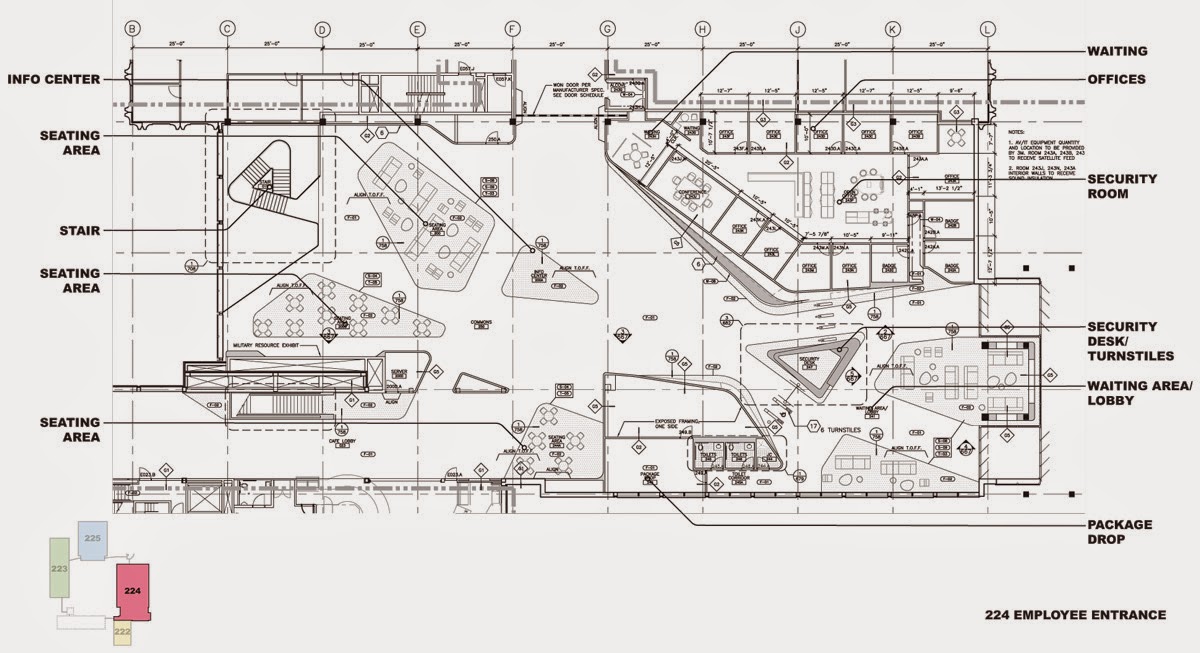
The global headquarters for ‘the 3M company’, located in st. paul, minnesota, has undergone extensive renovations involving a team of architects including atelier hitoshi abe and peter ebner and friends. each firm had separate responsibilities in the transformation of the corporation’s work environment, which is comprised of four structures linked by a second story walkway. specifically, atelier hitoshi abe’s scope included the conversion of the site’s central parking lot into a large plaza, the addition of many open and collaborative work spaces, as well as the redesign of various other public areas such as the employee entrance and café.
the renovation work transforms the site’s existing central parking lot into a pedestrian plaza. its design is characterized by a tangram patterning of tiles, with similarly shaped concrete planters, seating, and shade canopies. the surfaces utilize 3M stamark tape, a highly reflective adhesive backed material typically used for roadway markings.
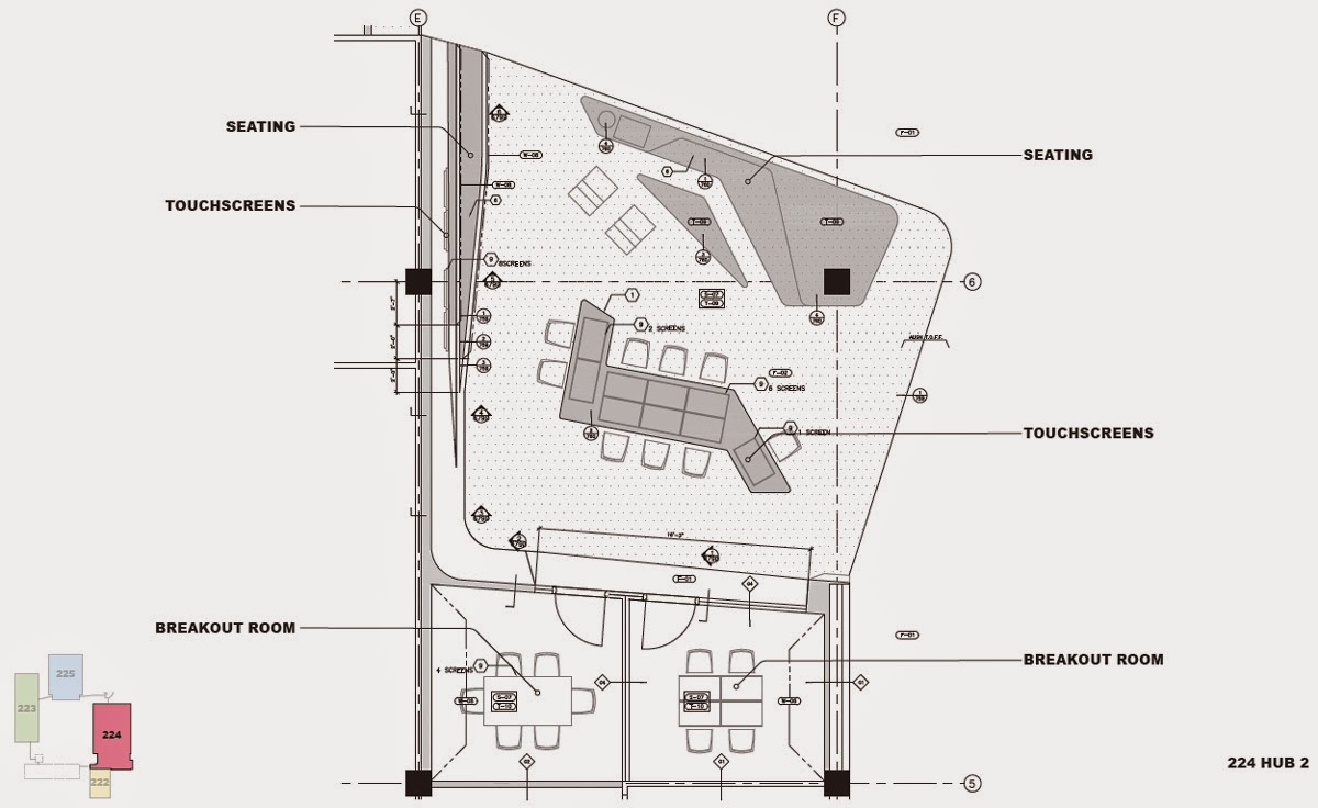
the project attempts to subvert the complex’s previous arrangement, comprised of highly compartmentalized rooms, by inserting many open work spaces throughout the office structures. these ‘hubs’ were strategically located in key areas of the buildings to encourage informal congregation, discussion, and foster collaboration among various departments. specifically, these zones provide touch screen computers integrated with table surfaces, allowing for digital connection to complement face to face meetings. the interface allows employees to access network files, as well as link up their mobile devices and lap tops in order to seamlessly share information.
the open collaborative spaces are situated in transitional areas of the complex, which are typically considered less useful in workplaces, but where highly productive informal discussions tend to occur. each ‘hub’ is distinguished with brightly colored furnishings, and feature LED screens which present a constant stream of information. the displays are typically integrated with soffits protruding from the ceiling, and inform employees and visitors of news, announcements, and events for the minnesota campus as well as 3M workers around the globe.
various other spaces throughout the campus have been redesigned to reinvigorate the complex. for example, a large ‘forum’ area accommodates larger groups for trainings, seminars, or new employee orientation, with glazed partitions providing maximum daylight penetration and transparency. adjacent, a café provides a place to grab a coffee and light snack, as well as seating for meetings and an open working area.
additionally, two new stairs serve to improve circulation between different levels. one, painted in black, creates a direct connection between the primary employee entrance and the level below, providing access to the central plaza. a red-painted staircase links the dining area on the main floor to the lower level employee mall. in addition to a 3M shop, the mall contains various shops and services that include newspaper stands, a recreation room, laundry facilities, and a credit union.
3M headquarters in minnesota revamped by atelier hitoshi abe (designboom.com)





















