![]() |
| © nakanimamasakhlisi |
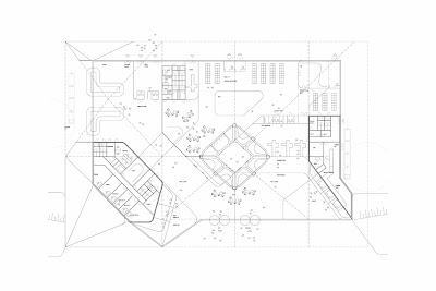
El aeropuerto internacional “Rey David el Constructor” en Kutaisi, Georgia, recientemente completado, se espera que dé servicio a un millón de pasajeros anualmente a partir de 2014. El diseño de UNStudio abarca el desarrollo íntegro del aeropuerto, incluyendo una revisión de la pista, la planificación de las zonas verdes y su futuro desarrollo, el edificio de la terminal, las oficinas, una estación meteorológica y la torre de control.
El diseño de UNStudio revela la rica cultura de esta joven democracia situada en el cruce de caminos entre la Europa Oriental y el Asia Occidental.
La arquitectura de la terminal sugiere una puerta, en la que una distribución estructural muy clara crea un volumen protector que lo abarca todo. La esquina exterior coloreada (que funciona como punto de cruce y de reconocimiento) y el denominado “paraguas” situado en el interior de la terminal (que opera como centro para el flujo de pasajeros) funcionan como los dos detalles arquitectónicos alrededor de los cuales se organizan todas las funciones del aeropuerto.
El diseño organiza el proceso logístico, proporciona seguridad óptima y se asegura de que el viajero tenga espacio suficiente para circular de forma cómoda. Además el edificio está cubierto de cristales que crean un entorno luminoso con vistas a las montañas del Cáucaso.
La torre de control de 55 metros de altura y su edificio auxiliar de oficinas están diseñados para complementar el diseño de la terminal. La cabina de control forma el punto focal de la torre, con una visión de 360 grados del entorno y un interior cómodo y espacioso que permite a entre 4 y 8 operadores trabajar con máxima concentración. El exterior de la torre está cubierto de una piel perforada sobre un núcleo de hormigón, lo cual permite usar el viento para ayudar en la ventilación. Luces LED situadas entre el núcleo y la piel exterior realzan el efecto baliza cambiando de color cuando hay una fluctuación en la velocidad del viento.
El diseño del nuevo aeropuerto incorpora numerosos elementos sostenibles. Una fuente de agua subterránea proporciona la base para la reducción del consumo de energía. Tanto el suelo de la terminal como el de la torre de control utilizarán esta fuente de agua para mantener una temperatura regulada en los dos volúmenes. En el edificio de la terminal el voladizo de los tejados proporciona sombra en las fachadas sur y suroeste. Un sistema híbrido de ventilación de baja presión está integrado en la estructura principal de la terminal y hay un sistema de recogida de aguas residuales bajo el suelo de la misma. El objetivo es presentar el aeropuerto de Kutaisi como el primer aeropuerto que incorpora una separación estricta de los residuos y que establece un sistema de reciclado que podría implementarse en nuevos proyectos en Georgia.
![]() |
| © nakanimamasakhlisi |
![]() |
| © nakanimamasakhlisi |
![]() |
| © nakanimamasakhlisi |
![]() |
| © nakanimamasakhlisi |
![]() |
| © nakanimamasakhlisi |
![]() |
| © nakanimamasakhlisi |
![]() |
| © nakanimamasakhlisi |
![]() |
| © nakanimamasakhlisi |
![]() |
| © nakanimamasakhlisi |
![]() |
| © nakanimamasakhlisi |
![]() |
| diagrama organizativo © UNStudio |
![]() |
| sección © UNStudio |
![]() |
| plano © UNStudio |
![]() |
| diagrama de circulación © UNStudio |
Más información:
www.dezeen.com
www.domusweb.it
www.designboom.com
Fotos: nakanimamasakhlisi, Tblisi / UNStudio














