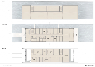
Descripción de los arquitectos. Los rompehielos atracados son una parte esencial del entorno de Katajanokka. El nuevo cuartel de Arctia Shipping se colocará en un edificio de oficinas flotando en frente del edificio principal del Ministerio finlandés de Asuntos Exteriores, que fue diseñado originalmente por C.L. Engel.
La volumetría horizontal y fachadas de acero negro personalizadas se relacionan con los cascos negros de los barcos. El interior de la “nave de acero negra” está hecho de madera lacada que se relaciona con la tradicional construcción de de los barcos en sus inicios. Las fachadas del edificio son hechos en base a perfiles de acero de onda y patrón personalizado. Existe una gradiente y el patrón abstracto perforado en los perfiles de acero se relaciona con cristales de hielo y los patrones textiles de marinero.
El edificio se completará en un astillero en el oeste de Finlandia y luego será remolcado al sitio. Hay un sistema de agua que mantiene el nivel del suelo del edificio en el mismo nivel que el muelle.
![]() |
| © Mika Huisman |
![]() |
| © Mika Huisman |
![]() |
| © Marko Huttunen |
![]() |
| © Marko Huttunen |
![]() |
| © Marko Huttunen |
![]() |
| © Marko Huttunen |
![]() |
| © Mika Huisman |
![]() |
| © Mika Huisman |
![]() |
| © Mika Huisman |
![]() |
| © Mika Huisman |
![]() |
| © Marko Huttunen |
![]() |
| © Marko Huttunen |
![]() |
| © Marko Huttunen |
![]() |
| © Mika Huisman |






















