![]() |
| © Iwan Baan |
An elaborate facade comprising curved edges, deep recesses and sliced windows wraps this 135-metre skyscraper by Dutch office UNStudio in Singapore (+ slideshow).
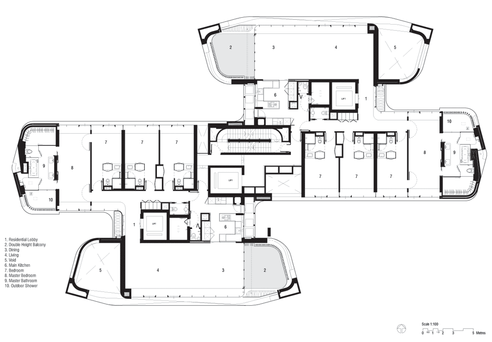
Ardmore Residence is a 36-storey apartment block near Singapore’s Orchard Road shopping district and was designed by UNStudio to accommodate a total of 58 homes.
The curved details of the opaque concrete facade are intended to replicate organic forms found in nature, while large bay windows and double-height balconies were added to allow extensive views across the city skyline.
“The highly textural facade of the Ardmore Residence works in unison with the organisation of the individual apartments, affording both extensive daylight to the unique residential spaces and panoramic views over the city of Singapore,” said UNStudio principal Ben van Berkel.
The facade pattern is repeated every four storeys to give a formal rhythm to the building’s silhouette and rounded glass wraps around some of the corners.
“The facade further generates a unique reading of the building in the neighbourhood, with its layered contours extending the appearance beyond four facades and providing a variety of profiles and perspectives,” added Van Berkel.
The first apartments are positioned on the eighth storey, creating a sheltered void at the base of the tower that opens out to gardens, terraces and a private residents’ swimming pool.
Here’s some information from UNStudio:
UNStudio’s Ardmore Residence in Singapore completed
In recent years high-rise residential towers is Asia have undergone a significant transformation. No longer only mass replicated tower blocks dot the skyline of most Asian cities, a new generation of bespoke towers now provide aesthetic, singular silhouettes and incorporate comfortable living spaces, attractive landscaped gardens and an array of amenities for residents.
The Ardmore Residence at 7 Ardmore Park in Singapore is one of this new breed of residential towers. Located in a prime location close to the Orchard Road luxury shopping district the Ardmore Residence enjoys both expansive views of the panoramic cityscape of Singapore City and the vast green areas of its immediate western and eastern surroundings.
Living landscape
The primary concept for the design of the 36 storey, 17.178 m² residential tower is a multi-layered architectural response to the natural landscape inherent to the ‘Garden City’ of Singapore. This landscape concept is integrated into the design by means of four large details: the articulation of the facade, which through its detailing creates various organic textures and patterns; expansive views across the city made possible by large glazed areas, bay windows and double-height balconies; the interior ‘living landscape’ concept adopted for the design of the two apartment types and the introduction of transparency and connectivity to the ground level gardens by means of a raised structure supported by an open framework.
Textured facade
The facade of the Ardmore Residence is derived from micro-design features which interweave structural elements, such as bay windows and balconies into one continuous line. The facade pattern is repeated for every four storeys of the building, whilst rounded glass creates column-free corners, visually merging the internal spaces with the external balconies. Intertwining lines and surfaces wrap the apartments, seamlessly incorporating sun screening, whilst also ensuring that the inner qualities of the apartments and the outer appearance of the building together form a unified whole.
Inside-outside
The apartments in the Ardmore Residence embody the idea of a ‘living landscape’. Functional spaces are redefined and extended into the living landscape concept, offering the possibility for versatile functionality for the occupants. An indoor-outdoor living experience is achieved through the inclusion of large windows and double height balconies in all of the residences.
Continuous landscape
The first residential level of the Ardmore Residence is located on the eighth storey of the building. An open framework is therefore introduced at the base of the raised tower which enables full connectivity and transparency across the ground level landscaping, while simultaneously organising the shared amenity facilities.
![]() |
| © Iwan Baan |
![]() |
| © Iwan Baan |
![]() |
| © Iwan Baan |
![]() |
| © Iwan Baan |
![]() |
| © Iwan Baan |
![]() |
| © Iwan Baan |
![]() |
| © Iwan Baan |













