Descripción de los arquitectos. Las superficies del agua de las piscinas son el centro del proyecto. Avanzan para definir los accesos y ordenan el total. Se abren al oriente y a la vista, se cierran al poniente y al sol. El partido se hace transparente al entorno y al parque. Las graderías se abalconan sobre el agua y los arboles como un muro de apoyo guardando los servicios en el interior.
La Cubierta es el elemento arquitectónico de mayor significación. Define un gran espacio luminoso y ligero, que recibe con claridad y se orienta al espectáculo y al paisaje. El parque, la piscina y las graderías son contenidas con el plano único de la cubierta. Un gesto claro y rotundo define el espíritu y el sentido del proyecto, un edificio que es más un espacio que un volumen.
Los tres elementos fundamentales se independizan en su construcción: La Piscina, Las Graderías y La Cubierta. Desde las graderías el escenario es el agua y el telón de fondo el parque y la cordillera. El edificio exhibe su interior y a la vez se proyecta al exterior. El plano de la cubierta genera el gran espacio interior flexible que incorpora vistas, programas y múltiples usos. De la intención espacial se construye la lógica estructural de todo el proyecto.
![]() |
| © Juan Francisco Vargas Malebrán |
![]() |
| © Juan Francisco Vargas Malebrán |
![]() |
| © Juan Francisco Vargas Malebrán |
![]() |
| © Juan Francisco Vargas Malebrán |
![]() |
| © Juan Francisco Vargas Malebrán |
![]() |
| © Juan Francisco Vargas Malebrán |
![]() |
| © Juan Francisco Vargas Malebrán |
![]() |
| © Juan Francisco Vargas Malebrán |
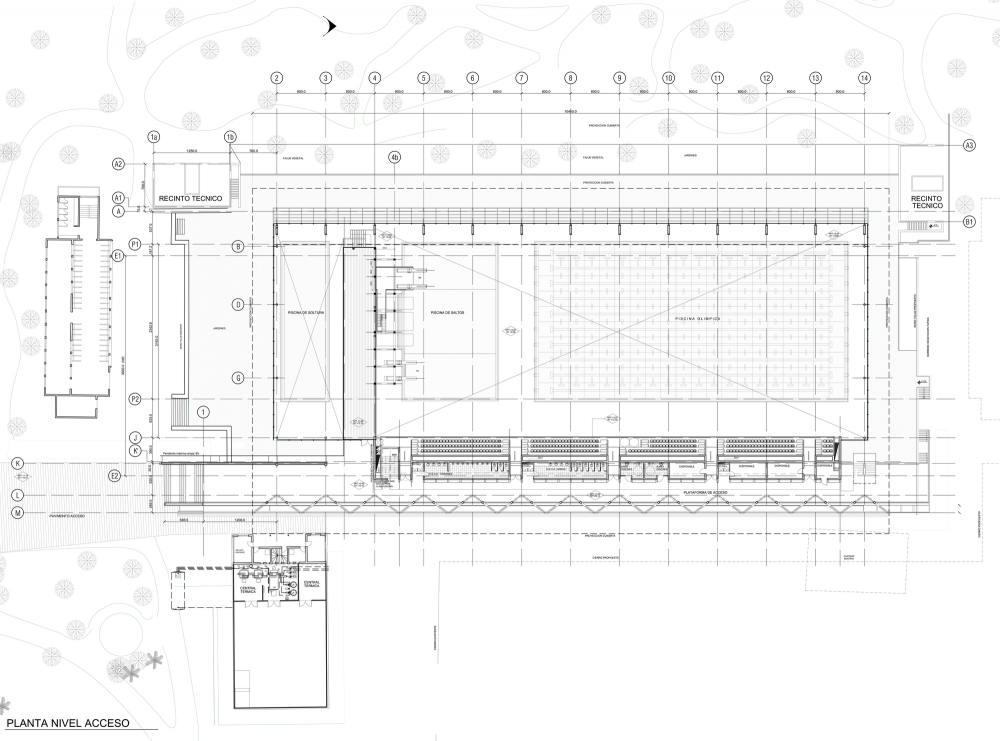
![]() |
| Planta Nivel Acceso |
![]() |
| Planta Nivel Graderías |
![]() |
| Elevaciones Longitudinales |
![]() |
| Elevaciones Transversales |
![]() |
| Secciones A-B |
http://www.plataformaarquitectura.cl/2014/03/14/centro-acuatico-estadio-nacional-iglesis-prat-arquitectos/













