![]() |
| © Daniele Domenicali |
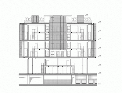
Descripción de los arquitectos. La transformación de Via Tortona, que fue iniciada por el empresario Alessandro Cajrati Crivelli de nuevo en la década de 1990, continúa, revelando su potencial para la reurbanización y la reinterpretación de algunos de los lugares urbanos más interesantes de la metrópoli. El proyecto Tortona 37 por Matteo Thun & Partners forma parte de este saludable proceso de reutilización del terreno y su fortalecimiento a través de la arquitectura de bajo impacto ambiental. Un proyecto de construcción que rescata una antigua planta industrial que abarca 25.000 metros cuadrados (lo que solía pertenecer a General Electric) y lo restaura a la ciudad a través de la tecnología de bajo consumo de última generación. Tortona 37 es un complejo arquitectónico de uso mixto compuesto por cinco edificios establecidos alrededor de un patio arbolado. Cada edificio es de base rectangular y tiene 6 niveles, que permiten dobles exposiciones de las unidades. Son unidades de doble altura que generan espacios abiertos con un altillo interior de gran versatilidad funcional. Aquí salones, laboratorios, estudios profesionales, tiendas y oficinas encuentran su propio diseño personalizado: los espacios interiores de gran flexibilidad también aseguran sustentabilidad en el tiempo. Una celosía blanca sobresale en los marcos de las ventanas de la fachada de vidrio en todo el ancho del complejo, culminando en la azotea con terraza, auténticas plazas urbanas con amplias vistas sobre el horizonte.
Cada característica de diseño está dirigido a lograr la máxima eficiencia energética, inteligentemente coordinando el diseño arquitectónico con la planta de ingeniería: desde el sistema de aire acondicionado a lo largo de las líneas de energía geotérmica, hasta la utilización de paneles radiantes en los interiores y el estudio cuidadoso llevado a cabo para el revestimiento exterior.
La fachada de cristal, que incorpora en un sistema de cortinas exteriores, es muy eficaz para reducir el impacto de la luz solar (hasta 87%) para evitar que los interiores se sobrecalienten durante el verano. Se proporcionó también una investigación adicional para las persianas de madera (un material usado “puramente”) en los marcos de las ventanas y “bow-windows” volados, por lo que su imagen se va desarrollando naturalmente con el tiempo.
La explotación geotérmica es un principio de vanguardia de la eco-sostenibilidad, algo que aún no se utiliza muy a menudo en Italia, pero que es reconocido por proporcionar beneficios ambientales bien definidos. En primer lugar, la energía geotérmica es una fuente gratuita de energía. El agua subterránea de Milán está siempre disponible a una temperatura constante, más caliente que el aire exterior en invierno, y más fresco que en verano: un punto de partida muy beneficioso desde el punto de vista energético.
El Complejo 37 Tortona aprovecha la energía geotérmica para producir agua caliente y fría (incluso de forma simultánea) por medio de bombas de calor polivalentes agua/agua, uno de los sistemas más eficaces disponibles en la actualidad y que causan menor impacto ambiental.
Cuatro pozos de aguas subterráneas son extraídas a una temperatura de entre 14 ° C-16 ° C, dependiendo de la época del año. El agua es transportada en una cuenca de captación y decantación a través de un tanque subterráneo y luego suministrada a cada una de las unidades por medio de bombas de calor.
Tortona 37 utiliza un sistema mixto de aire primario y paneles radiantes de techo climatizando los interiores. Los paneles radiantes de techo utilizados en el complejo Tortona 37, son el complemento ideal para las bombas de calor a base de agua para crear un sistema energético eficiente. Los paneles son suministrados por agua “caliente a baja temperatura” en invierno y agua “fría a alta temperatura” en verano y sólo requieren una mínima cantidad de energía para funcionar en distintos momentos del año. Por otra parte, la temperatura ambiente es controlada por medio de irradiación sin emisión de ruido o corrientes de aire para garantizar la máxima comodidad en las zonas ocupadas por las personas. El aire primario es proporcionado por las unidades de procesamiento equipados con baterías de pre-procesamiento apoyándose asimismo en el agua subterránea. En comparación con los sistemas convencionales, las principales ventajas son de alta eficiencia energética, y de emisiones cero en el lugar de la instalación, además de no existir sonido o impacto paisajístico.














