![]() |
| © Jaime Sicilia |
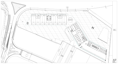
The site is located in the center of Palma de Mallorca with shortcuts to the city center and the ring road in both directions.
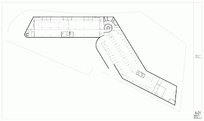
The main building accommodates the site boundaries. The diagonal divides creating two courtyards, one of practices and other emergencies.
Functionally the building has three major areas:
- An administrative and reception area.
- Exhibition area (fire trucks and old equipment).
- Area firefighters work, including emergency parking, daytime areas, sports area (indoor pool, and a fitness multipurpose) and bedrooms.
The complex also features a private parking and a practice area with a 30-meter tower, a training module Flash Over, classrooms and locker rooms for practice and a truck garage.
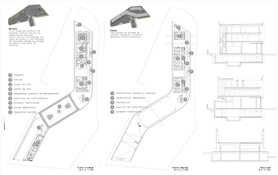
Conceptually, the project has three elements.
- Concrete trays. Built by slabs on pillars grid 8 x 8 m. Forming the skeleton of the building. Program to organize freely.
- Boxes. Constructed using prefabricated systems. They house private spaces and organize open. Its position and size to suit every need. The system allows the redistribution to future needs a simple manner.
- Skins. Formed by vertical strips of stainless steel mesh. Filter the light and clothe the building.
The result is an organic piece, kinetic, moody, which is designed to be seen from the highway, at speed.The project materials were selected with the criterion of minimum maintenance and high durability. The main materials are concrete slabs, panels colored thermosetting resin, low emissivity glass, stainless steel tensioned mesh, panels of galvanized steel, ceiling panels of steel, granite, concrete and rubber pavement and high quality luminaries
![]() |
| © Jaime Sicilia |
![]() |
| © Jaime Sicilia |
![]() |
| © Jaime Sicilia |
![]() |
| © Jaime Sicilia |
![]() |
| © Jaime Sicilia |
![]() |
| © Jaime Sicilia |
![]() |
| © Jaime Sicilia |
![]() |
| © Jaime Sicilia |
![]() |
| © Jaime Sicilia |
![]() |
| © Jaime Sicilia |
![]() |
| © Jaime Sicilia |
![]() |
| © Jaime Sicilia |
![]() |
| © Jaime Sicilia |
![]() |
| © Jaime Sicilia |
http://www.archdaily.com/267797/firehouse-of-palma-de-mallorca-jordi-herrero-arquitecto/




















