13 Marzo 2012
The visible creates a work in form – the invisible defines its worth- Lao Tse
To be confronted with a building site in the shadow of the “SagradaFamilia“ a key work of the Catalan master AntoniGaudí, is an unique opportunity in the life of an architect. We were perfectly aware that the particular modernist style – to be read as a Catalan version of Art Nouveau – influenced by surrealism, the colorful ornaments reflecting organic elements taken out of nature, as well as the daring structure of the cathedral, represents for the city of Barcelona the same overwhelming attraction as the Frank Gehry`s Guggenheim Museum for Bilbao.
© Stefan Müller
We also knew that we would not just cover some of the surfaces of the building with the “trencadis”, a patchwork of broken ceramic tiles, as a lot of bars and hotels in the city did, imitating a typical technique of Gaudí´s artisans. Our reminiscence had to be a more effective as a compromised tribute to the principles of his architectural approach, which should still be meaningful in our days. How should we do it?
© Stefan Müller
We found the answer in Gaudí´s devotion to nature as the most inspiring force to his architectural practice. Aren´t his columns bending like trees? Who had visited once his outstanding residential building “La Pedrera” at Paseo de Gracia-Avenue, knows that most of his public spaces are painted in a Symphony of colors that reminds summer and autumn, painted on woods leafs as canvas.
© Stefan Müller
One of the outstanding principles of the SagradaFamilia is its complex system of measuring modules which confers a clear order to the whole building and is the reason why, after the death of Gaudí, others could continue his legacy, even without a sufficient support of planning documents. Visionary, the master showed an apple-minded obsession with details, which is nowadays resulting as a key to the feasibility of the grandiose building completion.
“Everything big on earth always starts being small”, as Lao-tse told us.
© Stefan Müller
Following the guide-line traced by our overpowering neighbor, we definitely accepted to integrate in our design the Fibonacci-series, which mathematically define the proportions in nature, let´s say, between trunk, branch and twig during the growing of a tree. As may be observed in the rhythm of the openings in the central courtyard, the somehow intellectual procedure of following an abstract order is not necessarily incompatible to the will of form. The lively composition shows an astonishing likeliness to the interior of the cathedral-towers.
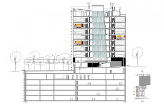
As a contemporary way of integrating the animated colors of nature, we attached fine stripes of LED-lightning elements edgeways to the window panes. Thanks to the computerized coordination of the LED´s, it´s even possible to reproduce a sort of “Gesamtkunstwerk”, combining sound and light effects, like Vivaldi´s “QuatroStaggioni” with the changing colors evoked by the four baroque concertos. It´s just a contemporary way to attain the all-embracing art form intended by Gaudí, humbly following the path beaten by the master.
© Stefan Müller
Awareness of the historic context, we are acting as architects should, in our opinion, go hand in hand with modesty. In this sense, after several months of studies and model-building in the studio, finally we understood that the formal mastership and technical complexity we were trying to transfer to ours, in the way of a morphologic study from the façade of the formerly mentioned residential building “La Pedrera”, was out of our reach.
Neither we were willing to consider the effort to adapt the uniform structural grid of an hotel to the overwhelming expressivity of an Art Nouveau Jewel inserted in the Paseo de Gracia representative but conventional facades, for a Maecenas as it was Count Güell, the promoter of the project. Nor we had the architectural power to smash to the ground the critics of such an endeavor, as Gaudí did in his time. To this extension, it is certainly a curiosity that the celebrated “Pedrera” originally obeyed to the mockery of the Barcelonese public, which depicted the building as a stone quarry.
details 01
The initial difficulties we found in our first design attitude helped us to discipline our proposal, adopting the regular traces of the façades which are the characteristic pattern of the “Eixample”, built on the master-plan designed by the civil engineer IldefonsCerdá in 1860. Although rejected by the upcoming industrialists who were the protagonists of the technical revolution, due to its egalitarian grid which did not satisfy their idea of a city as a mirror of the new economic order, it was imposed by the Spanish Central Government of Madrid to the Municipality of Barcelona.
Nowadays, Cerdá Plan is recognized as a pioneer project, due to its effectiveness resolving actual traffic needs and to create protected residential areas inside the blocks. Barcelona inhabitants feel comfortable living within its rationally organized streets and the uniform and solid beauty of their facades fits well to the reserved character of the Catalan People.
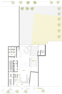
plan 01
That is why we liked the idea of integrating the hotel into this traditional scheme, applying the local design code in an even more conservative way, respecting faithfully the proportions and distances outlined for the openings, but still we felt appealing to express the fact that inside a bourgeois body it was beating the vigorous heart of a patio filled by an inspiring symphony of colors and sounds.
In a simple but effective gesture, we broke up the stone panels between adjacent guest apartments, filling the void with thin alabaster tiles attached to laminated glass slabs, which measures were scaled by the Fibonacci Series. Opaque during the day, they become translucent at night, following the sequence of the visitors lighting their rooms. Therefore the facades become the animated showcase of the building’s activity.
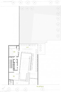
plan 03
It is only another vantage for the challenge of raising up a project in the neighborhood of a world famous incunabula of international tourism that we were allowed, just adopting the section of our building to the slightly slope of the preexisting plot of land, to create a public plaza in the interior of the block, accessible from the hotel bar at the ground floor. In the counterpart of financing the investment for the public space, we were permitted to demolish the shabby and neglected two-storey constructions along the inner passage, bringing their floor area up to the top of the hotel building.
By this operation, not only a roof terrace with breathtaking views on the heights of the SagradaFamilia could be created, but yet entering the hotel mall the visitor becomes aware of the powerful presence of the monument. We wish to believe that in this precise moment volatiles sensations are transformed to an enduring experience, due to an effort of locating our building, its outfit and inner reality, in a meaningful position towards history and place.




















