The present Project consists in the Architectural construction of a Medium to Long-Stay and Convalescence Health Care Unit. It was implemented in the existing building, the Headquarters of “Standard Eléctrica” (Electric Factory), located in Aldeia de Juso (Portugal).

© João Morgado

One of the main concerns of this Project was the maintenance of the volumetric characteristics, and therefore the chosen intervention reveals mainly in the interior spaces, in the new exterior finishes and in the integration of all essential requirements for the good functionality of a Health Care Unit.

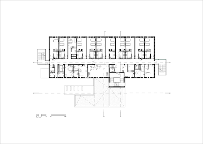
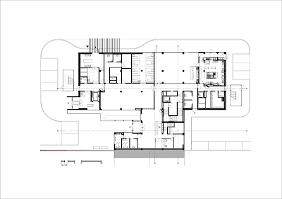
The building is composed of 5 above-ground and one underground storeys and it has a capacity of 73 beds. Since it is about the regeneration of an existing building, the necessity fell in with the creation of a modern and sober image. therefore, the investment focused on the study of constructive solutions which would guarantee thermal insulation in facades, windows/ doors and roofs. These systems should contribute decisively for the resistance, durability, hygiene and easy maintenance of the entire complex. The new image of the Building results from the interpretation of various formal elements of the existent versus the aimed functionality of the program versus the various legislations in regard to specialities.

The result is verified in the reduction of windows, creating openings which were enough to illuminate each compartment and which allowed the creation of facades that were rhythmically marked by ‘rips’. This game offered a harmonious and contemporary visual to the building. All entrances have enhanced features either at a visual level or at a functional level. For instance, the peak that is associated to the main entrance does not only emphasize it, but also protects the users from outdoor climatic conditions. The same idea is actually applied to the entrance of patients since they are most frequented exterior areas. Furthermore, the use of a metallic pergola right at the exit of the mortuary house hides it from the closest surrounding areas.

That is to say that all materials were applied with the target of highlighting each form and volume of the Building by making the general reading clear and simple.

© João Morgado

 

© João Morgado

 

© João Morgado

 

© João Morgado
Plan 1
Plan 2
Section 1
Section 2
Elevation 1

http://www.archdaily.com/267278/juso-continuing-care-unit-saraiva-asociados/