14 de Marzo de 2011
Por Catalina Gutiérrez
PUBLICADO EN: Arquitectura de Interiores, Arquitectura de Oficinas, Obras Destacadas, Renovaciones y Ampliaciones , BmésR29 Arquitectes, España, oficinas
© Amaneceres Fotográficos
Arquitectos: BmésR29 Arquitectes – Xavier F. Rodríguez i Padilla, Josep Mª Burgués i Solanes
Ubicación: C/Comerç, 38 ent 4, Lleida, España
Dirección Arquitectura: BmésR29 Arquitectes
Arquitectos Colaboradores: Arnau Ricart Real
Colaboradores: Xavier Romero Monjo, Cristina Cruz Gómez
Promotor: BmésR29 Arquitectes
Constructor: BmésR29 Arquitectes
Año Proyecto: 2008
Año Construcción: 2008
Superficie construida: 184,64 m2
Presupuesto: 49.000 €
Fotografía: Amaneceres Fotográficos – Josep Ardiaca Rodríguez, Sofía Gómez Zúcar
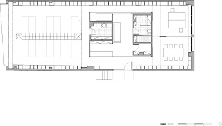
El espacio disponible para este proyecto de reforma interior es un rectángulo de 20 mt por 8 mt aproximadamente, dividido en tres espacios principales en la fachada y varias dependencias internas que ocupan el espacio central.
Los nuevos requerimientos para el futuro uso como oficina de arquitectura, plantean la necesidad de una gran sala de trabajo para varias mesas, una sala de reuniones, un despacho, sala de espera, oficinas, baño y recepción.
© Amaneceres Fotográficos
Dadas las proporciones y características del espacio, con aberturas en los dos lados de 8 mts, se prioriza ocupar la fachada con los espacios de trabajo y reunión, concentrando el resto de los espacios de servicio agrupados en la zona central.
Para dar forma a estas condiciones de organización, se plantea generar un cuerpo central formado por una piel blanca plegada que recoge los servicios del despacho dentro de unas cajas naranjas separadas, que mediante su ubicación estratégica generan los espacios de recepción y sala de espera con un simple pliego abierto por dos bandas opuestas.
© Amaneceres Fotográficos
La posición estratégica del cuerpo central hace que se genere una doble circulación a su alrededor, de manera que se puedan separar los movimientos del personal del despacho de los visitantes exteriores sin generar pasillos ni espacios residuales, permitiendo que se aproveche totalmente la superficie, utilizando además todo el perímetro como espacio de librería y archivo.
Las particiones y cerramientos se han realizado con vidrio para mantener una lectura continua del elemento central visible desde todos los ámbitos como organizador de las diferentes dependencias.
© Amaneceres Fotográficos
Para organizar el espacio de trabajo principal se ha dispuesto un mueble lineal central equipado del que cuelgan las mesas de trabajo a ambos lados generando subespacios abiertos para cada punto de trabajo, que comparten un ámbito único donde el blanco domina techo y paredes para dotar de mayor luminosidad a la zona, igual como se hace en todas las zonas principales del despacho.
http://www.plataformaarquitectura.cl/2011/03/14/local-comercial-para-despacho-de-arquitectos-br29-arquitectes/













