2 Diciembre 2011 
Arquitectos: Pere Santamaría García (Santamaría Arquitectes)
Ubicación: Valls, Tarragona, España
Colaboradores: Mireia Palomas, Pilar Toll, Gemma Torras
Promotor: GISA / Departament Interior Generalitat de Catalunya
Empresa Constructora:  CEJAM
Superficie: 1.337,02m2
Fotografías: Francesc Rubí

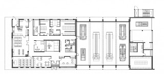
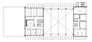
El nuevo parque de bomberos se sitúa en un solar prácticamente llano en el polígono industrial Palau de Reig, en Valls. Se pretende generar un edificio compacto e introvertido, diseñado como un objeto aislado. Se crea un volumen rectangular, alineado con la calle Fusters. La mitad del volumen está ocupado por las cocheras y servicios asociados, con helipuerto en la cubierta, y en la otra mitad se sitúan las dependencias del parque.

Para que el edificio se entienda como un único volumen, la diferencia de alturas se resuelve con un pliegue de la cubierta unitaria de hormigón. La cubierta se convierte en el elemento más importante en la imagen del edificio. Se desarrolla en dos niveles e incorpora un pliegue de una planta de altura que se convierte en la fachada por la cual se ilumina el gimnasio. Para potenciar la imagen compacta del volumen, la cubierta sobresale creando un voladizo de hormigón en todo el perímetro del edificio.

Los espacios más públicos, sala de control, despacho del jefe del parque y la sala polivalente, se sitúan en la planta baja, próximos al acceso, y se abren a la fachada principal que da ala calle. La sala-comedor y la cocina se sitúan en el extremo del edificio, abiertos a sur, donde se dispone un espacio exterior pavimentado bajo un porche  y árboles de hoja caduca. Los vestuarios y los servicios, la parte más privada del parque, se sitúan en la fachada posterior.

Las fachadas, sobretodo la principal, tienen la misión de conseguir la comprensión del edificio como un volumen continuo, a pesar de que los usos que se esconden detrás sean muy diferentes: uso doméstico en las dependencias y uso industrial en las cocheras. Con este fin, se trabaja solamente con dos materiales: chapa metálica ondulada y paneles sándwich de color rojo.
http://www.plataformaarquitectura.cl/2011/12/02/parque-de-bomberos-en-valls-santamaria-arquitectes/