Puerto X se compone de módulos individuales que son fácilmente desmontables y por lo tanto siempre está listo para un transporte hacia un lugar diferente. Para algunos, esto puede ser un buen broche de oro, mientras que para otros puede ser la razón principal por la que se considera a este concepto único. Cuando la implantación de los edificios convencionales podría ser problemática, PORT X abre un nuevo abanico de posibles ubicaciones. Este concepto también permite que el edificio crezca de acuerdo a los deseos del propietario – para cambiar su estructura y satisfacer las necesidades de su empresa o familia.
La vivienda se puede mover fácilmente de un lugar a otro. PUERTO X no está atada ni a un lugar, ni a una vista. Por el contrario, puede seguir sus opiniones y preferencias. “Desde la ciudad, a las laderas de las montañas, de las montañas de nuevo a las tierras bajas, en un pintoresco pueblo, en tierra o agua – estas serán las opciones entre las que puedes vivir cuando lo desees”, explica Hana Otevrelová, gerente del proyecto.
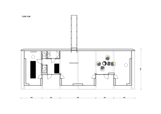
Gracias a su composición única, PORT X puede crecer con las necesidades de su familia y puede pasar de 4 módulos a 6 en muy poco tiempo. La vivienda puede independizar sus módulos en caso de que los ususarios necesiten de mayor privacidad o independencia. Cuando una necesidad espacial específica sea requerida, los módulos pueden ser modificados fácilmente por los usuarios.
PUERTO X también representa una solución ideal para pequeñas y medianas empresas, pudiendo servir como un espacio creativo para el trabajo diario o sala de exposición para presentar productos únicos. Además de que siempre seguirá en sus ambiciones de crecimiento.




























