26 de Febrero 2011
By Andrew Rosenberg — Filed under: Hotels and Restaurants , Chris Briffa Architects, Malta, Valletta
© Courtesy of Chris Briffa Architects
Architects: Chris Briffa Architects
Location: Valletta, Malta
Design: Chris Briffa, Sandro Valentino, Eleonora Zinghini
Client: Valletta Local Council
Project situation: Awaiting Development Permission
Images: Courtesy of Chris Briffa Architects
© Courtesy of Chris Briffa Architects
Marsamxetto Harbour will site a new, sea-front hotel, integrating a contemporary building with a 16th century period house; believed to have been occupied by Valletta’s renowned artist Mattia Preti.
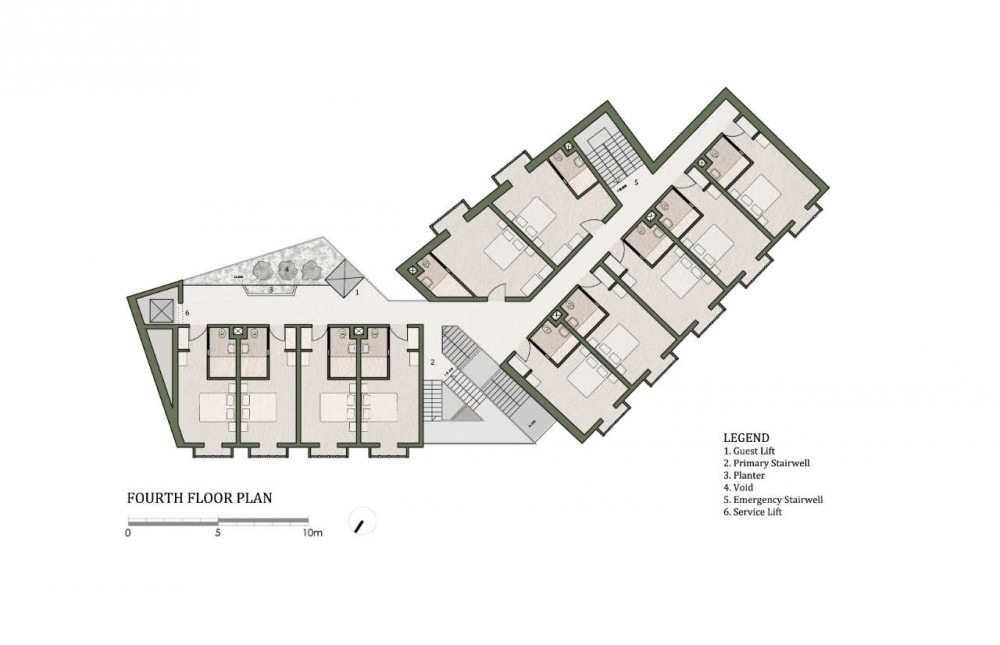
Perched on the edge of Salvatore Bastion, the project consists of two main interventions. Firstly it involves the restoration and conversion of the Mattia Preti House into the hotel’s common areas on the ground floor and four luxury suites on the first floor. Secondly, the two infill volumes – one adjacent to the house and one overlying it – will effectively harmonize Masamxetto’s skyline when viewed from across the harbour, whilst supplying the hotel with a further 35 guest rooms and a penthouse suite.
© Courtesy of Chris Briffa Architects
A pedestrian, stepped walkway will detach the new construction from the old, revealing the corner façade of the old house, while providing public access from Marsamxett Road to Old Theatre Lane. Glass bridges will link the two buildings above the public walkway, while a glazed façade on Old Theatre Lane will introduce the energy of a busy hotel atrium into an otherwise very narrow and dreary alleyway.
With the site lying directly above the Valletta-Sliema ferry dock, a proposed public lift (accessible from the street while lying in the hotel’s footprint) will connect Marsamxett Road to the seafront below. This will facilitate vertical access to guests, visitors and locals arriving from across the harbour. The adjacent and currently derelict water polo pitch will be converted into the hotel’s lido and beach facilities, possibly also reinstating the defunct Valletta water polo club.
© Courtesy of Chris Briffa Architects
© Courtesy of Chris Briffa Architects
The visual integration with the adjacent buildings and fortifications, particularly when viewed from across Marsamxetto Harbour, required an aesthetic that had to be primarily centred on the use of local limestone. Old and New are integrated in their materiality and separated by distinct voids. The new stepped walkway and a recessed floor will create this separation in the form of strong ‘shadow gaps’ in order that both remain clearly identifiable.
We wanted to ensure views from the rooms, and yet were preoccupied with antagonistic, large glazed apertures. This led to the creation of a delicate, sculptural skin; which satisfied both concerns.
© Courtesy of Chris Briffa Architects
Approaching the hotel from either side of Valletta’s peripheral road at first presents a façade built entirely out of stone. The façade’s tactile geometry, borrowed from the nearby bastions, reveals the apertures only when one stands directly in front of the building. From across the harbour, the prevailing areas of stone and the vertically proportioned openings merge happily with the surrounding windows and gallarija cityscape.
This new experience of the city, we are very hopeful, will promote Valletta as a top international destination, while restoring the sophistication and innovative motivations of its original enlightened architects and creators.





http://www.archdaily.com/112092/40-room-boutique-hotel-chris-briffa-architects/#more-112092












