9 de Marzo 2011
Por Catalina Gutiérrez
PUBLICADO EN: Arquitectura de Interiores, Hoteles y Restaurants, Obras Destacadas , bar, España, Girona, metal, On-A
© Lluis Ros / Optical Addiction
Arquitectos: On-A – Jordi Fernández, Eduardo Gutiérrez
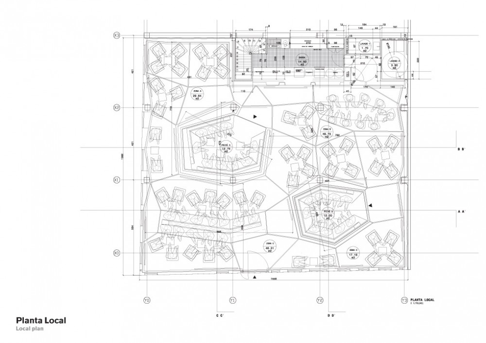
Ubicación: Pl. Església, 3, Empuriabrava, Girona, España
Cliente: Evaristo Gallego – Gallego World
Colaboradores: Bernardo Magalhaes, Jordi Farell
Arquitecto técnico: Xavier Badia
Ingeniería instalaciones: Xavier Escribano
Maqueta: Guillermo Beluzo y Marcelo Cortez
Constructor: Construccions Joan Fusté
Corte y plegado metal: Laser Goded
Montaje y colocación metal: CMTPSL
Laminados vidrios: CRICURSA
Corte y colocación vidrios: Vidres Gracia
Aire acondicionado: AITERM
Pintura: TALYALI
Pavimento continuo: QUIMIPRES
Carpintero: Fusteria Gironela
Tapicería: Ramón Pujades
Mobiliario hostelería: FREDTERM
Taburetes: ERGODEC
Butacas y pufs: EUROMOBLE
Luminarias: CA2L
Instalador:Josep Ponsati
Metacrilatos luminarias: COMPLAS
Vinilos: RETOLAM
Sonido: PENTAMUSIC
Superficie: 250 m2
Año de Proyecto: 2005
Año construcción: 2006
Fotografías: Lluis Ros – Optical Addiction
El proyecto consiste en un lounge bar que nace con una premisa base: la singularidad y el trato exclusivo al cliente.
Se conforma a partir de un espacio único que sea capaz de generar una gran cantidad de percepciones: visuales, cromáticas, auditivas y sensitivas.
Como solución, se propone realizar una malla metálica tridimensional formada por más de 300 piezas diferentes y que al deformarla, estirarla y moldearla, se adapta a la arquitectura existente del edificio donde se inserta.
© Lluis Ros / Optical Addiction
Así, se presenta como una sola envolvente que va generando diferentes espacios, y que a la vez los separa visualmente. Una única solución; un elemento unitario pero con multiplicidad de variables.
http://www.plataformaarquitectura.cl/2011/03/09/5-sentidos-lounge-bar-on-a-arquitectos/#more-77944
















