2 de Abril de 2011
Por Catalina Gutiérrez
PUBLICADO EN: Arquitectura de Interiores, Arquitectura de Oficinas, Obras Destacadas , AeI Arquitectura e Interiores, Bogotá, colombia, interiores, oficinas
© Andrés Valbuena
Arquitectos: AeI, Arquitectura e Interiores
Ubicación: Bogotá, Colombia
Director departamento diseño: Juan Pablo Campos
Coordinador de diseño de calidad: Natalia Heredia
Arquitecto diseñador: Ignacio Arciniegas
Director departamento construcción: Daniel Salcedo
Coordinador Proyecto: Alfonso Llanos
Arquitecto supervisor de construcción: Maria Fernanda Correa
Director de proyecto: Marta Gallo
Gerente general / Socio: Juliana Fernández
Superficie Proyecto: 910 m2
Fotografías: Andres Valbuena
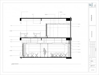
Cuando empezamos a pensar la construcción de nuestra nueva sede de una manera sustentable, pensamos en los elementos básicos como la calidad de la luz, el aire interior, agua y confort, para crear un espacio no solo eficiente en consumo de energía, sino un lugar de trabajo saludable para los 90 empleados, proveedores y clientes.
© Andrés Valbuena
Este proyecto es parte del grupo pionero de construcción en Colombia, registrado con certificación LEED en diseño y construcción sustentable en el país.
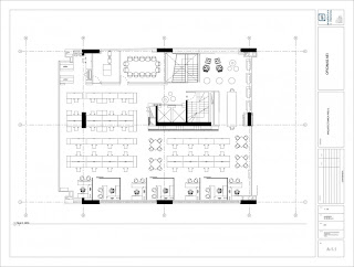
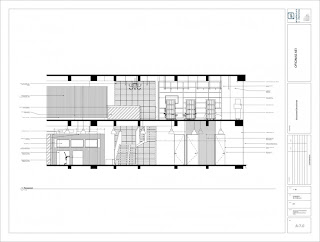
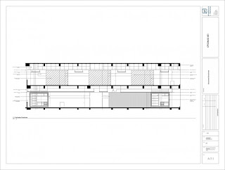
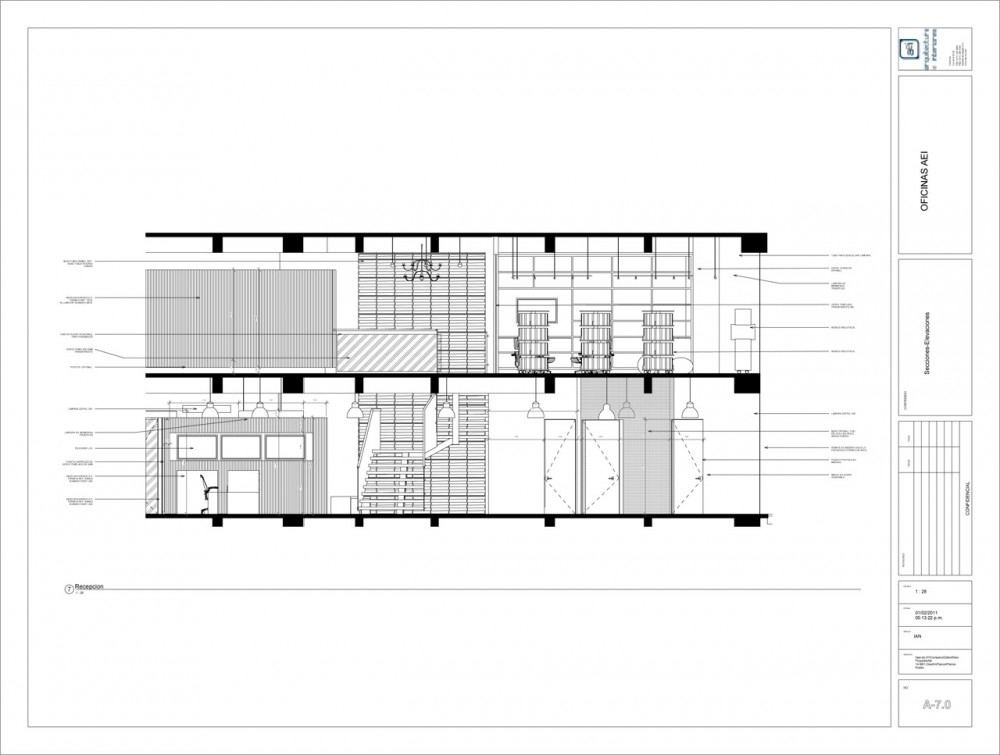
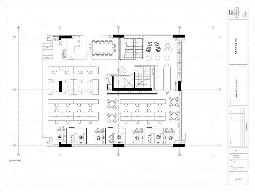
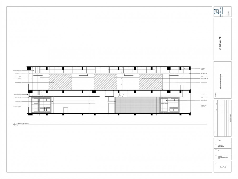
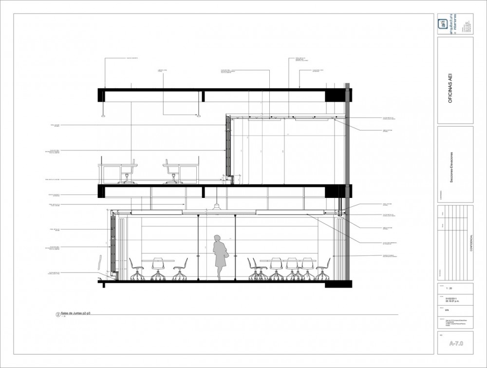
El proyecto se inserta en la ciudad de Bogotá, en la calle Cra. 14 No. 98 – 5, edificio AeI construido en un terreno de una urbanización anterior. La oficina ocupa una superficie de 1.000 m2 en los pisos 2 y 3 del edificio, y están diseñadas y construidas por las mismas compañías que realizaron el edificio; diseñado por AeI, y construido por CURE Architects.
© Andrés Valbuena
La oficina consiste en una recepción, oficinas abiertas, oficinas privadas para los gestores de la empresa, salas de reunión, salas de trabajo, biblioteca y sala de muestras, centro de computación, centro de copiado, baños y una cafetería en terraza.
http://www.plataformaarquitectura.cl/2011/04/02/aei-headquarters-aei-arquitectura-e-interiores/














