![]() |
| © Alexandra Mocanu |
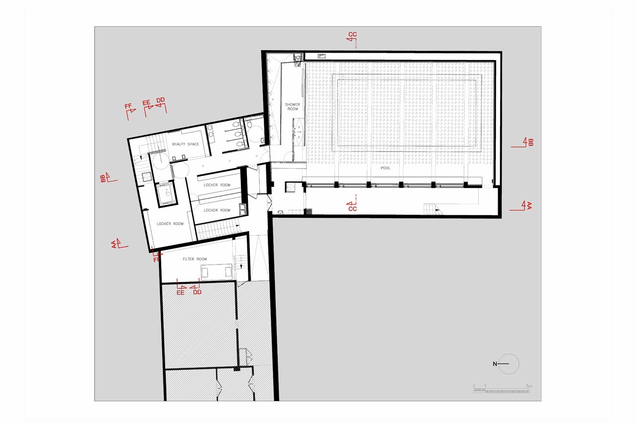
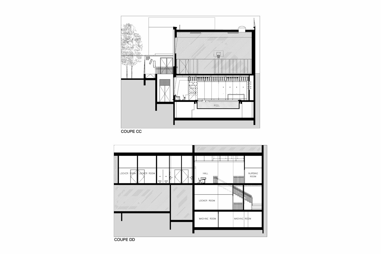
Installed in the 1970s Atlas Sports Center is located in Paris. In 2009, the city of Paris was checking the dilapidated state of the building and was to modernize the equipment.
Usually there are a lot of limiting factors for remodeling a project. The architects tried to overcome the narrowness, the absence of view etc. with “Flowing space” and “Sensory play”.
The interior of the old Sport Center was completely redone. The volume of the elevator that connects the two layers forms the axis. The entering flow proceeds to the stairs circling around this volume. The ceiling lights emphasize further the direction of the path. The pink partition limits the Space Beauty but doesn’t close it. The reflection of the mirror and the transparency of the glass make the effect of the spatial expansion.
As the program is a pool, especially tactile inspiration and sensuality was considered as a major topic. The choice of HI-MACS® Artic White as the single material enabled the creation of an atmosphere exclusive to a swimming pool, in terms not only of its visual, sensory and tactile dimensions, but also the immediate relationship between body and mind.
As a vehicle for the tactile experience, the human body is completely immersed in its senses. The smoothness of the wall and the floor covered only with Solid Surface give enough tactile pleasure. The acoustic comfort is maximized through the Pin-ceiling and the wall echo-system.
he visual rhythm is produced in harmony with the exposed concrete beams. Various sensory experiences take place in a minimalist space mono-blocked of Solid Surface.
A high level of attention to detail creates conditions for the materials, illumination and calming atmosphere to be perceived in the best possible light by the general public.
![]() |
| © Alexandra Mocanu |
![]() |
| © Alexandra Mocanu |
![]() |
| © Alexandra Mocanu |
![]() |
| © Alexandra Mocanu |
![]() |
| © Alexandra Mocanu |
![]() |
| © Alexandra Mocanu |
![]() |
| © Alexandra Mocanu |
![]() |
| © Alexandra Mocanu |
![]() |
| © Alexandra Mocanu |
![]() |
| © Alexandra Mocanu |
![]() |
| © Alexandra Mocanu |
![]() |
| © Alexandra Mocanu |
![]() |
| © Alexandra Mocanu |
![]() |
| © Alexandra Mocanu |
![]() |
| © Alexandra Mocanu |
![]() |
| © Alexandra Mocanu |
![]() |
| © Alexandra Mocanu |
![]() |
| © Alexandra Mocanu |
![]() |
| Section |
![]() |
| Section |
![]() |
| Section |
![]() |
| Plan |






















