03 de febrero de 2011.

© José Campos
Architects: Imago / André de Moura Leitão Cerejeira Fontes & António Jorge de Moura Leitão Cerejeira Fontes
Location: Brufe, Vila Nova de Famalicão, Portugal
Co Author: Nuno Cruz, António Dias and Bruno Marques
Collaborators: Architect José Forte, Architect Sónia Gonçalves, Architect José Pedro Fernandes, Architect José Miguel Bahia, Architect Pedro Negrões Soares, Engineer Eugénia Fontes, Dr. Tiago Fontes
Construction: Telhabel Construções, S.A.
Project Area: 1,876.95 sqm
Project Year: 2010
Photographs: José Campos – arqf

© José Campos
Architects: Imago / André de Moura Leitão Cerejeira Fontes & António Jorge de Moura Leitão Cerejeira Fontes
Location: Brufe, Vila Nova de Famalicão, Portugal
Co Author: Nuno Cruz, António Dias and Bruno Marques
Collaborators: Architect José Forte, Architect Sónia Gonçalves, Architect José Pedro Fernandes, Architect José Miguel Bahia, Architect Pedro Negrões Soares, Engineer Eugénia Fontes, Dr. Tiago Fontes
Construction: Telhabel Construções, S.A.
Project Area: 1,876.95 sqm
Project Year: 2010
Photographs: José Campos – arqf


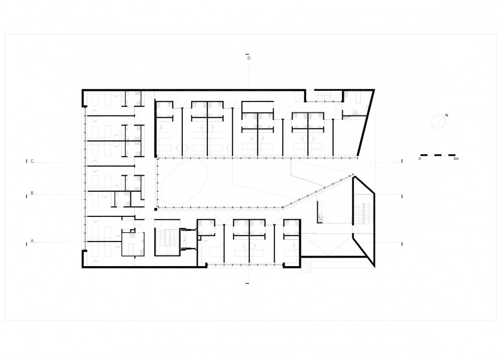
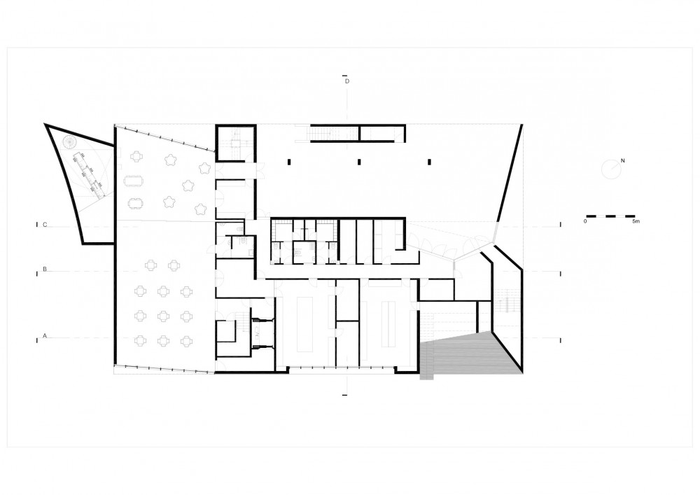
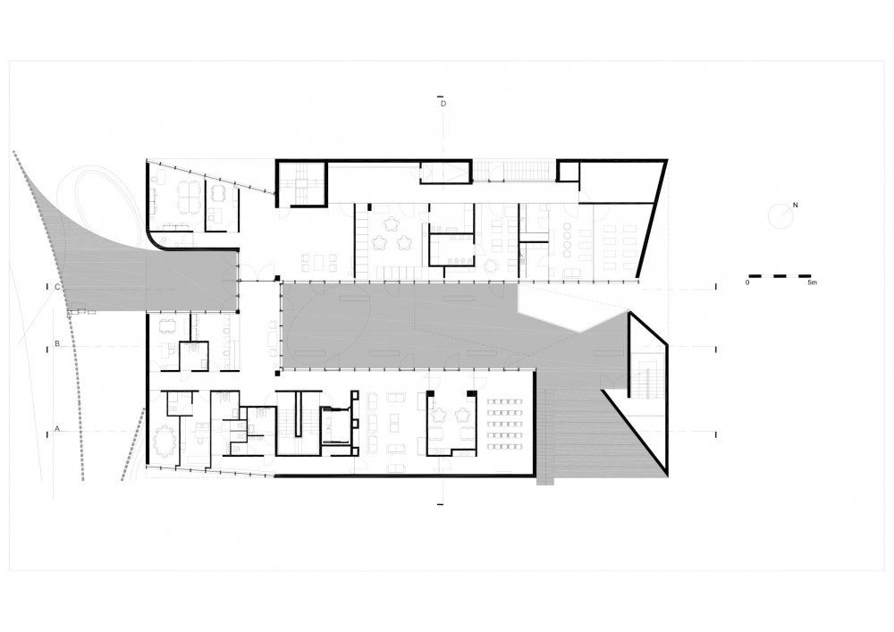
Based on a block form some openings are carved to illuminate the interior space or in most cases tearing and piercing the building to its inner courtyard. The building is turned inside out: the exterior façades look opaque, dense, with just a few carves in the main points of the building like the stairs and the main entrance. The interior façades appear as a translucid and continuous glass curtain wall that embrace the internal patio shaded by proposed trees.

© José Campos
In the top portion of the mass each carving provokes an event with its surroundings, covered parking spaces, main entrance, and a covered seating area for open air events. The programs criteria includes day care, rest home, office and service areas and is organized in functional blocks surrounding a central court yard. The physical communication within itself accentuates permanent visual relationship. The interconnection or independence when necessary is distributed in a permanent manner.






















http://www.archdaily.com/108290/brufe-social-center-imago/