Triangular floor tiles gradually change colour from green to red inside this renovated Barcelona apartment by London studio David Kohn Architects.
![]() |
| (c) José Hevia Blach |
|
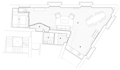
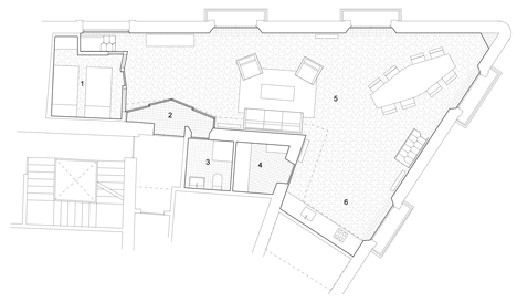
Located in the city’s Gothic Quarter, the apartment is owned by two brothers that currently live in London and Hong Kong. The pair asked David Kohn Architects to design them a holiday home in the city they grew up in. The architects began by stripping away most of the apartment’s internal partitions, creating an open-plan living space that makes the most of the large windows, high ceilings and ornate mouldings. The new decorative floor tiles – made up of 25 different designs – offer a splash of colour to the space. Their gradual change in tone loosely defines the realms of each occupant, with the green tiles surrounding a stack of two bedrooms and the red tiles framing a kitchen with a bedroom above. Indoor balconies form a corridor between the two first-floor bedrooms and their en suite bathrooms, but also creates the bookshelves for an informal library. A custom-made table is positioned at the apex of the plan, providing a large family dining area at the spot where the green and red tiles are most mixed. David Kohn launched his studio in 2007. Other projects completed since then include a rooftop events space in London and an arts venue in a former sweet factory.
Carrer Avinyo, Barcelona Refurbishment of a piano nobile apartment on Carrer Avinyó in the Gothic Quarter of Barcelona. The apartment is situated at a major crossroads in the city. Like the Flatiron Building in New York, where Broadway meets the city’s orthogonal grid, the triangular plan of the apartment’s interior registers a similar moment in Barcelona’s historic quarter; Plaça George Orwell. Our first intervention is to strip back the internal partitions to reveal the junction and so reconnect living in the apartment to the streets beyond. The apartment will be the holiday home of two brothers who grew up in Barcelona but now live in London and Hong Kong. New bedrooms are created inside large pieces of furniture that have the appearance of small buildings – the city beyond the apartment walls is mirrored by a diminutive city within. The high-level library becomes balconies that connect each bedroom to their en-suite bathrooms. Beneath a balcony a glazed lobby provides a threshold between the apartment and the city. The new mosaic floor of the apartment is decorated with a triangular pattern that matches the geometry of the plan. The tile pattern is graded in colour from green at one end of the apartment to red at the other to differentiate the brothers’ private spaces. The tiles were being made by Mosaics Martí who supplied the product for Gaudi’s projects in the city. A large, specially designed dining table stands at the street corner where the red and green are most mixed and will become the meeting place for family and friends. |
|
(c) José Hevia Blach
|
![]() |
| (c) José Hevia Blach |
![]() |
| (c) José Hevia Blach |
![]() |
| (c) José Hevia Blach |
![]() |
| (c) José Hevia Blach |
![]() |
| (c) José Hevia Blach |
![]() |
| (c) José Hevia Blach |
![]() |
| Site Plan |
![]() |
| First Floor Plan |
![]() |
| Ground Floor Plan |
![]() |
| Axonometric Diagram |
![]() |
| Floor Tile Patterns |
Project Name: Carrer Avinyó
Architect: David Kohn Architects
Executive Architect: Ángel Martín Cojo Arquitecto
Structural Engineer: Area 5
Client: Private
Main Contractor: Brick Serveis D’interiorisme
Joinery: Soldevila
Metalwork: Enmometall
Hydraulic Tiles: Mosaics Martí












