Nos gusta esa cualidad de la arquitectura de hacer posible el construir una casa en el aire, caminar sobre el agua.
![]() |
| (C) Diego Opazo |
Un solar abrupto que mira al mar, lo mejor no hacer nada, apetece quedarse.
Se engarza una pieza que respeta el perfil natural del terreno.
Arriba, la sombra, la casa, mirando serenamente hacia el mar Mediterráneo.
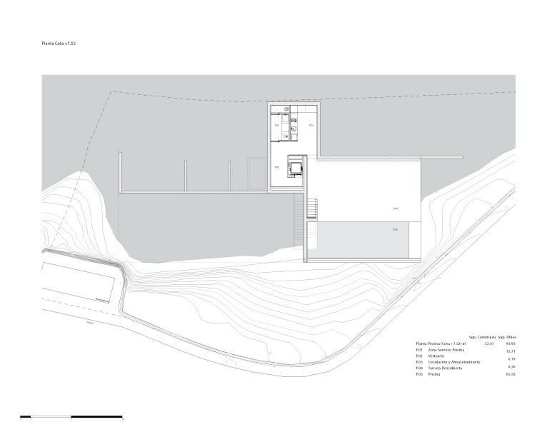
Bajo el sol, la piscina nos acerca el mar, una cala tranquila.
En el punto de inflexión, la escalera propone un recorrido sugerente, un jardín en el sótano…
Dada la fuerte pendiente de la parcela y la voluntad de desarrollar la vivienda en una sola planta. Se opta por una estructura tridimensional de pantallas y losas de hormigón armado que se adapta a la topografía realizando el mínimo movimiento de tierras posible. Esta estructura monolítica anclada a la roca genera una plataforma horizontal ,en la cota de acceso desde la calle, en la que se ubica la vivienda. La zona de la piscina se encuentra a una cota inferior en una zona plana existente en el solar. La estructura de hormigón se aísla térmicamente por el exterior, con un estuco de cal liso, flexible y blanco como acabado. El resto de materiales, paredes, pavimentos, grava de la cubierta…mantienen el mismo color enfatizando el carácter unitario.
![]() |
| (C) Diego Opazo |
![]() |
| (C) Diego Opazo |
![]() |
| (C) Diego Opazo |
![]() |
| (C) Diego Opazo |
![]() |
| (C) Diego Opazo |
![]() |
| (C) Diego Opazo |
![]() |
| (C) Diego Opazo |
![]() |
| (C) Diego Opazo |
![]() |
| (C) Diego Opazo |
![]() |
| (C) Diego Opazo |
![]() |
| (C) Diego Opazo |
![]() |
| (C) Diego Opazo |
![]() |
| (C) Diego Opazo |
![]() |
| (C) Diego Opazo |
![]() |
| (C) Diego Opazo |
![]() |
| (C) Diego Opazo |
![]() |
| (C) Diego Opazo |
http://www.noticiasarquitectura.info/especiales/casa-del-acantilado.htm
























