21 de enero de 2011.

MCM Partnership has shared with us their design for the Great Northern Way’s new campus building, the Center for Digital Media. Follow after the jump for additional rendering, graphics and a description from the architect.

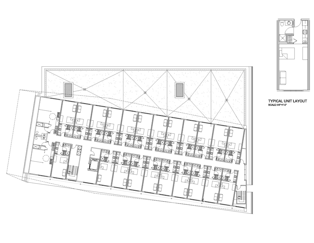
This new building will house the Masters of Digital Media (MDM) Program and provide student dormitory enrolled in the program. The design of this building is a vessel for emerging technology set within an industrial context of the Great Northern Way campus (GNWC). The concept diagrams describe the building as a technology ribbon around the program uses. Inspired by two themes or dialogues – technology and regionalism.

A singular ribbon, folding and bending, collects these uses to engage the street as the catalyst marker on the Great Northern Way Campus site. The wrapping gesture is directional to reflect the orientation of the student housing and to minimize solar heat gain on the east and west elevations. The exterior wrap symbolizes industry and is expressed in the metal recalling the Finning International industrial site; the interior wrap symbolizes Regionalism and is expressed in the use of cedar wood.








http://www.archdaily.com/104984/center-for-digital-media-mcm-partnership/#more-104984