El proyecto surge tras resultar ganador de un concurso convocado por el Ayuntamiento de León en el año 2003. Los condicionantes más importantes fueron:
– Impacto volumétrico mínimo, no superando la altura de 9m en todo el conjunto.
– Intento de lograr una arquitectura que responda a las necesidades dotacionales del barrio y a su vez establezca un diálogo con el espacio público y la edificación que le rodea.
– Inserción de programa de Polideportivo dentro del Centro Cívico, pero con funcionamiento independiente.
– Acceso peatonal al edificio localizado en la misma zona pero independiente para uno y otro uso, de tal modo que se favorezca la gestión de ambas dotaciones en común o separadamente.
– Configuración de espacios diáfanos y de mínima complejidad espacial que favorezcan la fácil adaptación a posibles cambios del programa del Centro Cívico.
– Presupuesto ajustado. Minimización de costes.
– Ordenanzas para Equipamiento socio-cultural.
-Criterios específicos
El proyecto se sitúa en un solar de 4.444,34 m2 de superficie, resultante del desarrollo del Plan Parcial “Ventas Oeste” limítrofe a la trama urbana consolidada y al lado del Colegio Público Cervantes y muy próximo al Complejo Hospitalario.
Debido a estos factores el proyecto emerge como una serie de volúmenes bajo la luz, de cajas que brillan con luz propia y que dotan a la propuesta de una imagen definida que confiere identidad al entorno más inmediato del barrio.
Las vistas desde el volumen proyectado no son una premisa de proyecto, ya que éstas son inexistentes. El edificio busca, pues, la organización volumétrica interior utilizando el hecho de cualificar y tamizar la luz exterior con el fin de crear unos espacios funcionales al interior y una presencia bien definida al exterior.
Dicho espacio contenido entre las cerchas constituye un juego de “llenos” más o menos diáfanos que permiten la multifuncionalidad de tales espacios, y de “vacíos” que, por un lado, rompen la posible imagen monolítica del conjunto al exterior y, por otro, contribuyen a crear espacios privados, generando una especie de jardín urbano elevado sobre la cota de la calle.
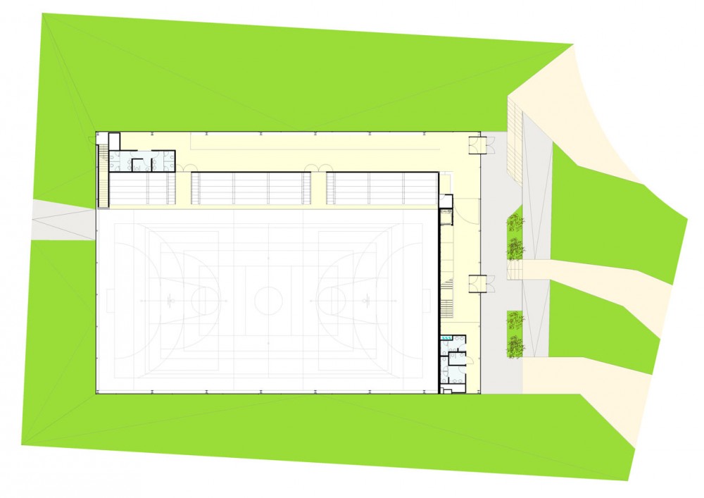
El programa del edificio se caracteriza por la inserción de usos destinados a polideportivo dentro del Centro Cívico. Debido a las limitaciones de superficie y volumen del conjunto dicha coexistencia provoca que ambos programas compartan una serie de espacios, como pueden ser las zonas de acceso, de comunicación vertical e instalaciones.
Las zonas que el Polideportivo ocupa en la planta baja se corresponden con el acceso tanto de deportistas como de visitantes; estos últimos acceden a la zona de graderíos en esta cota +0.00, en la cual se sitúan también los aseos y la zona de control, además del vestíbulo que distribuye a los visitantes y contiene la rampa que conduce a los deportistas al nivel de la pista. Dicha rampa discurre paralela a la fachada Oeste, cuyo cerramiento vertical es de policarbonato en el que se inserta un hueco de vidrio transparente que acompaña al movimiento de bajada.
El acceso al centro Cívico se realiza en la cota +0.00m, donde se encuentran el vestíbulo de distribución que contiene los elementos de comunicación vertical (escalera y ascensor) y los aseos. Dicho vestíbulo a doble altura tiene la posibilidad de unirse al del polideportivo en caso de que sea necesario, o bien de independizarse por medio de un elemento móvil de vidrio transparente que constituye una barrera física que favorece la gestión separada de uno y otro programa, pero que no por ello rompe la percepción espacial del conjunto.




















