1 de Abril de 2011
Por José Tomás Franco
PUBLICADO EN: Arquitectura Deportiva, Obras Destacadas , Escocia, Reiach And Hall Architects
© Ioana Marinescu
Arquitectos: Reiach And Hall Architects
Ubicación: Aberdeen, Escocia
Consultores – Arquitectura: KSS Design Group
Consultores – Presupuesto: Thomson Bethune
Ingeniería Estructural: SKM Anthony Hunts
Servicios de Ingeniería: KJ Tait Engineers
Paisaje: Horner + Maclennan
Especialista en Deportet: PSD
Supervisor Planificación: Reiach and Hall
Ingeniería contra el Fuego: Arup
Acústica: Arup
Jefes de Proyecto: Drivers Jonas Sport
Superficie: 17.650 m2
Fotografías: Ioana Marinescu
El nuevo Centro Deportivo para la ciudad de Aberdeen es un centro cívico para la comunidad. El proyecto fue financiado por la Universidad de Aberdeen, la Municipalidad de la ciudad y la agencia SportScotland, trabajando en el proyecto en conjunto con los arquitectos desde el año 2005 al 2007.
© Ioana Marinescu
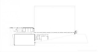
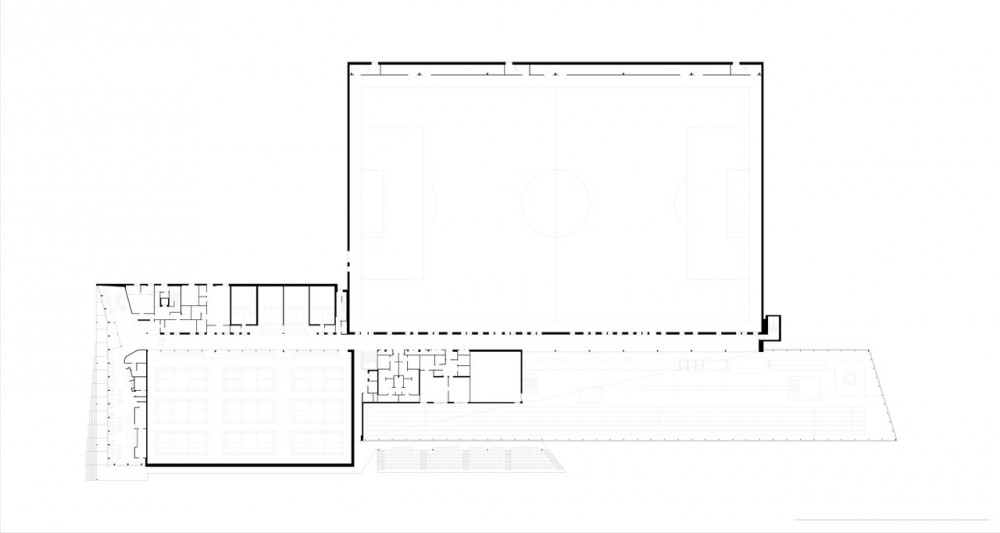
El edificio abrió sus puertas en agosto de 2009 y es un centro acreditado para el desarrollo de una amplia variedad de deportes. Contiene una cancha para fútbol en sala, una cancha de usos múltiples, una pista de atletismo cubierta, cuatro canchas de squash, un una sala de máquinas de 100 estaciones, una gradería para 500 espectadores, oficinas, camarines, laboratorios de rendimiento, una cafetería y una cancha de hockey exterior. Con este nivel de equipamiento, el Centro fue pre-seleccionado como base de entrenamiento para los Juegos Olímpicos de 2012.
© Ioana Marinescu
“El deporte se basa en el compromiso y la disciplina, pero también tiene que ver con la diversión. Todos los deportistas deben tener buena disciplina y capacidad técnica, pero los grandes deportistas también tienen talento y personalidad, algo que los diferencia de los demás”. El edificio en Aberdeen toma este pensamiento como una inspiración; fue rigurosamente planificado, pero también contiene muchos gestos y elementos relacionados con el deporte y el juego.
© Ioana Marinescu
Por ejemplo, las formaciones de los equipos ganadores en la Copa del Mundo inspiraron la disposición de las ventanas en una de las canchas de fútbol.
Maqueta de Estudio
Una gran viga estructural de 104 metros de largo, que sostiene el piso de la sala de máquinas y un salón de baile, es un gesto que representa la fuerza muscular, mientras que los delgados elementos estructurales de las paredes representan la elegancia y la finura.
© Ioana Marinescu
Colores relacionados con la ropa deportiva y los equipos han sido cuidadosamente incorporados en el diseño para “animar” los espacios de circulación y ayudar a la gente a orientarse en todo el edificio.
© Ioana Marinescu
“En este proyecto hemos tratado de diseñar un edificio que contenga espacios inspiradores para motivar a la comunidad y a las próximas generaciones. Nos alegramos mucho cuando Louise Martin, presidente del SportScotland dijo: ‘Tenemos ahora un lugar de formación excepcional y espero que esto inspire a muchas más personas a mantenerse activos y a potenciar el talento de muchos nuevos deportistas”.
http://www.plataformaarquitectura.cl/2011/04/01/centro-de-deportes-aberdeen-reiach-and-hall-architects/



















