15 de diciembre de 2010.

© Nathan Kirkman Photography
Architects: John Ronan Architects
Location: Chicago, USA
Design team: John Ronan, Gregory Pinter, Evan Menk, Marcin Szef, Anna Ninoyu, Elizabeth Kraft
Project area: 94,000 sq. ft.
Project year: 2008
Photographs: Nathan Kirkman Photography

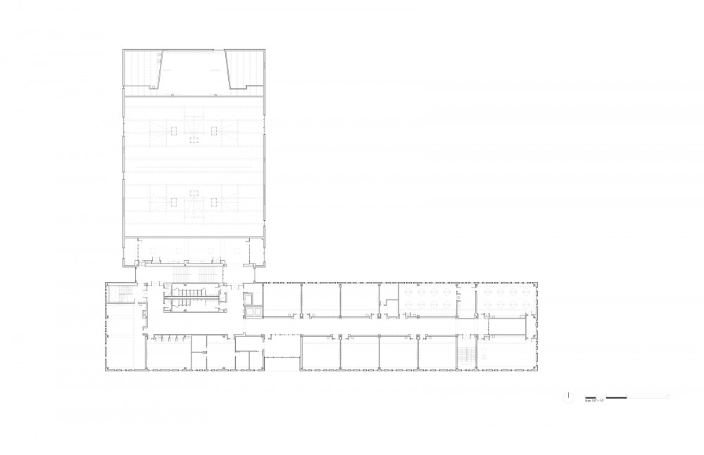
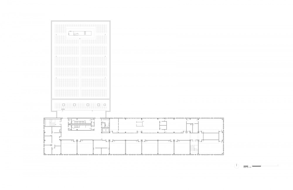
This private high school in the Austin neighborhood of Chicago is based on the Jesuit educational concept of Corus Personalis, or care of the whole person. The L-shaped building forms a courtyard with an existing Jesuit middle school on the site, and is composed of a longer academic wing running east-west with a Chapel and library, and an athletics wing running north south on the site, including gymnasium, stage, and fitness rooms.

The building is placed on the corner of the intersection of Jackson Street and Leamington, to directly engage with the community; it’s L-shaped plan formally relates to the L-shaped middle school building on the opposite corner of the site, and allows for building phasing to meet the school’s aggressive schedule for serving the community, and allowing the academic wing with classrooms to open prior to completion of the athletics wing.

The structure of the building is steel frame with precast concrete plank to address budget limitations, speed of construction, and acoustic issues within the school. The Chapel anchors the east end academic wing and is day lit from a skylight monitor rising three stories; glass block, in a random pattern, surrounds the chapel space on three sides.

The large dining hall at the west end of the academic bar has floor-to-ceiling glass to engage with the community in a positive way; students will use this space for meals and for gathering before and after school. The space also serves as a waiting area for students coming and going in the school’s unique Corporate Internship Program.

The building frames a courtyard that looks out onto a large green space public park to the north. In this courtyard, students will socialize, recreate, take outdoor instruction and participate in Mass. Custom Stations of the Cross panels are integrated into the building’s colored cement panel façade in this area, which start on the wall near the Chapel and continue around the courtyard.








http://www.archdaily.com/95806/christ-the-king-jesuit-college-preparatory-school-john-ronan-architects/