![]() |
| © Marcos Mendizával |
Descripción de los arquitectos. El edificio Costanera Cosas destaca por ser uno de los primeros edificios en tener certificación Leed Cs (sistema de evaluación Leed Cs v2.0) categoría Oro, que permite ofrecer un edificio sustentable en relación al medio ambiente y a su capacidad de no perder valor en procesos de deterioro tanto en sus instalaciones técnicas como de su propia Arquitectura y al mismo tiempo incorpora criterios de conservación y ahorro energéticos pioneros en nuestro país.
El emplazamiento de un edificio de oficinas (Costanera Cosas) en la periferia de un centro de servicios consolidado como Providencia y sus condiciones de lugaridad, parques urbanos y vialidad a macro escala urbana confieren un desafío al modelo placa-torre como una pieza arquitectónica que conforman el perfil de la ciudad y su espacio público.
El edificio se emplaza en un solar que da a tres calles, su frente mas relevante hacia la avenida Andrés Bello (parque) y su frente de mayor dimensión (Almirante Pastene) le importan una preponderante orientación hacia el nor-poniente, consecuentemente el edificio en su primer nivel se recoge de la linea de edificación permitida vaciando parte de su placa en beneficio de dotar a la cuidad de un espacio público relevante en todo su frente, constituyendo una amplitud espacial en los perfiles de calles menores como Almirante Pastene, la placa se trabaja como un nivel muy pristino y transparente permitiendo que el comercio se establezca en una relación de continuidad interior-exterior que valoriza el espacio público.
Los 9 niveles sobre la placa se constituyen como plantas libres susceptibles de ser atomizadas en oficinas de tamaño medio (5 oficinas de 150 m2) servidos por un núcleo de ascensores y escalera de seguridad, sus respectivas instalaciones, que se emplaza contiguo a la fachada nor-oriente.
El envolvente del edificio ha sido concebido desde la perspectiva de la eficiencia en el uso de la energía y ambientalmente responsable respecto a su impacto en la cuidad, para ésto se ha desarrollado en las fachadas Norte y Poniente una retícula de muro cortina con un 50% de opacidad por medio de revestimientos ventilados de granito gris y cristales de altas prestaciones en sus valores de coeficiente de sombra y el valor “U” y baja reflectividad para lograr un buen aprovechamiento de la luz natural, lo anterior sumado a un sistema de clima en base al sistema VRV (volumen en refrigerante variable) que optimiza por medio condensadores eléctricos, refrigerantes y flujo variable la operación del clima pudiendo discrecionar por orientación la entrada en funcionamiento de los distintos condensadores.
El sistema de clima se emplaza en un piso mecánico que actúa como coronación del volumen de la torre.
El tratamiento del envolvente y su patteon muro cortina intenta diluir la identificación del piso a piso, produciendo módulos verticales cada dos niveles; un desfase en la verticalidad de los módulos intenta producir un vibrato en el contraste opacidad/transparencia logrando una unidad de lectura en la pieza arquitectónica como elemento que se constituye por adición a la ciudad en el modelo de torre aislada y Ciudad jardín.
![]() |
| © Marcos Mendizával |
![]() |
| © Marcos Mendizával |
![]() |
| © Marcos Mendizával |
![]() |
| © Marcos Mendizával |
![]() |
| © Marcos Mendizával |
![]() |
| © Marcos Mendizával |
![]() |
| © Marcos Mendizával |
![]() |
| © Marcos Mendizával |
![]() |
| Elevación Oriente-Poniente |
![]() |
| Elevación Sur |
![]() |
| Planta Primer Piso |
![]() |
| Corte AA |
![]() |
| Elevación Norte |
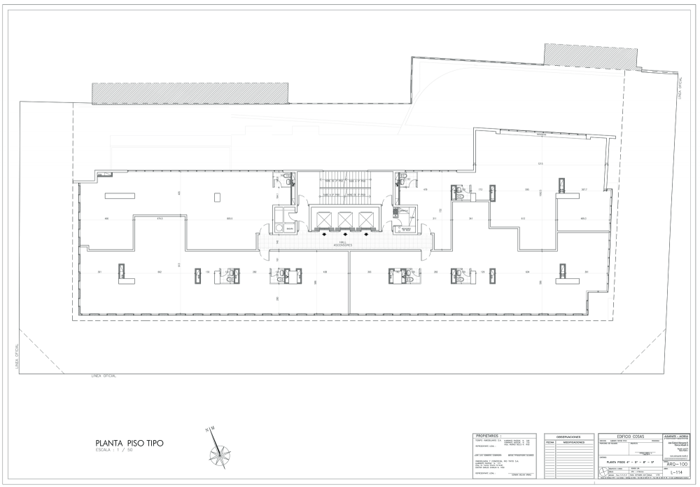
![]() |
| Planta Piso Tipo |
![]() |
| Planta Piso 10 |
![]() |
| Corte BB |
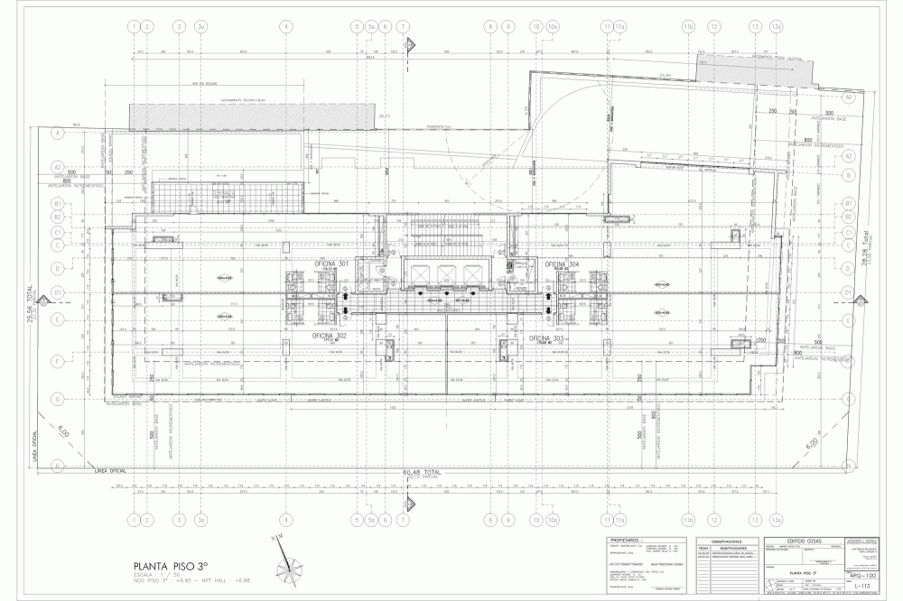
![]() |
| Planta Piso 3 |
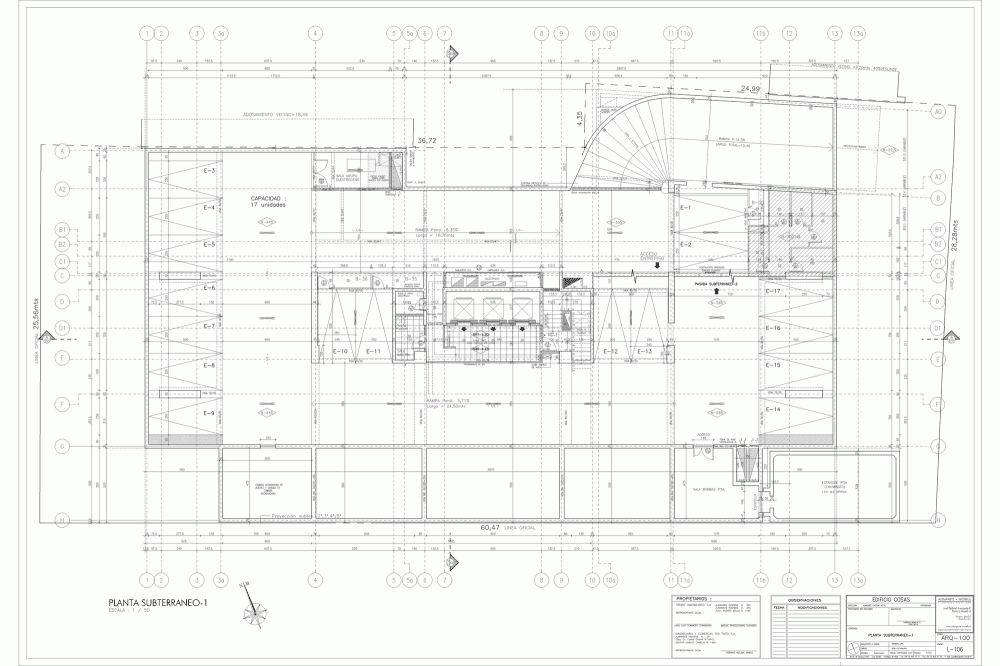
![]() |
| Planta Subterráneo -1 |
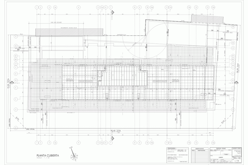
![]() |
| Planta Cubierta |
http://www.plataformaarquitectura.cl/2014/02/06/edificio-costanera-cosas-alemparte-morelli-and-asociados-arquitectos/



















