18 de Marzo de 2011
Por José Tomás Franco
PUBLICADO EN: Sustentabilidad, Vivienda Colectiva , arquitectura australiana, Australia, Stanisic Associates, ventilación cruzada
Cortesía de Stanisic Associates
Arquitectos: Stanisic Associates
Ubicación: 88 Crown Street, Sydney, Australia
Equipo: Rob Harper, Peter Rush, Angela Rheinlaender, Damien Madell
Interiores: L3 Design
Paisaje: Aspect Sydney
Arte: Peter McGregor
Ingeniería Estructural: SCP Consulting
Servicios de Ingeniería: ITC Consulting
Constructora: TQM Design and Construct
Cliente: Buildcorp
Superficie 3.040 m2
Fecha: 2009
Fotografías: Patrick Bingham-Hall, Brett Boardman
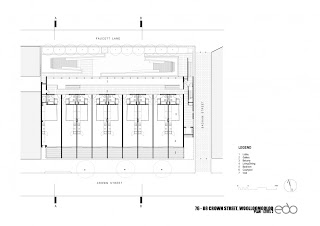
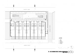
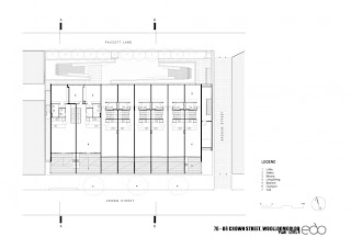
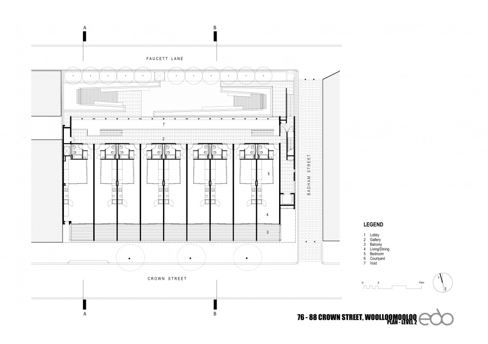
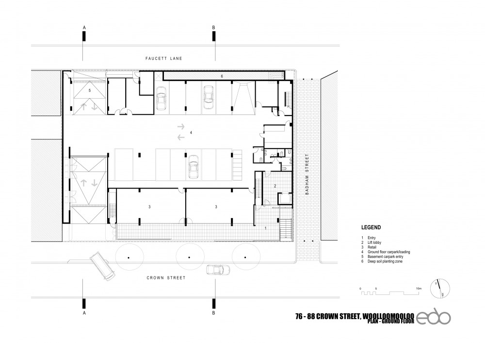
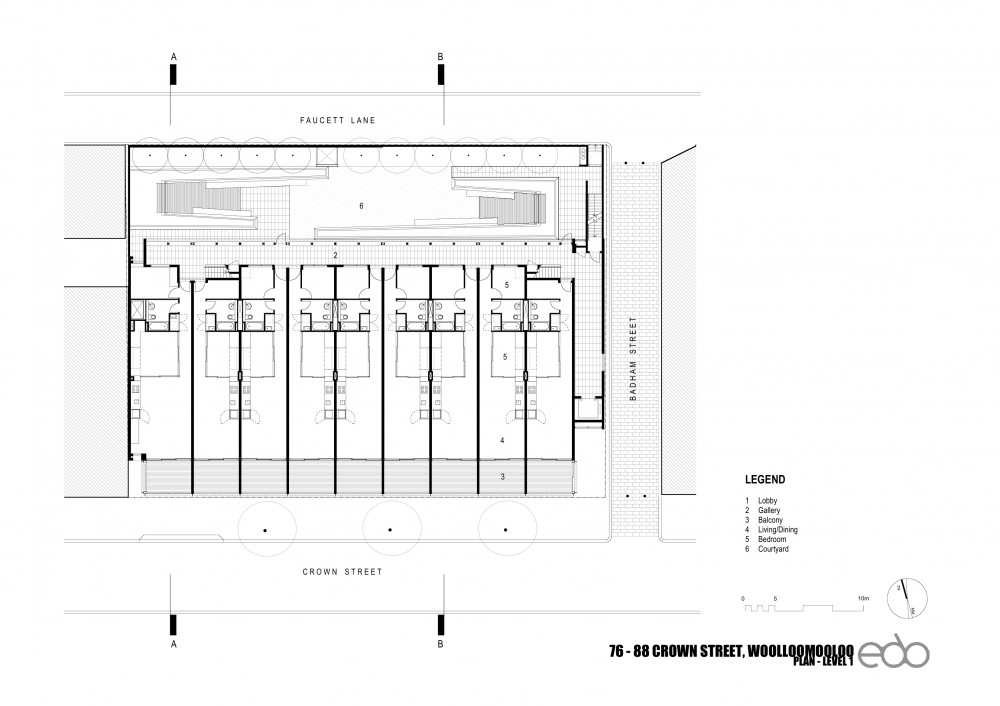
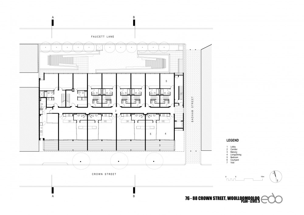
Este edificio diseñado por la oficina Stanisic Associates, intenta responder de manera sustentable a su entorno. En su lado este se dispuso una galería que funciona como disipadora de calor en verano, induciendo la ventilación cruzada a través de los departamentos sin necesidad de aire acondicionado o ventiladores.
Cortesía de Stanisic Associates
Esta ventilación es inducida a través de la baja temperatura ambiente de la galería, que es 15 grados más fresca que el lado opuesto del edificio. Esta galería también es un espacio social, ya que en ella se dispusieron las circulaciones principales y sus habitantes lo usan actualmente para reuniones.
Cortesía de Stanisic Associates
Los departamentos del nivel superior, que tienen entre dos y tres habitaciones, no tienen acceso directo a la galería. En su lugar, se llega a ellos a través de un pasillo revestido con paneles de mármol café y un techo metálico que refleja la luz. En cada uno de los departamentos se dispusieron rejillas de ventilación de cristal sobre sus puertas de entrada.
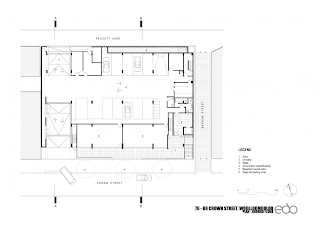
Planta 4
La calefacción y la refrigeración pasiva se ve reforzada en los interiores a través de pantallas móviles. Siguiendo el ejemplo de las pantallas shoji de deslizamiento de las casas japonesas, los muros de las habitaciones se pueden deslizar para cambiar la dinámica espacial del interior.
Solsticio de Verano
El espacio se hace fluido, adaptable y versátil; abierto a veces y cerrado en otras. Los balcones de tres metros de ancho en el lado oeste tienen cubiertas con vegetación típica de Australia y son una extensión de las áreas de estar.
http://www.plataformaarquitectura.cl/2011/03/18/edo-stanisic-associates/





















