
Courtesy of Lukasz Iwan
Designed by Lukasz Iwan, the educational center is devoted to the youth of Praga in Warsaw, Poland. The fundamental assumption of the project is to integrate the building with the adjacent elementary school to create a database to develop talent among young people. More images and architects’ description after the break.
Courtesy of Lukasz Iwan
The most challenging part of the design was blending the building into adjacent, late XIX century rental houses; buildings that are modest in detail, but manifesting the characteristics of inner-city tenements. According to historical research, the plot before the war was occupied by a portal of which only remains are present today. Lack of documentation forced the designer not to rebuild the gate, or make an imitation of it but to propose a new structure making note of the previous one.
Courtesy of Lukasz Iwan
Fragile environments of historical urban housing deserve special treatment when implementing new structures. Thus the decision of dividing the front elevation into two parts, bottom one: a fully transparent glass-wall with two construction pillars resembling the old portal and the top one: white, semi-transparent perforated panel wall, which acts different depending on the illumination. During day the front elevation seems like a blank, modest wall that works as a background for the surrounding architecture. On the other hand, at night the building becomes transparent, delicate with the welcome impact as it works as an invitation for the students.
Courtesy of Lukasz Iwan
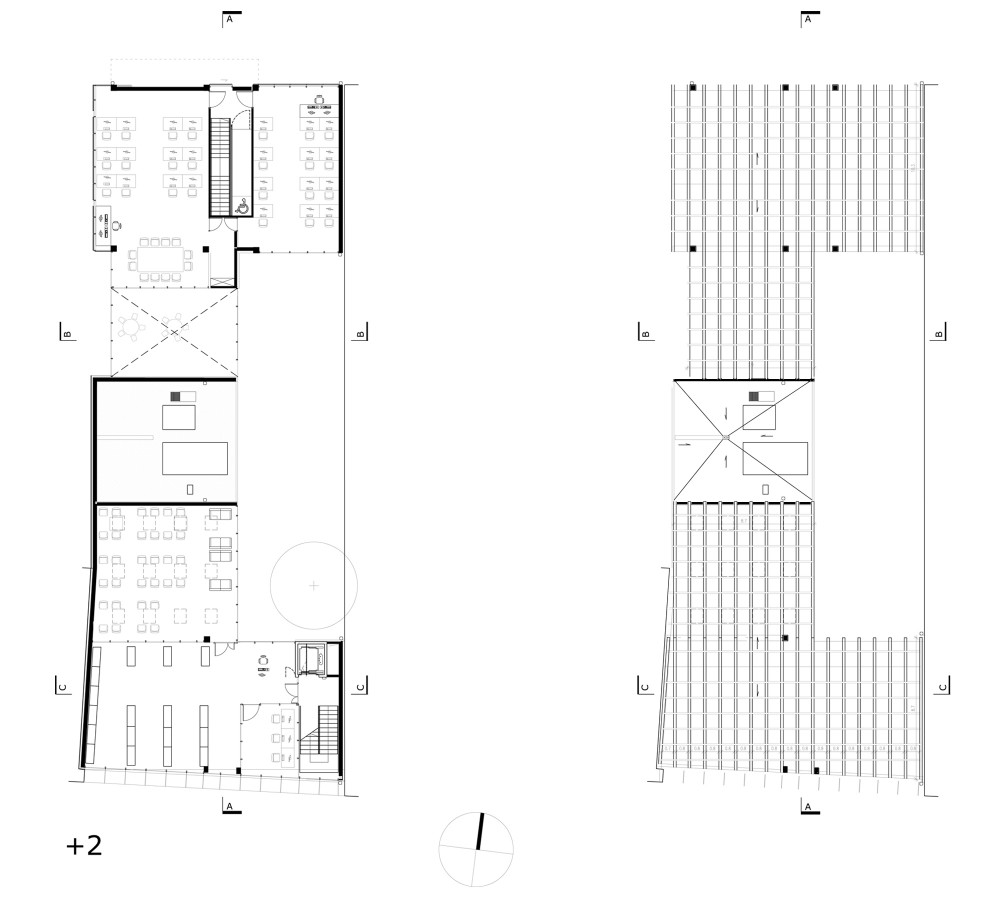
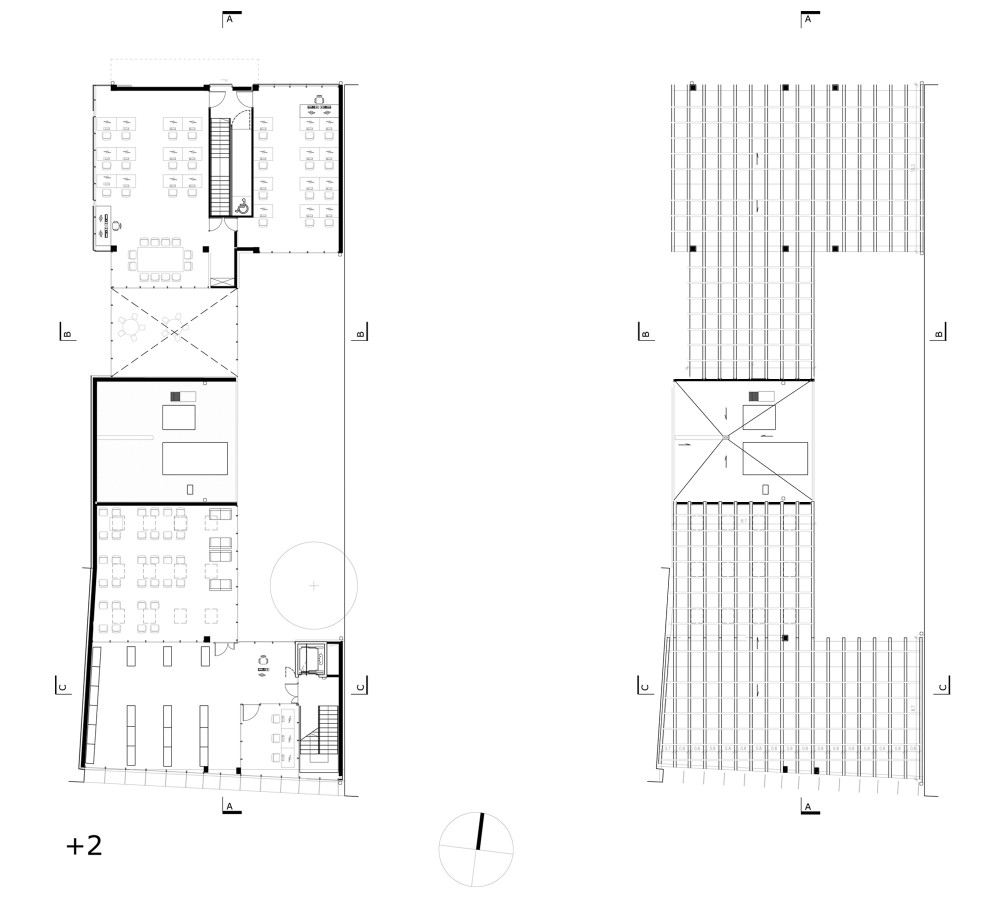
Divisions and proportions of the facade have been respected and well reflected in the architecture of the educational center. By dividing the building into three zones, with a slightly recessed center section, the building received similar proportions to a typical lower class tenement found in Praga. Gabled roofs with identical slopes to adjacent buildings and also general heights were an important elements to match the historic architecture. The architecture of the building reflects the surrounding buildings, repeats its principles using modern means, complementing the existing neighborhood while incorporating the best of modern technologies.
Courtesy of Lukasz Iwan
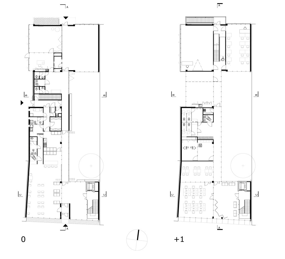
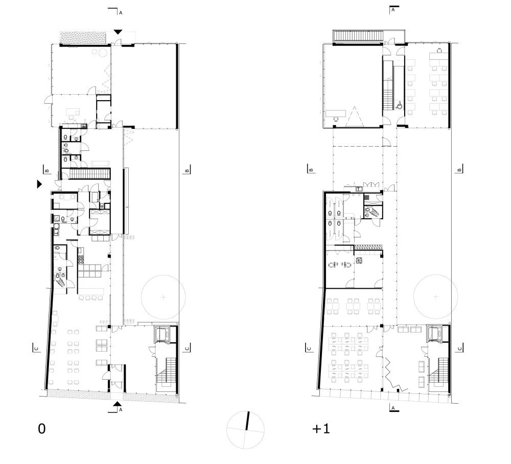
Educational Center ideologically consists of three parts. First part, facing the street of Zabkowska, is open to the public especially the young people, in which there is a cafe, media library and a studio for doing homework. Upstairs there is also a library with a reading room. The second part is on the premises of the school. Its function is education in the strict sense, in which will be held at a number of classes and courses. There is also multi-purpose hall which is used to organize meetings, presentations by students of animated films and other works in the field of computer graphics. It serves as an exhibition hall, demonstrating the artistic abilities of children who attend the Educational Center.
Architect: Lukasz Iwan
Location: Warsaw, Poland
Design Team: Lukasz Iwan + Kama Koska
Project Year: 2011


















