© Bruno Klomfar
The building is ideally sited in relation to the topography, with forecourts forming a separate square within the village fabric. This way fortified structures are reduced to a minimum and the road layout remains intact. The square is located between the fire station and Gasthaus Krone, forming a scenario which is typical for Sulzberg Thal.
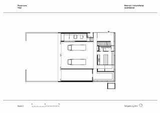
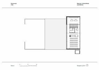
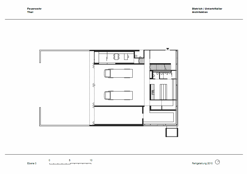
plan 01
The building features a clear separation into vehicle depot with control room and all other uses that are grouped according to room height and temperature into compact units. The radio and control room is slightly elevated, overlooking both the vehicle depot and the forecourt with the crew entrance. Parking for emergency operations is planned as gravel lawn lining the road.
The building has ground-level access from the main road, with the slightly projecting top floor marking and shielding the entrance area. The control area and locker rooms adjoin the entrance. The top floor with a classroom, village archives, an office and auxiliary rooms opens to the village boundary, thus signaling the public function of the building.
The vehicle depot is built as a solid structure, while the top floor is planned as a timber construction. The facade features silver-fir-cladding, which gives the building a uniform appearance as is typical for the village. The large continuous glazing structures the building, creating an air of lightness and transparency to all angles. External shading protects the interior from overheating. The tube-shaped tower is built as timber construction with glass on two sides, revealing a glimpse of the activities taking place at the fire station.










