This has a covered area of 6,512 m2 and occupies a site with a gentle incline in the South, with excellent solar exposure. Before the intervention there was a dense eucalyptus forest, in the centre of which was a triangular shaped clearing of vegetation. This clearing led to a suggestion for the architectonic proposal of the building, structured around a central triangular patio, a calm space secluded from the movement of the National Highway.
The proposal shows the grouping of three blocks (systems): the pedagogical block, formed by the administration, classrooms and special rooms to the West; the sports block, which includes the shower room/changing rooms, the pavilion and the open-air games field to the East; and, lastly, the social block, in a central position, formed by the dentist’s room, the multi-purpose and music room, the dining hall and buffet.
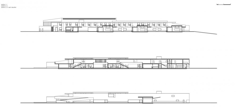
The general complex is articulated by the main atrium, located on the axis of the North façade. From here there is the option of following in the direction of the spaces of the sports or pedagogical systems. After entering the main atrium, to our right we have the entrance counter with the reception. From this point we can head towards the stationer’s/reprographics
room and resource centre grouping, which function as the dynamic spaces of this zone, and then follow on to the classrooms and/or special rooms.
The resource centre is the special classroom that is the closest to the main atrium, so facilitating the use of these installations by the diverse users. As is the case in the blocks of the classrooms, here there is also the possibility of expanding out onto the patio where the pupils can perform activities in the open-air. It may be said that here the social system constitutes a small «cultural centre», bearing in mind the characteristics of the spaces that comprise it and the accesses that limit it (the main atrium and the atrium of the pavilion), factors that end up by granting it great functional autonomy, meaning that its subsystems can be used by the population without interfering with the normal functioning of the specific pedagogical and sporting activities of the school. As in the Alvito school complex, the dining hall and the buffet can be extended like a terrace onto the central patio so that users can enjoy shows that can take place on the outdoor stage of the multi-purpose room.
The multi-purpose room is also characterised by a large opening to the South that relates the interior space with the best views of the surrounding landscape. At the North end there is another window, so allowing correct lighting and ventilation, at the same time that a system of blinds means that these areas can be closed off and blacked out. On the first floor, and in the same way as in the Arcos Complex, the administrative system and four more classrooms are grouped together, with an exit onto a playground connected with the central patio by a ramp and also connecting the classrooms with a covered recreational zone and another open-air one.
The sports system defines the eastern end of the complex with the pavilion forming the main subsystem. Grouped around this are the atrium of the pavilion, the long and narrow proportions of which running along the North-South axis relate it with the pavilion, the shower rooms/changing rooms, the multi-purpose room, the buffet and the dining hall. The games field area completes this system. The outdoor spaces include the playgrounds, the access area which comes before the main atrium, extending to the atrium of the pavilion, the central patio, bordered on the East by the social block, to the West by the pedagogical block and open to the South, with a ramp that connects it to the playground on level 1.






















