- Arquitectos: Arquitectos Asociados.lo
- Ubicación: Santiago, Santiago Metropolitan Region, Chile
- Arquitecto A Cargo: Eduardo Labra B., Diego Ortuzar F.
- Área: 60.0 sqm
- Año Proyecto: 2014
- Fotografías: Francisco Ibañez
El encargo que nos entregó la productora fue el de armar una galería a partir de 4 contenedores de 20 pies cada uno. La idea era instalar, durante 3 días, una exposición frente a algún edificio emblemático de la cuidad de Santiago de Chile.
Se nos entregaron las siguientes cuatro premisas, sobre las cuales trabajar:
1.- Módulo: 4 contenedores marítimos de 20 pies cada uno.
2.- Tiempo: Montable, duración limitada.
3.- Programa: Exposición.
4.- Lugar: Diálogo entre el nuevo artefacto y algún edificio emblemático de la cuidad.
4 módulos + tiempo montaje + exposición + diálogo con un emblema urbano = Nuevo Artefacto
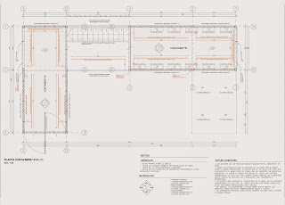
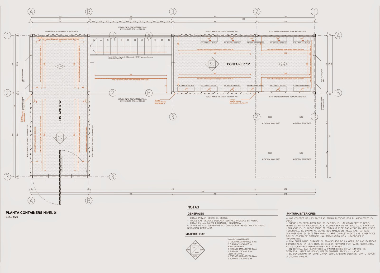
A partir de la idea del módulo completo, se definió un sistema de encuentro entre ellos, como una pieza de lego. La unidad consta de un volumen de 6,00 x 2,50 x 2,50 m. El ejercicio fue poner en relación estos 4 módulos para poder armarlo y desarmarlo en un tiempo limitado. Además, en su interior se expusieron una serie de elementos de la marca y se pudo ver como estos módulos, en su conjunto, se relacionaron con su contexto urbano
Se decidió marcar cuatro momentos de la exposición en cada contenedor. De esta manera, cada unidad, independiente, se logra comprender en su totalidad a través de su recorrido completo. En el primer nivel del artefacto se instalaron dos contenedores en forma de “L” y se separó medio módulo para apoyar otra “L”, en el sentido contrario, en un segundo nivel, y así dejar espacios entre los volúmenes construidos.
En los vacíos formados entre los contenedores se pudo observar la fachada del Museo de Arte Contemporáneo de Santiago, nuestro hermoso telón de fondo. La forma en cómo se apilaron los contenedores y la relación entre lo construido y los vacíos que se generaron, pusieron de manifiesto el vínculo de la galería con su entorno urbano. De esta manera, se incorporó el artefacto a su contexto, siendo un elemento espacial, con distintas profundidades, reconocible por su forma y sus vacíos, e incorporando el fondo real en tramos como respuesta a su volumetría.
El artefacto, estas cajas que se montaron simplemente unas sobre otras, llamaron al transeúnte a permearse entre ellas. Esta galería no tuvo otra pretensión que estar ahí de paso, solo un momento, para interrumpir la cotidianidad e invitar al recorrido.







