![]() |
| © Steve Mayes |
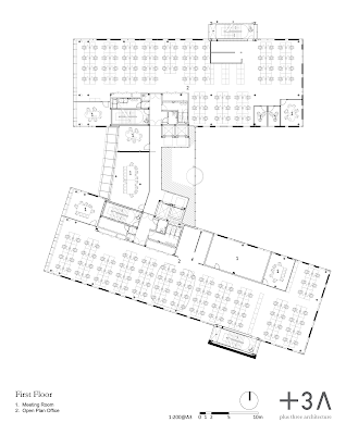
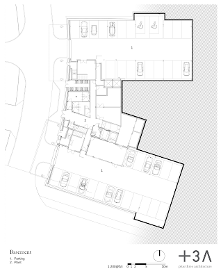
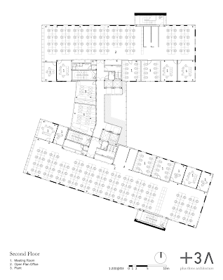
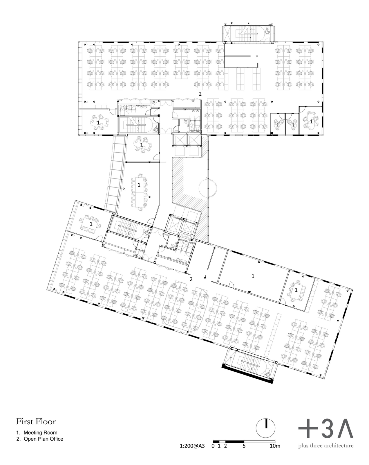
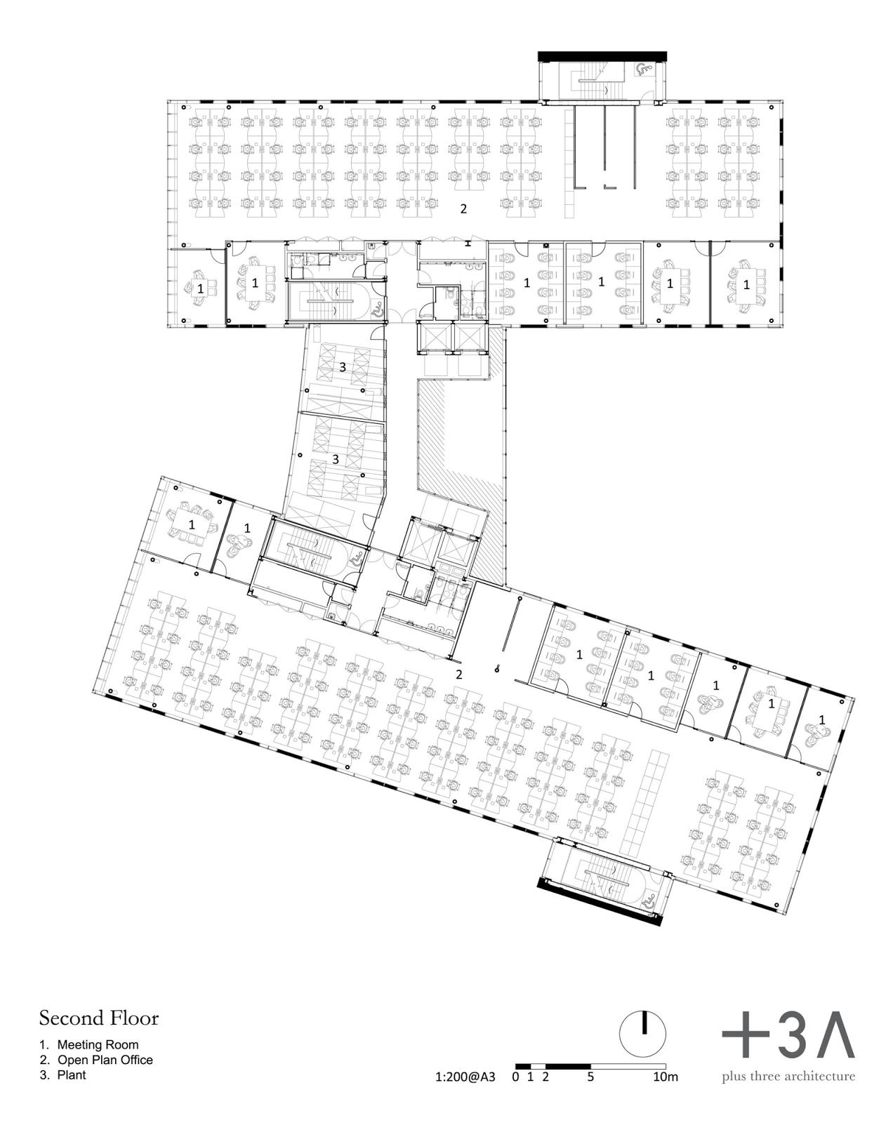
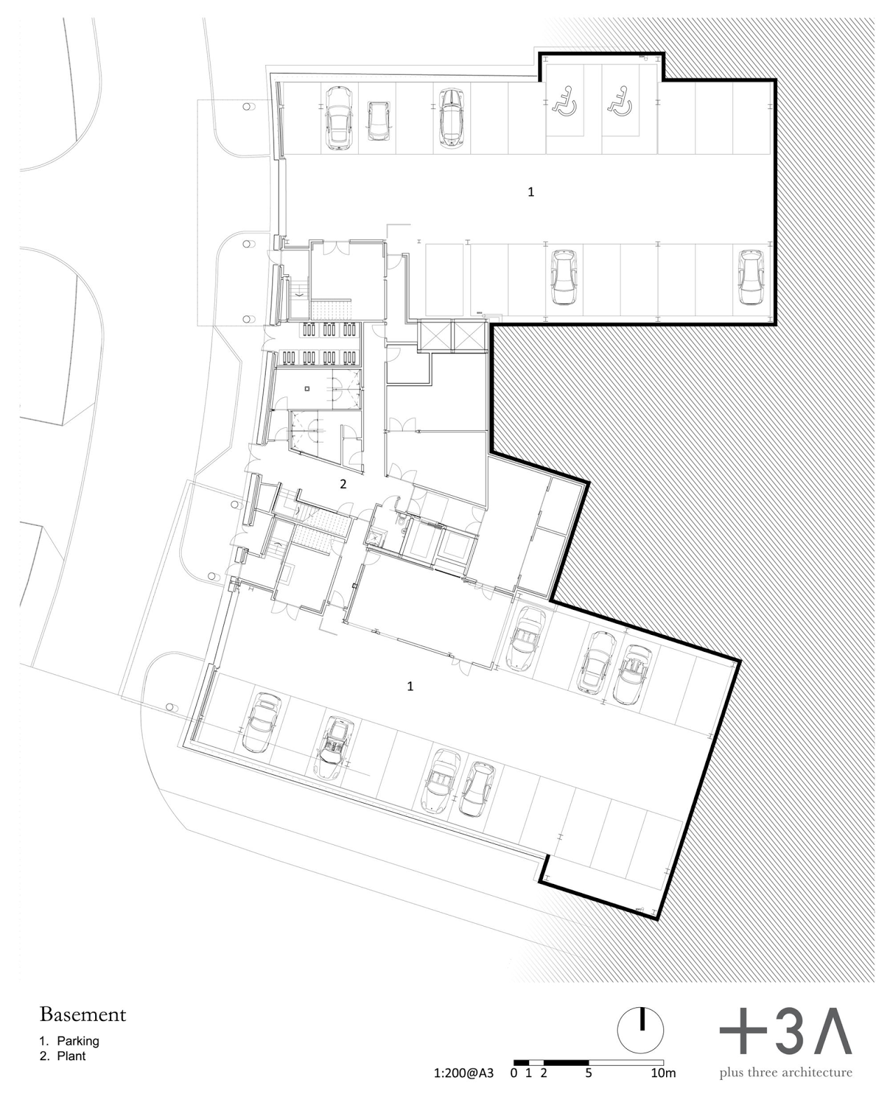
One Harton Quay is a Grade ‘A’ headquarters office building situated on the banks of the River Tyne in South Shields, Tyne and Wear. The 60,000sqft development and surrounding external landscaping occupy a site of 0.89 acres.
The brief, developed in collaboration with the Regional Development Agency, called for a bold, contemporary scheme that would kick-start the regeneration of the riverside and establish the quality benchmark for future developments.
The project forms part of a Strategic Partnership Agreement (SPA) between the Council and the British Telecom designed to provide much-needed local employment and kick-start the South Shields Riverside Regeneration project, a 35 hectare mixed-use masterplan on the banks of the River Tyne.
The building occupies a prominent position in one of the key, gateway approaches to the town centre and takes maximum advantage of its magnificent river frontage through a simple layout of two wings of office accommodation linked by a central atrium which contains vertical circulation and meeting spaces.
The £10.5m building is constructed using a steel frame with a composite curtain walling system incorporating a rich combination of natural sandstone and metal panels that reflect the notable civic buildings in the area and echo the ship building heritage of South Tyneside.
One Harton Quay meets both the corporate and practical needs of one of the UK’s most successful and progressive occupiers presenting an image reflecting BT’s global values of accessibility, inspiration and close co-operation whilst providing a comfortable, energy-efficient environment to stimulate and motivate the users of the building. The quality of space is underpinned by a simple, passive, environmental approach which has allowed the project to achieve a BREEAM ‘Excellent’ and EPC rating ‘B’.
The development reflects best practice in contemporary regeneration and highlights how the quality of architecture and place are reflected in the quality of life they support. The project will create long lasting value for South Shields and the wider region not just through the creation of new jobs and economic activity but also through the redevelopment of a brownfield site that has already acted as a catalyst for a new public park and BREEAM ‘Outstanding’ incubator office facility.
![]() |
| © Steve Mayes |
![]() |
| © Steve Mayes |
![]() |
| © Steve Mayes |
![]() |
| © Steve Mayes |
![]() |
| © Steve Mayes |
![]() |
| © Steve Mayes |
![]() |
| © Steve Mayes |
![]() |
| © Steve Mayes |
![]() |
| © Steve Mayes |
![]() |
| © Steve Mayes |
![]() |
| © Steve Mayes |
![]() |
| © Steve Mayes |
http://www.archdaily.com/265336/harton-staithes-plus-three-architecture/

























