02 de febrero de 2011.

© Stephan Lucas
Architects: David Elalouf Architecte with Guillaume Prognon, Fabrice Jactard, Kheang Tan, Damien Caron, Wen Kee H’su
Location: Paris, France
Client: Paris Habitat OPH
Project Area: 7,260 sqm
Budget: € 11,500,000
Project Year: 2005-2008
Photographs: Stephan Lucas, David Elalouf

Objectives
This is a pilot operation in Paris in terms of Environmental Quality and Sustainable Development. Particular attention was paid to ways to reduce consumption of all order: water, heating, electricity, by implementing a high performance envelope. Along the same lines, the energy choices made allow reducing expenses, and a quality residential which provides for a more ecological approach habitat in the city.

The measures implemented include, in particular:
•A highly efficient insulation of facades outside,
•Heating of hot water provided by solar panels on the roof,
•A dual flow that controls the air quality inside apartments,
•Recovery of rainwater from terraces for irrigation,
•Green roofs,
•On the ground floor, gardens in the ground promote absorption of rainwater. On the other hand,
•buildings are accessible at street level despite uneven topography of the site;
•A “Green Guide”, given to each inhabitant, helps the user in terms of sustainable development to initiate a participatory approach.


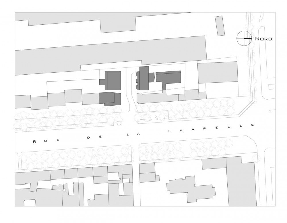
On the edge of the Rue de la Chapelle (historical axis of the Cardo of the Roman city), the 2 plots acquired from RFF (Reseau Ferré de France), are located on both sides of the Impasse du Gué.

The Impasse du Gué was enlarged to 18 meters (8 meters initially), initiating a new urban development in North Eastern Paris. It serves two lots; two buildings are located on the south grounds at the corner of Rue de la Chapelle, and two other buildings are located to the north.

The impasse is composed like a garden in the heart of the project, planted with magnolias and bamboo, it extends laterally with galleries on the ground floor of buildings.

Between the two buildings on the south side of the impasse, a colored fault lets in light from West. It echoes the one located North.

Principles of facades and materials, Orientations and seasons
The implementation of a “smart” and efficient envelope enables to reduce consumption of all kinds: heating, electricity…

Depending on their position relative to urban areas or cardinal orientation, the facades are covered with specific cladding materials: white polished concrete facing the street, fiber cement siding or aluminum cladding inside the plot.
•Smooth facades to North and East, with sets of reflectors to deflect the solar rays inside the apartments.
•Spacious balconies staggered to South
•Loggias to West, when the light is more horizontal

Everything is designed to reflect, absorb or reverberate sunlight depending on daylight hours. Gardens, balconies, loggias, and green roofs live and color according to the seasons.

Dwellings
The majority of dwellings are double-oriented and they have therefore natural cross ventilation. In the higher levels, they all have a clear view on the West of Paris from the Sacré-Coeur to La Défense. The units are designed to allow the necessary adjustments at all stages of life, from youth to old age: necessary adjustment in terms of automation to allow home support for seniors in the best possible conditions. 8 apartments are equipped for people with reduced mobility: home automation, automation of all access, lights, and shutters. The comfort of accommodation is also apprehended in all seasons: winter or summer comfort and the relation to the external environment is treated with care both in terms of natural lighting and views.

Our approach is both architectural and urban. It combines passive processes and active techniques. The philosophy of a project intimately connected with its urban, human, and social environment, primarily refers a relationship to time:

•Time as duration, durability of structures, materials selection,
•Time of the seasons and weather, the comfort of accommodation to be adapted to the seasonal cycles, to a comfortable winter or summer comfort.
•Time of day or night,
•Generation time: rethinking housing and evolutivity to address all ages.
These are the main motivations of our thinking and what guides our sustainable development approach…








http://www.archdaily.com/107991/he-housing-david-elalouf-architecte/