(2013/09/06)
Background
The plot of land is located in the western side of Mexico City in Bosques of the Lomas, looking to the northeast towards the street: Paseo of the Tulipanes being 17.99m long with the official number 16, It’s 875.00m² of surface and a zoning of H2/40%/350.
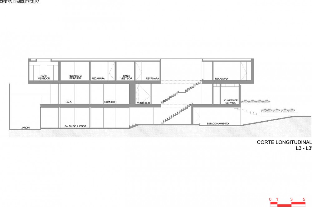
The project is compost of two rectangular prisms placed one over the other making an “L” shape. The house has three levels organized in the next way:
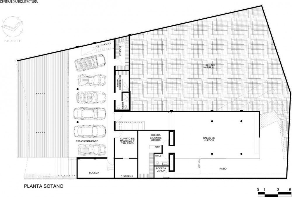
Basement Floor
This is the level where the parking is located, with space for six cars. It has a room for the driver with complete bathroom, a machine room and a water tank. There is also a games room with half a bathroom and a cellar.
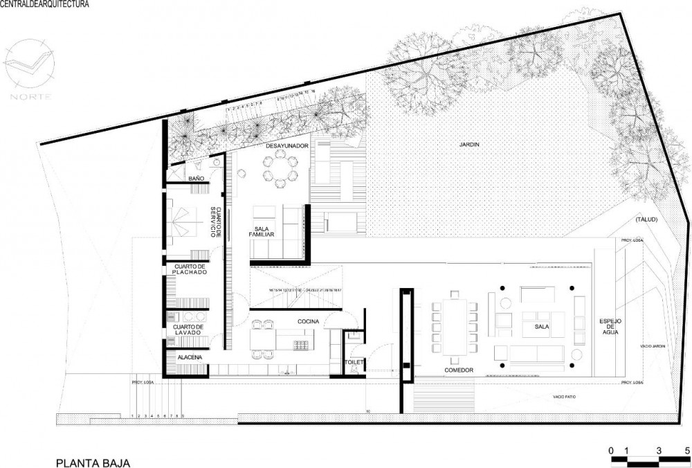
Ground Floor
In this level is where all the semipublic activities in the house take place. All the services are located here, a family room with T.V., kitchen, diner room, a living room and a small deck for a BBQ in the outside. This is the general floor of the project and its 1.60m above the street footstool.
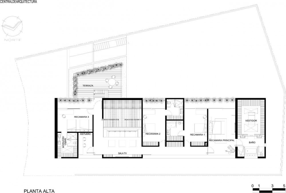
1st Level
Here the bedrooms are located, with a principal bedroom that has bathroom and an independent dresser. Two twin bedrooms with independent bathroom and dresser each and a forth bedroom also with bathroom and his own dresser. There is also a T.V. living room and a small study.
![]() |
| © Paul Czitrom |
![]() |
| © Paul Czitrom |
![]() |
| © Paul Czitrom |
![]() |
| © Paul Czitrom |
![]() |
| © Paul Czitrom |
![]() |
| © Paul Czitrom |
![]() |
| © Paul Czitrom |
![]() |
| © Paul Czitrom |
![]() |
| © Paul Czitrom |
![]() |
| © Paul Czitrom |
![]() |
| © Paul Czitrom |
http://www.archdaily.com/217437/house-la-punta-central-de-arquitectura/











