![]() |
| Juergen Eheim |
On the slopes of the hills of Settignano, Tuscany, Simone Micheli designed his own house, made of the landscape’s amazing view reflected on multiple mirrored surfaces.
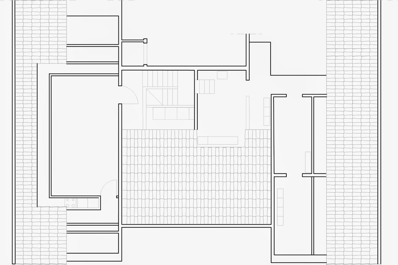
The project is the union of two small apartments with very different characteristics through a difficult demolition work to create a unique space. The result is a bright environment connecting all the rooms in a spacious open space.
Now the house is on three levels. The overall height was used in order to make intermediate floors: solids and voids, bedrooms and living room. Living room, dining room and kitchen are part of the same “area”: the idea is to mix these spaces to share actions and functions. This main round space is directly connected with a bath and the guest room.
The second floor develops on a wooden loft: illuminated by a large skylight, it hosts a smalll video room, the fitness area with bike and runner, a library container set to an asymmetric structure of steel and two deep storage areas shielded by blinds.
The third floor is the terrace which was designed as an outdoor saloon with barbecue.
![]() |
| Juergen Eheim |
![]() |
| Juergen Eheim |
![]() |
| Juergen Eheim |
![]() |
| Juergen Eheim |
![]() |
| Juergen Eheim |
![]() |
| Juergen Eheim |
![]() |
| Juergen Eheim |
![]() |
| Juergen Eheim |
![]() |
| Juergen Eheim |
![]() |
| Juergen Eheim |
![]() |
| Juergen Eheim |
![]() |
| Ground Floor Plan |
![]() |
| Third Floor Plan |
http://www.domusweb.it/en/news/2014/01/30/house_with_a_view.html













