25 de enero de 2011.

El edificio es colocado en el resto del terreno de forma envolvente para poder generar un jardín interior completamente íntimo.
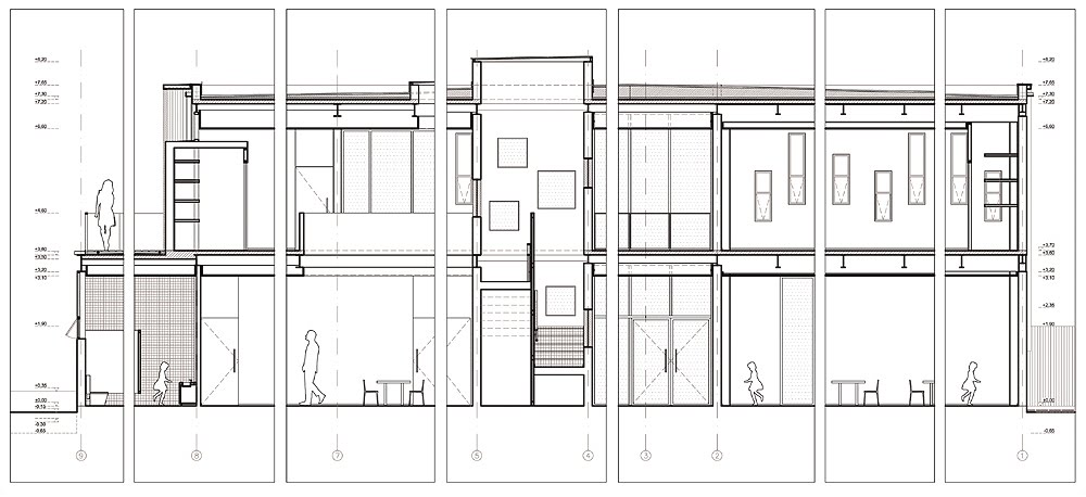
Lo más importante del proyecto era que el terreno en donde se construiría tenía una serie de árboles adultos muy antiguos ya que ese terreno se encuentra en una parte de la ciudad con apenas algunos años de desarrollo urbano, por lo cual se buscó posicionar estratégicamente el edificio para no tirar ninguno de estos árboles y generar un acceso al edificio con ellos para poder aislar el acceso del edificio con la calle generando un jardín de acceso y luego utilizarlo como un bloque en forma “L” abrazando el jardín interior y separando y delimitando el acceso vehicular del jardín y patio de juegos para los niños. El jardín es la parte central del proyecto y proyecta la sensación de estar en un pequeño bosque, el cual se filtra a través de grandes ventanales hacia el interior del edificio generando una relación constante entre actividades interiores y la naturaleza.

La ideología del Instituto va muy ligada con el respeto a la naturaleza y el medio ambiente, por lo que el diseño debía respetar estas premisas. Lo que se buscó entonces fue diseñar conforme a la vegetación ya existente para poder armonizar con el contexto, abriendo grandes huecos para tener contacto con los árboles y las áreas exteriores verdes desde casi cualquier espacio del edificio, el cual está diseñado para poder tener un futuro crecimiento y ampliar su capacidad de alumnos. El diseño de las aulas se basa en unas mismas dimensiones para poder variar el uso que se les quiera dar a estos espacios. También existen dos grandes espacios multi-funcionales que pueden ir adaptándose a actividades diversas según evolucione el programa de estudios del Instituto.
El programa contiene una crujía de servicios tanto en planta baja como en planta alta concentrando las instalaciones y liberando la mayor parte del espacio interior dándole flexibilidad de poder estar cambiando actividades en cualquiera de los dos niveles.
El corazón del edificio es el salón polivalente de doble altura, el cual tiene una relación directa con el jardín en las dos plantas. Desde el segundo piso se puede tener un control de todo el espacio del salón con la finalidad de tener contacto directo tanto de los directores del kinder como de los padres de los niños para supervisar las actividades que realicen los maestros con los niños.







Un punto importante en el proyecto era generar la inclusión de los usuarios en el espacio, por lo cual en diversas partes interiores del edificio se localizan ventanas y superficies transparentes que conectan visualmente al usuario con diversas actividades. En todas las aulas existe una ventana de piso a techo para poder tener una relación entre aula y aula y entre aula y exterior, generando seguridad en los niños y conocimiento de que hay otros salones con niños quizás con mayor o menor edad dentro del edificio, lo cual estimula la convivencia y el respeto hacia otros grupos, creando una sola comunidad. Un pasillo conecta todas las aulas con el espacio común del edificio. Al caminar por este pasillo se puede tener contacto visual con los alumnos, esto para beneficio tanto de la directora de la escuela y las maestras, como para los padres de familia, ya que pueden observar el desempeño de sus hijos durante sus actividades. En el salón polivalente, se genera un espacio de convivencia, donde se tiene la idea de poder invitar a los padres a que participen en distintas actividades que tengan que realizar sus hijos, así como hacer reuniones, juntas y almuerzos al estar directamente relacionado con la cocina.

Como principio de sustentabilidad se procuró dejar todos los árboles adultos ya que estos generan beneficios magníficos proporcionando sombra durante todo el día, generando una atmósfera fresca y con aire limpio.
El edificio está orientado de manera en que el jardín interior filtra la luz natural hacia los deferentes espacios.


ebido al tema presupuestario el proyecto está construido con materiales sencillos, económicos y altamente industrializados en la localidad, buscando promover tanto la mano de obra local (herrería, carpintería, e industrias de materiales) como la producción y utilización de materiales económicos. Se decidió hacer una estructura general de marcos de acero, losas colaborantes de deck metálico y concreto y bloques de concreto para los muros tapón.
Como acabado exterior se implementó una fachada ventilada, fabricada en base a láminas de acero onduladas y perforadas que rodean en su parte superior el edificio. Esta fachada se separa de los muros con una subestructura de montaje para generar movimiento de aire y ventilación entre el recubrimiento y el muro, así como proporcionar sombra a los muros y protección a la incidencia solar. Evitar el calentamiento de los muros exteriores es importante debido al clima extremoso de la ciudad de Monterrey.





Para la realización de este recubrimiento de la fachada se encontró una empresa local pequeña que tenía maquinaria con la cual se podían realizar perforaciones para generar piezas para industrias automotrices y de metal mecánica, al ver el potencial que tenían estos procesos en la fabricación de éstas piezas de uso en la Arquitectura decidimos realizar pruebas con su equipos para llegar a la fabricación de las láminas perforadas para el recubrimiento de la fachada, la cual se volvió un tema de identidad en la percepción del edificio mismo.
Fotos: Ana Cecilia Garza Villarreal
Proyecto: Instituto Docet
Arquitectos: stación-ARquitectura Arquitectos / www.stacion-arquitectura.com
Ubicación: Monterrey, N.L. México
Equipo de Proyecto: César Augusto Guerrero Rodríguez, Ana Cecilia Garza Villarreal, María Sevilla Gómez, Carlos Raúl Flores Leal.
Programa: Instituto de Educación Pre-escolar
Cliente: Instituto Docet – EducarUno
Año de proyecto: 2009
Fecha de construcción: 2010
Fotografías: Ana Cecilia Garza Villarreal
http://www.arkinetia.com/Articulos/art649.aspx