29 de octubre de 2010.

© Amit Geron
Architects: Schwartz Besnosoff Architects
Location: Kinneret College, Galilee, Israel
Initiator: Kinneret College on the Sea of Galilee
Donor: Sklare family foundation, Rashi foundation, Council for Higher Education
Team: Gaby Schwartz, Roy Talmon, Julia Grinkrug, Abraham Rotal
Management: Rashi Foundation, Arch. Shlomi Pariente
Supervision: M. Barnea, Engineering and building LTD
Construction: Yossi Shiran Construction engineering
Electricity: Dan Sharon engineering
Acoustics: S. Mashiah Audio and Acoustics LTD
Elevators: D.Barnea
Landscape: Miller Blum and Co Environmental Planning LTD
Air conditioning: Lanir Vishkin Engineers LTD
Safety Consultant: Naftali Ronen
Plumbing: Ada Bronfman Enginners and consultants LTD
Contractor: Y.M. Shoval 2000 Engineering and construction, Eng. Eran Druker
Project Year: 2010
Photographs: Amit Geron

The space of the the Robert and Yadelle Sklare Family library enables optimal transfer of information. On the one hand, it provides the opportunity to spend time in an atmosphere that encourages concentration and study. On the other hand, the library space enables interaction with other people who are there for the same reason, thus constituting a social space in every sense. Because social and cultural activity plays a critical role in the functioning of the library, we made this a central component in our project proposal.

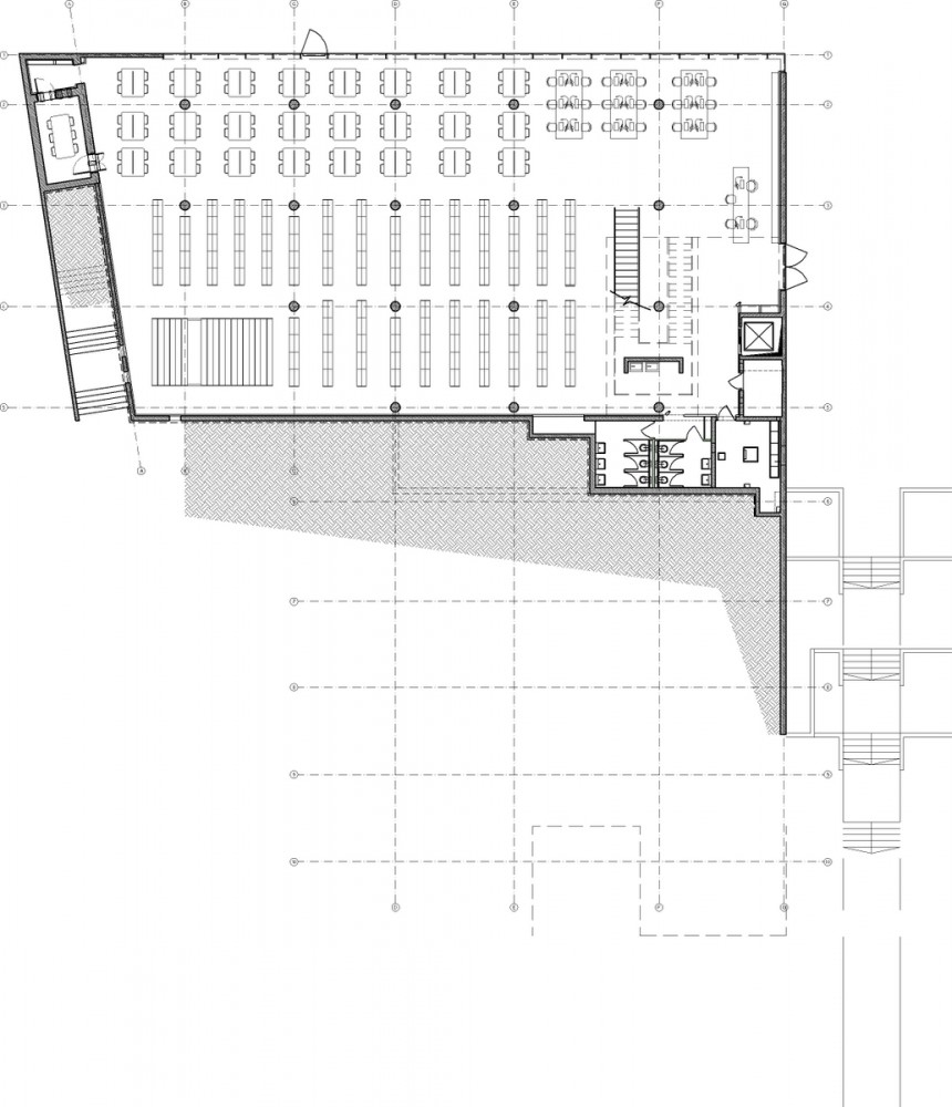
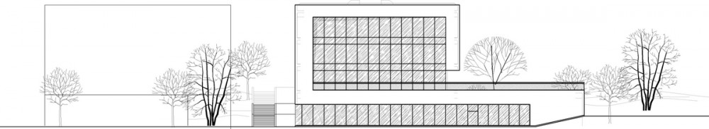
The concept of landscape is central to our planning work. Seeking a way to incorporate the concept of landscape in the building, we created an environment, and not a building. We needed to meet the requirements of the general plan, but also help create a place that utilizes its surroundings, integrates them within it and enables them to pass through it.

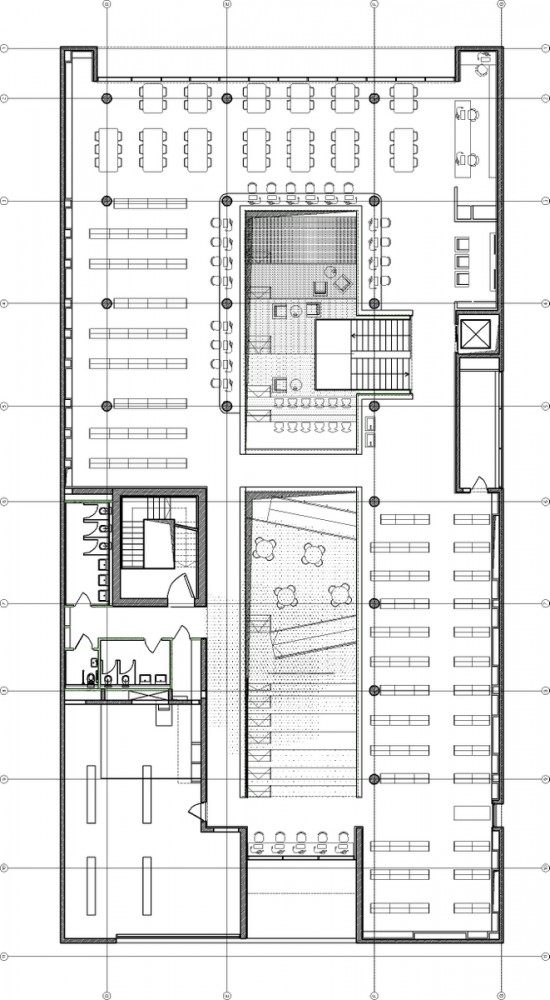
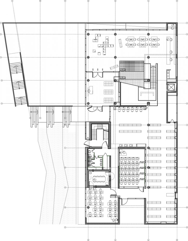
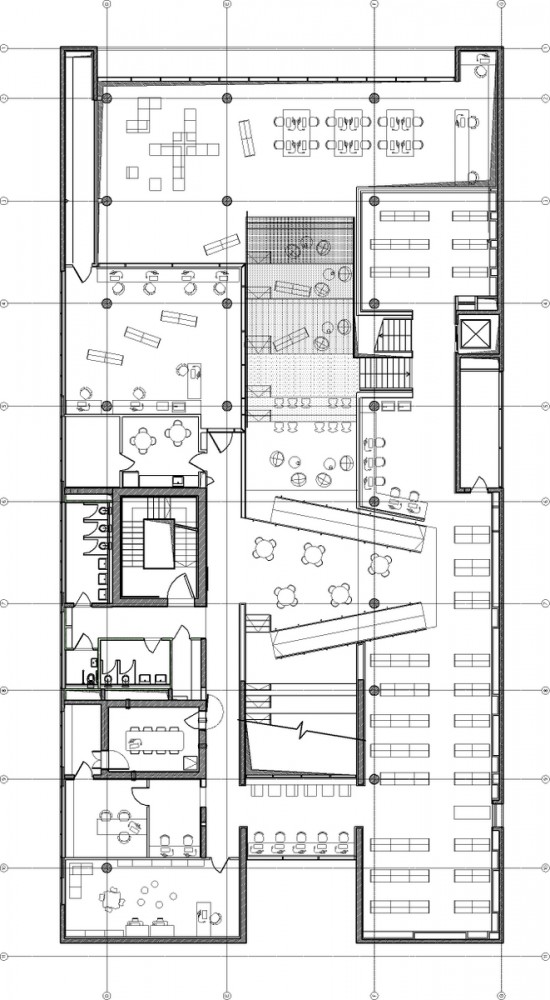
The visit to the project site on the day of the meeting included a short tour among the temporary structures and the hill, with its spectacular view. We believed that the best way to instill this spirit of “place” in the building is by integrating the idea of a walk in the proposal. The building arises from the ground like a topographic fold, and passing through its wings is a walk through nature in every sense. From the central public element that continues from the outdoor courtyard, through the fold that begins in the entrance lobby, the interior space is created and designed as a internal landscape. The center of the building is designed like a landscape element, and the movement within it is determined and organized in relation to the landscape. All these enable the organization, inside and outdoors, of special events for the entire campus (folk dancing, a student fair in the outer courtyard, films at the top of the inner ramp and more). The central area, the fold that climbs up, constitutes the hub of activity and the heart of the library. The space is built as a ramp (thus also providing access for disabled people), with informal sitting areas of varying sizes within it. It also serves as an additional means of access to the book storerooms.

We sought a way to create a diverse, inspiring, dynamic space for situations of many types – from formal seating facing the pastoral landscape (a setting for maximum concentration) and group seating in the seminar rooms, studying at a computer and facing the landscape, to a comfortable environment for studying or sitting informally in groups. We wanted to organize the different situations so that they support one another, together creating a student experience on campus. The resulting was the creation of a ground level with an uninterrupted panoramic view of the magical Sea of Galilee. This level is connected to the entrance level by stairs and an elevator, but otherwise it has no spatial connection to the library space. This is the place that offers the best conditions for studying and concentrating.
The entrance lobby, at the mezzanine level, is connected to the upper level in the central area by means of the fold; it is a system of terraces that create a sort of mini public space. An inner climbing street enables varied types of seating in this public space. This is the heart of the library, the center of social interaction, and it is directly connected to the book storage areas. We believe that this space will constitute a quality, inviting place for the students and that they will take advantage of its different spaces whenever they have free time. The area is created by combining spaces that function as informal sitting areas, the entrance lobby and the display of periodicals. It does not involve the addition of space beyond that defined in the general plan. We found a suitable location for a multimedia space under the fold, where a graduated space can serve for showing films. The planning concept regarding book storage allows broad flexibility. We propose four storage areas, however, because the space is open, and accessible from the central space it is perceived as a single homogenous unit. In addition, the compact method of storage enables use of these areas for social interaction.









http://www.archdaily.com/84689/kinneret-college-on-the-sea-of-galilee-schwartz-besnosoff-architects/#more-84689
