25 Febrero 2012

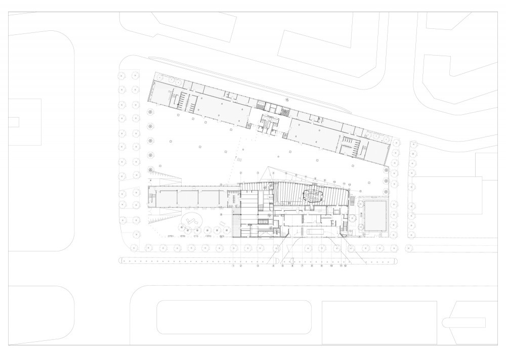
Completed in September 2011, the reconstruction and expansion of the Lamoricière School, designed by archi5 upon winning a competition for their concept, is a landmark in the neighborhood, as well as a meeting and exchange place open to its environment. The building is subtly inserted in the existing surroundings while affirming its public facility characteristics. The decomposition of the volume allows it to include the new equipment in the extension of the kindergarten template and to respect the scale of neighboring buildings.
The proposed design of this reconstruction and expansion is based on a careful reading of background characteristics. The school group suffered many failures due to spatial overlapping of functions. This was leading to confusion between flows and a lack of visibility of the kindergarten and its access from the Boulevard Carnot.

© Fabien Terreaux & Thomas Jorion
The position of urban and ambition of the program led us to propose a comprehensive strategy with two complementary goals:
– A volumetric composition that provides independent reading programs and their access
– Cohesion of the school group as separate entities with a new urban facade on the Boulevard Carnot.

© Fabien Terreaux & Thomas Jorion
The project is part of a process of optimizing the overall cost and the inclusion of environmental criteria and sustainable development. It was constructed according to the goals of the climate plan of the City of Paris, 50 kWh/m3 / year. The reflections we have conducted during studies and works have followed several lines:
– Program Technical Requirements
– Relevance to the architectural design of the project
– Durability and cost optimization, operation, maintenance and maintenance materials
– Ease of use
– Optimization of operating costs and maintenance in terms of investment costs
– Optimization of maintenance of technical systems implementation








