11 de octubre de 2011.
Architects: Aalto University Wood Program
Location: Espoo, Finland
Project Year: 2011
Photographs: Courtesy of Aalto University Wood Program
Student Design Team: Signe Aarset Loe (Norway), Miguel Castillo Lopez (Spain), Aleksandar Cherepnalkoski (Macedonia), Megan Groth (USA), Vladimir Ilic (Serbia), Rebecca Littman-Smith (USA), Marta Marcos Marono (Spain), Maria Mor Pera (Spain), Chaeham Oh (Korea), Hugo Plagnol (France), Bernardo Richter (Brazil), Einari Sutinen (Finland), Dmitry Troyanovsky (Australia)
Structural Designers: Ulla Hakulinen (Finland), Kai Nordberg (Finland)
Wood Engineers: Kristoffer Gull (Finland), Annukka Hirsi (Finland), Emil Jansson (Finland), Samuli Kimpimäki (Finland), Olli Koski (Finland), Pasi Salminen (Finland), Arefi Shaghajevg (Finland), Hanna-Maija Tikka (Finland), Tiina Varetsalo (Finland)
Professors and Tutors (Architects): Pekka Heikkinen, Matti Kuittinen, Pentti Raiski, Cristina Santamaria Nogueira
Engineer: Hannu Hirsi
Architectural Student Tutors: Ransu Helenius, Mikko Merz
The number of refugees worldwide is expected to grow to over a billion by 2050. The Liina transitional shelter is a temporary building to be used in cold climates during crisis situations anywhere around the world. Designed and built entirely by the students of the Wood Program at Aalto University, Liina is made of mostly Finnish wood and wood-based materials, making it not only an elegant and dignified but also a sustainable solution to this global problem.

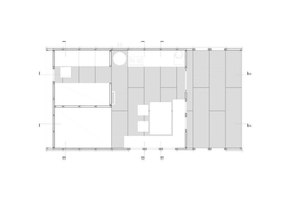
As a transitional shelter it is intended to be a secondary response after a crisis. The shelter can be assembled by two adults in six hours with only common tools and a cartoon diagram. It is designed to house a family of five for up to five years during the post-disaster reconstruction phase and then can be upgraded, relocated, resold or recycled. The interior area is 18 sqm, designed to comply with the accepted standard of 3.5 sqm per inhabitant in refugee housing. The interior contains two semi-private sleeping spaces, a galley kitchen and dual purpose eating/living/workspace. A loft over the sleeping areas can be used as additional sleeping area and storage. There is an additional seven square meters of covered exterior space meant to serve multiple functions for the inhabitants during their occupancy period.

The Liina concept is based on a series of prefabricated sandwich panels that can be easily transported and assembled, and can be flatpacked into a small space. Each panel is 600 mm wide (half the dimension of a piece of plywood) to cut down on waste and to be easily carried by one adult. Six panels are joined together with simple, repeated wooden-dowelled joints to form a frame and tightened using nylon straps (‘liina’ in Finnish), like those used for the transportation of cargo. The strap creates air-tight joints without any metal fasteners or the use of electric-powered tools on-site. The frame is then tilted up and stacked one-by-one with the other frames and tied together with 3 straps. Finally, the building is protected from water and UV damage with a tent-like canopy. The modularity of the design makes it possible to add or subtract frames in order to increase or decrease the size of the shelter to accommodate the needs of the inhabitants. The plan of the shelter was designed to provide varying degrees of privacy and spaces for daytime and nighttime activities.

Other parameters for the design were the size and weight of the panels, ease of assembly and reasonably good heat insulation. The result is a low-tech solution of plywood and LVL (laminated veneer lumber) panels with wood-fiber insulation. Following an ideas competition last autumn, thirteen Wood Program students from ten countries developed the shelter by constructing full-size models of the building and carrying out structural tests, such as earthquake and wind-tunnel tests, in conjunction with a team of engineering students.
Liina is designed for the prevailing climate in the Ararat region of Turkey, chosen for its continental climate and history of refugees and displaced people due to disasters such as earthquakes, drought, and political turmoil. However Liina’s design can easily be adapted to a variety of cultural needs and environmental situations. A prototype of the shelter was assembled in Helsinki’s Railway Square during the World Village Festival in May 2011.

http://www.archdaily.com/174909/liina-transitional-shelter-aalto-university-wood-program/