![]() |
| © Fernando Javier Urquijo |
Descripción de los arquitectos. El Carreau du Temple, un mercado histórico de acero y vidrio de 1868, que se encuentra en el distrito de Marais de París, fue reabierto por el alcalde de París el 20 de febrero de 2014. Este edificio, con su arquitectura característica transparente, es una de las pocas estructuras supervivientes de la arquitectura tradicional de marcos metálicos del siglo XIX en París. Fue incluido en la lista del patrimonio de Francia en 1982, cinco años después de la demolición de las Halles de París y sus famosos pabellones Baltard – una pérdida que aún se lamenta amargamente en la actualidad.
En 2001, se pidió a los residentes locales lo que pensaban que debería convertirse en el Carreau, y fue su voto lo que determinó su futura función de albergar las instalaciones culturales y deportivas. El jurado del concurso convocó en 2007 cinco estudios de arquitectura, adjudicándole el proyecto a la oficina studioMilou architecture, encabezada por su arquitecto fundador, Jean François Milou, y con sucursales en París y Singapur.
En su diseño, la arquitectura studioMilou buscó ‘idealizar’ este monumento que aparece haciendo hincapié en la elegancia de su estructura y por lo que es tan transparente como es posible, de tal manera que los transeúntes podrán apreciar la forma poética de su superestructura metálica de un sólo vistazo. Con el fin de hacerlo, studioMilou reemplazó el muro de mampostería que había cerrado previamente el edificio, con cristal, acero y madera de uno, manteniendo la forma de la construcción original, pero creando permeabilidad visual que revela el espectacular espacio interior.
El trabajo fue realizado de tal modo de entregarle a las fachadas exactamente el ancho correcto para su refuerzo con nuevos pilares de acero, para aislarlos del resto del edificio, e insertar en ellos las puertas que se abren hacia el exterior con una extensión de menos de 20 cm sobre el exterior como lo exige el reglamento. Esto ha significado que las fachadas del Carreau no han necesitado un espesor agregado para contener dobles juegos de puertas o salidas de emergencia.
En la parte superior del edificio, el uso de marcos de acero (de ancho limitado), como escenario de paneles de doble acristalamiento, ha permitido que la relación original entre los espacios vacíos y llenos se conserve, mientras que al mismo tiempo cumpla con las limitaciones acústicas y térmicas actuales requeridas para este tipo de instalaciones. Se ha utilizado roble de color claro a lo largo de las terminaciones interiores, una elección hecha en la recomendación de las autoridades, con el fin de ver las intervenciones arquitectónicas contemporáneas en el edificio claramente marcadas como tales.
Dentro de las salas, se instaló una segunda piel de paneles de roble a 45 cm de distancia de los arcos metálicos y pilares exteriores. Esto permite que el edificio cumpla con todas las regulaciones térmicas y acústicas pertinentes. El acristalamiento original de los techos se ha sustituido completamente por nuevos elementos de doble acristalamiento con marcos de acero, limitados en ancho. El aspecto general del zinc del revestimiento se ha conservado, lo que permite que el carácter parisino de los techos de las tres salas y la totalidad de la estructura interior de los pabellones se conserven.
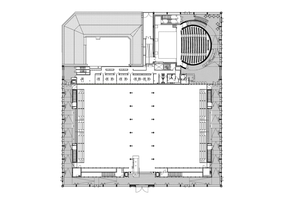
El edificio original, de alrededor de 3.500m2, ha sido ampliado a través de la adición de dos niveles más bajos para alcanzar una superficie bruta total de 9.045m2. El proyecto de studioMilou propuso la construcción de una planta baja que pudiera revelar la belleza que ofrece el mercado original y dos niveles subterráneos, uno con un altillo para las instalaciones técnicas del edificio, y un nivel más bajo de techo alto con nuevas instalaciones para el deporte, la danza , y un estudio de sonido y grabación. Hay un auditorio para 250 personas, en el nivel de planta baja, utilizando un diseño redondeado que hace hincapié en su carácter de adición contemporánea.
![]() |
| © Fernando Javier Urquijo |
![]() |
| © Fernando Javier Urquijo |
![]() |
| © Fernando Javier Urquijo |
![]() |
| © Fernando Javier Urquijo |
![]() |
| © Fernando Javier Urquijo |
![]() |
| © Fernando Javier Urquijo |
![]() |
| © Fernando Javier Urquijo |
![]() |
| © Fernando Javier Urquijo |
![]() |
| © Fernando Javier Urquijo |
![]() |
| © Fernando Javier Urquijo |
![]() |
| © Fernando Javier Urquijo |
![]() |
| © Fernando Javier Urquijo |
![]() |
| © Fernando Javier Urquijo |
![]() |
| Planta Sitio |
![]() |
| Planta |
![]() |
| Elevación 1 |
![]() |
| Elevación 2 |
![]() |
| Sección 1 |
![]() |
| Sección 2 |
http://www.plataformaarquitectura.cl/2014/03/12/mercado-carreau-du-temple-studiomilou-architecture/



















