© Luís Ferreira Alves
The project is implanted on a ground with a total area of 1364 m2 and takes place in the old industrial zone of Porto, which is now being regenerated, by using the land for activities related to enterprises, replacing the previous industries. The land-use planning classifies the ground as a zone of “ … progressive settlement of enterprises representative of different business areas and those that develop investigation and innovation in order to promote the city competitiveness and its role in the region, as well as complementary uses such as dwelling, services, commerce, equipments and hotels, tourist enterprises and restaurants”. Making part of this process of regeneration, the building is implanted perpendicularly to Manuel Pinto de Azevedo (MPA) Street.
© Luís Ferreira Alves
The project respects the planning, as it is inserted in a lot object of division. The southwest façade defines a new square opened to Manuel Pinto de Azevedo Street. It looks for dialogue with this public space, designing a front marked by the relation of the entrances and shops with this “square”. This idea is reinforced by the fact the building closes itself in the small front of the street. Formally restrained, the built volume wants to show two moments: the contact with the ground, very clear (transparent), in glass, where all opaque plans are covered with steel plates; and the relation with the more opaque horizon line, where the alternation of the openings introduces tension in the drawing of the elevations.
© Luís Ferreira Alves
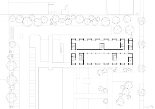
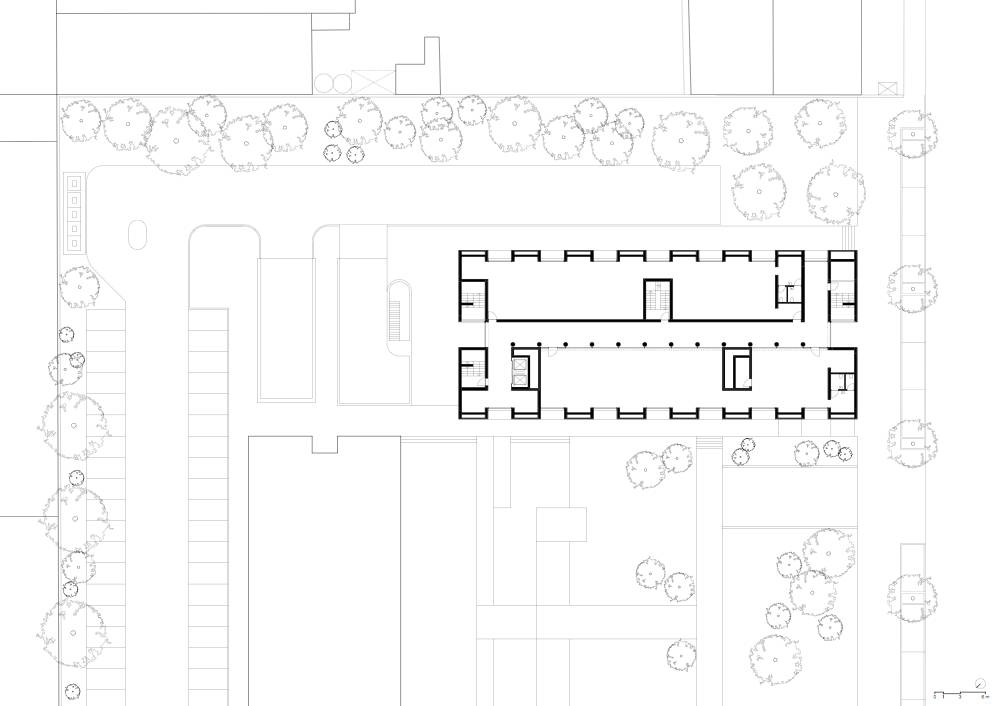
The building, of mixed use, shelters a school and offices. In order to allow autonomy of uses, two columns of vertical communications serve each of the programs independently. On the ground floor, a “front” of commerce turns to a broad square in the northwest. In this front, two shops with public access by the exterior of the building – a cafeteria and a stationery centre – work associated with the school program.
The school has a door on the southwest façade, near Manuel Pinto de Azevedo Street. This program takes place on five floors: ground floor, first floor, second floor, third floor and half of the fourth floor. On the ground floor there is the reception and a foyer supporting the auditorium with 200 seats. The entrance of the school is through a space with triple ceiling height, marked by a staircase that besides the function of a strolling way assumes a sculpture character. The first floor is constituted by the school office, the library and six classrooms.
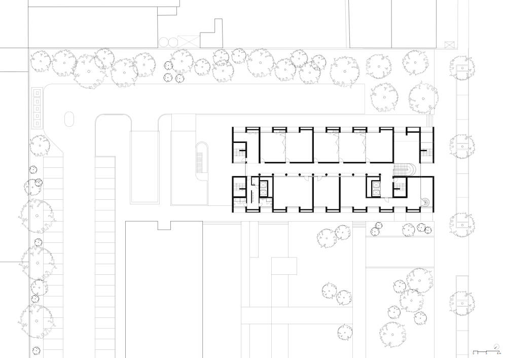
3rd floor plan
The next two floors have seven classrooms each, the library – which is organized in two floors – occupies part of the second floor and the staff room is located on the third floor. On the fourth floor, there are two classrooms and the Head Office. The interior corridor, naturally illuminated, is broad enough to allow other uses besides distribution. Flexibility in the use of the classrooms was a main concern in the whole process of conceptualization. Therefore is presented a solution that makes possible, either on the first floor or on the second or the third floors, create a unique space by joining four or five classrooms from the southeast wing. The northeast entrance will allow the distribution to the offices that occupy half of the fourth floor and the whole fifth and sixth floors.

































