16 enero 2012
Garrigues, la firma de abogados con más tradición y prestigio en España, ha promovido a lo largo de 2011 el traslado de su antigua sede corporativa en Sevilla, a un nuevo emplazamiento más emblemático dentro de la ciudad con el objeto de ampliar y renovar la imagen de sus instalaciones.
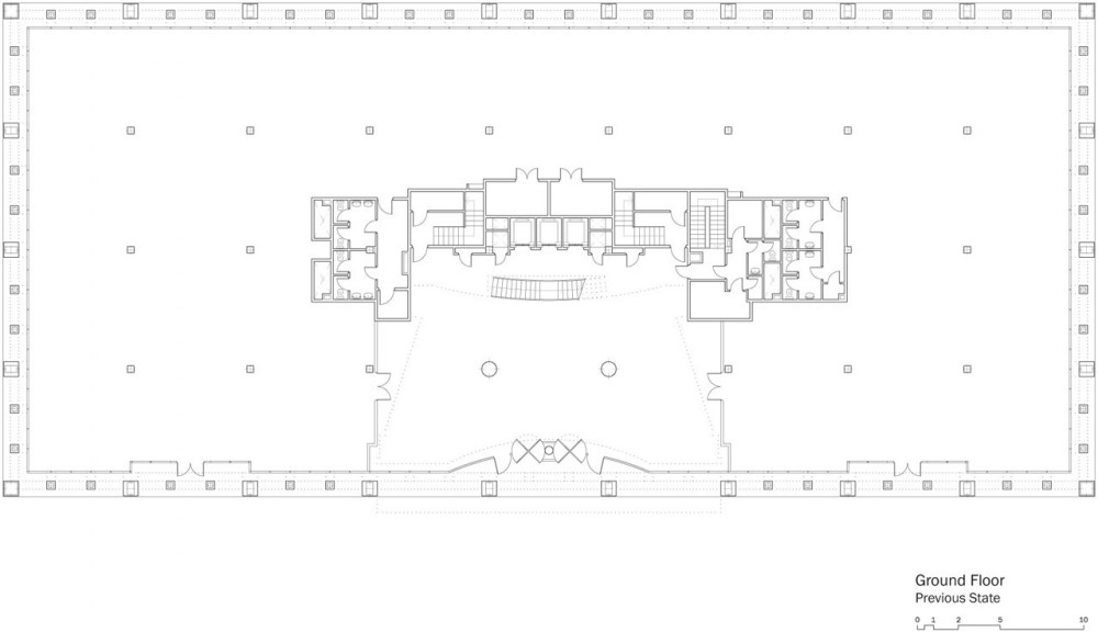
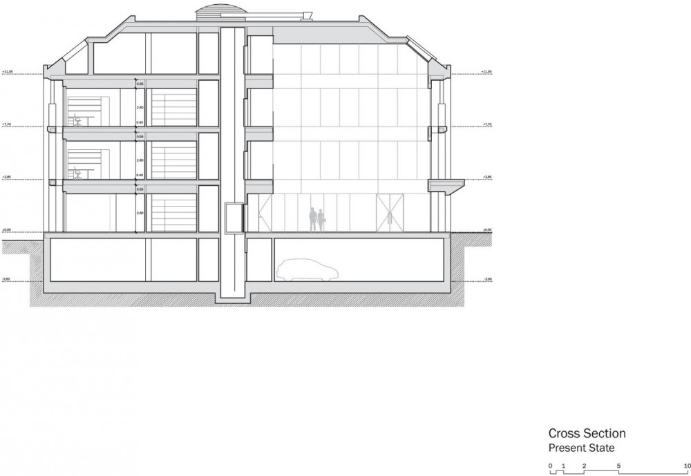
El edificio, situado en uno de los accesos principales de la ciudad, se encuentra en la avenida de la Palmera, arteria principal de la ciudad. Formando parte de un complejo de oficinas diseñado en la década de los 80, y con una superficie aproximada de 6.000 m2 de sobre rasante y cuatro plantas altura, contaba con unos accesos, espacios públicos, distribución interior e imagen inadecuadas para las necesidades actuales de la firma en cuanto a funcionalidad y distribución del espacio, requiriendo de un nuevo acondicionamiento e incorporación de las últimas tecnologías constructivas e imagen acorde al perfil profesionalizado del despacho.

De esta forma surge el encargo a EDDEA del proyecto y obra, con limitación de plazo (Fast Track), incluyendo una auditoría previa del edificio a rehabilitar, redacción de proyecto, construcción, con equipamiento y mobiliario incluido, y dirección integrada de proyecto hasta la total terminación, legalización, puesta en funcionamiento del edificio y posterior gestión del mantenimiento.

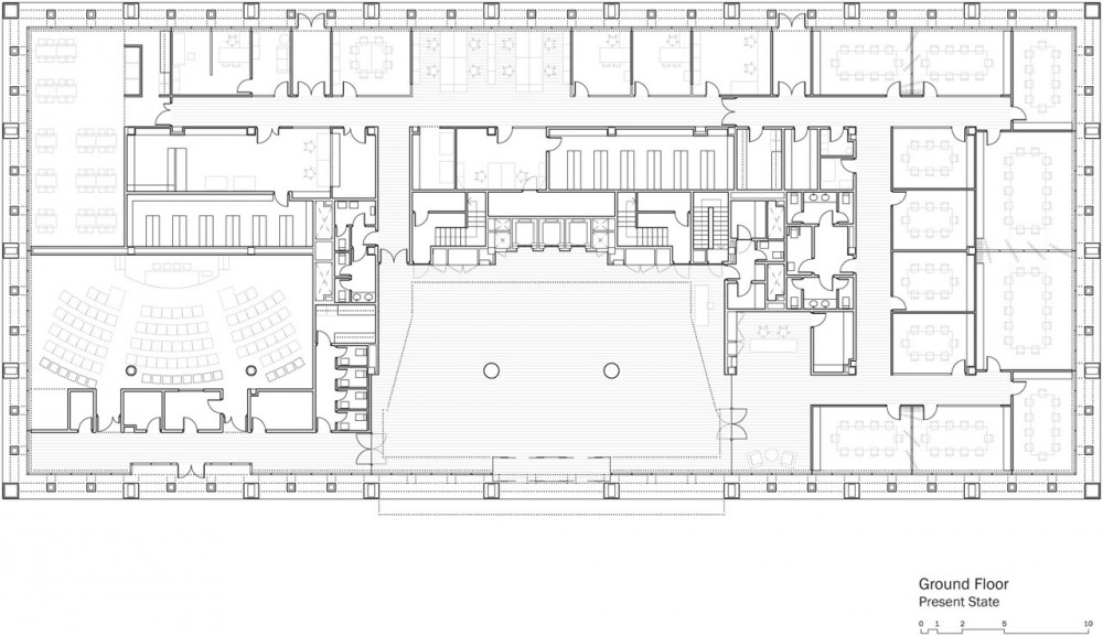
En cuanto a las decisiones de diseño, al tratarse de un edificio de oficinas con una estructura muy presente tanto en el interior como en las fachadas exteriores, el mayor esfuerzo de la intervención ha consistido en la eliminación de aquellos elementos que impedían una lectura clara, tanto de los accesos como de las comunicaciones o los espacios. En este sentido, la intervención sobre el atrio de entrada se convierte en una de las operaciones más importantes de la rehabilitación, cediendo todo el protagonismo al espacio, a la luz y a la unificación de colores y materiales, para que a través de su escala se identificara la representatividad de la firma.

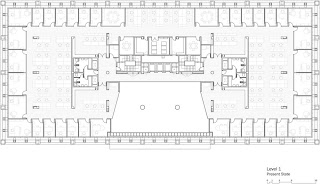
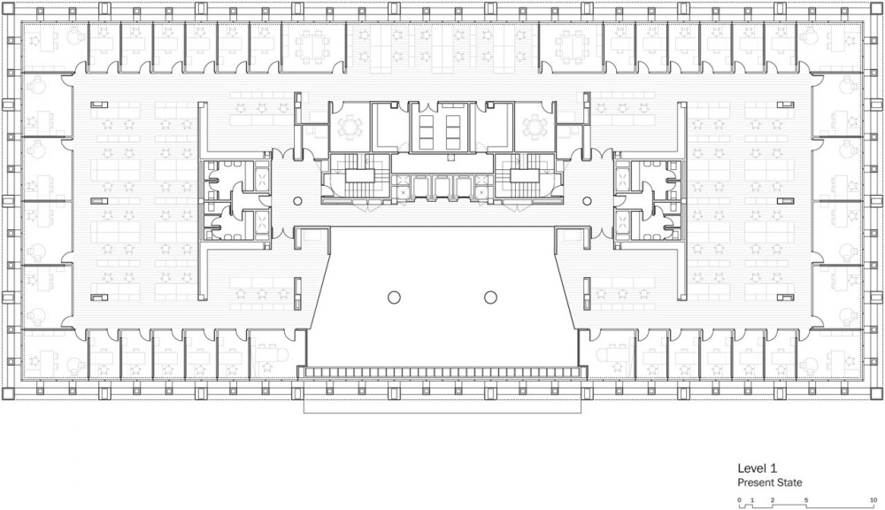
Por último, el programa se distribuyó priorizando el uso público de la planta de acceso, dedicando la mayor parte de su espacio a la recepción, atención de clientes, salas de reunión y espacios de actos y presentaciones. En el resto de plantas se concentran los espacios de trabajo, disponiendo los despachos cerrados perimetralmente a lo largo de las fachadas y dejando los espacios centrales para espacios de trabajo abierto, salas de apoyo, archivos y comunicaciones.
