![]() |
| © Taisuke Ogawa |
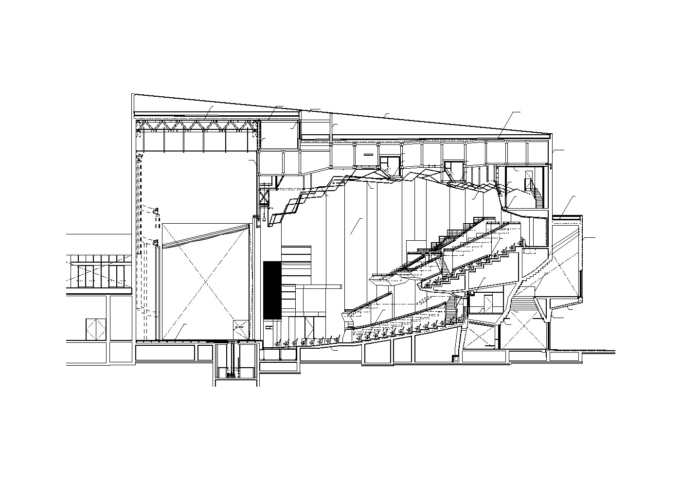
Located in Ofunato, a town on the distinctive Sanriku Kaigan coastline of Iwate prefecture in northeastern Japan, Ofunato Civic Center and Library is a cultural building complex which consists of a main hall with 1100 seats, a library, multi-purpose spaces, an atelier, a tea room, and a studio. In its development, regional workshops and fieldwork have been organized by more than 50 times to make communication among architects, local residents and public officers.
Following those workshops, programs of each function were verified, and a library was added as per requests from its locals. How to represent its local form has also been discussed in order to design a new iconic community space. In workshops, architects were required not to adhere to any particular forms or ideas, and to discern architecture, the form of space, from something ambiguous. Through many events, the power in its creating process of architecture motivated the local involvement in the project. Consequently, it has attracted more than 20,000 people every month in a city of 40,000 people since it was inaugurated.




















