
Courtesy of Menkès Shooner Dagenais Le Tourneux Architectes
The alveolate structure has been transposed to create an elegant motif displaying a variety of textures that responds to the changing light. The screen openings of the facade reproduce both the scale and the texture of the local brick, which are enriched through a wide range of colors ranging from silver to gold. The blue of the Pfizer logo is also very visible and create a recurring theme; it occurs both on the external facade and in the core of the building. A bond is created between the industrial park, the highway, the company and the building space. Vivid and contemporary, the facades give expression to the unity of the whole. Inside, the redefinition of the site offers brand new, healthy and inspiring workspaces leading the way to a greater economic impact while attracting utmost qualified employees.
Courtesy of Menkès Shooner Dagenais Le Tourneux Architectes
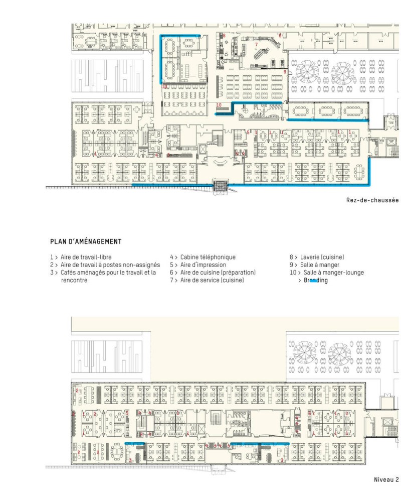
Change in culture. The occupancy ratio between common areas and closed offices went from 44/56 to 85/15. Eight hundred and sixty individual work stations have been streamlined and opened up through innovative design to increase productivity and the comfort of users. They focus on intercommunication between employees and an enhanced approach to cooperation. The interconnections are tangible: work, relaxation and service areas have been designed to innovate and optimize the sharing of ideas. All work stations are enclosed by lateral and transversal traffic corridors to ensure fluidity and ease of movement between groups.

Physical departmental barriers have been removed in order to promote the social values of the company. Access points offer the possibility of modifying group working areas, particularly in terms of workloads. Flexible and open work areas have been developed as well as private areas, glassed conference areas with a view over the gardens and the work rooms located on the periphery of the working areas. The result of this organization is a fluid ring of traffic. The full redefinition of work functions and qualities for employee work stations ensures that employees will discover new ways to live and work.

Courtesy of Menkès Shooner Dagenais Le Tourneux Architectes
The construction materials used, such as clear and opaque glass, aluminum and wood, reflect ambient light to create texture. The distribution and arrangement of these primary materials also highlight the multiple functions of various spaces. The entrance way to the main building offers luminous integration to the new façades which act as curtain walls. Materials were chosen not only for quality and longevity, but also for their technical features and plasticity.
The design concept is based on the enhancement and the democratic access to natural light, in order to ensure that it illuminates each work station. The floor plan made possible the generous use of windows to ensure an abundance of natural light and views. All work areas are bright and luminous. The closed offices and conference rooms have windows and are located in the central nucleus of the building in order to benefit as much as possible from borrowed light. Thanks to an open design, most work areas have optimal access to natural light.















