![]() |
| © Dietmar Tollerian |
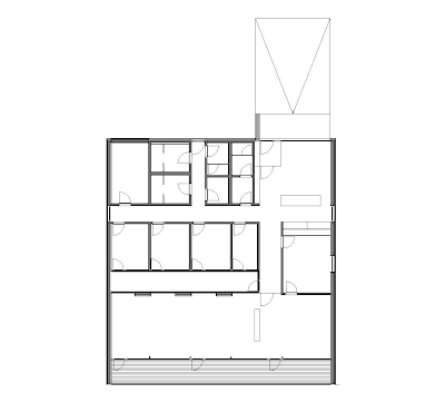
Over the past years, Thomas Plöckinger-Schatzl and his team have expanded their services. Besides classical physiotherapy, they now also offer medical exercise therapy, massage, and the sale of training and therapy utensils. The integration of all these services made building a new practice essential. The space solution developed by Schneider & Lengauer integrates these requirements and therefore provides a simple, smooth and barrier-free organisation of all work areas.
The customer enters the building via a ramp that is paved up to the front door. The waiting area in the foyer is complemented with wardrobes and sanitary facilities to prevent carrying of road dust and dirt inside the building. The deliberately simply and functionally designed therapy rooms are separated by an atrium, as are the cardiac and sports medicine training area.
The atrium, enclosed by a floor-to-ceiling glass gantry construction and anodised aluminium panels, supplies both areas with sufficient brightness. It is lined with white pebbles and has bamboo growing at its centre – a calming sight, enhancing focus on one’s own therapy. The cardio area has a terrace in front, which serves as a space for rehabilitation measures (e.g. gait training).
![]() |
| © Dietmar Tollerian |
![]() |
| © Dietmar Tollerian |
![]() |
| © Dietmar Tollerian |
![]() |
| © Dietmar Tollerian |
![]() |
| © Dietmar Tollerian |
http://www.archdaily.com/265641/physiotherapy-and-rehabilitation-centre-pur-schneider-lengauer/









