12 de enero de 2011.

© Marc Cramer
Architects: ACDF* Architectes
Location: Orléans, Ontario, Canada
Client: Cité Collégiale
Project Area: 57,000 sq ft
Project Year: 2009-2010
Photographs: Marc Cramer

La Cité collégiale is a French-language college of applied arts and technology located in Ottawa, Ontario, Canada. To ensure that enough trained skilled trades workers are available to keep our economy moving forward, La Cité collégiale decided to organize an architectural competition for the realization the New Research and Training Centre in Construction Trades as the first phase of the new Campus of Orléans. The centre will allow La Cité collégiale to almost triple its apprenticeship program, to include training in 18 high-demand construction trades. This new building will include workshop, laboratories, studios, and classrooms.

The Trades Centre project proposed by the architects pays special attention to archi- tecture issues, site organization and potential for future development. It ensures consistency of buildings throughout the territory, construction quality, respect of rural identity and recognition of the regional territory icons and landscape memory. The new facility will take advantage of the topography and of the immediate site by deploying in a unique landscape and ecologic set. The proposal aims to define a concept of unique development that perfectly integrates its environment. It reflects a distinctive architecture while clearing the atmosphere suitable for student life. The objectives considered in the architectural approach are:
•Composition of a quality project that stands out positively in terms of architecture, urbanism, landscape and environment;
•Ensure a high visibility from the regional road during the day and night;
•Ensure a strong dialogue with the natural components of the site and landscape;
•Enhance the existing streams and revitalize the banks;
•Provide a comprehensive site plan management that will, over the time, generate a consistent link with the regional landscape memories;
•Provide a flexible concept that will ensure the sustainability of the project and architectural design.

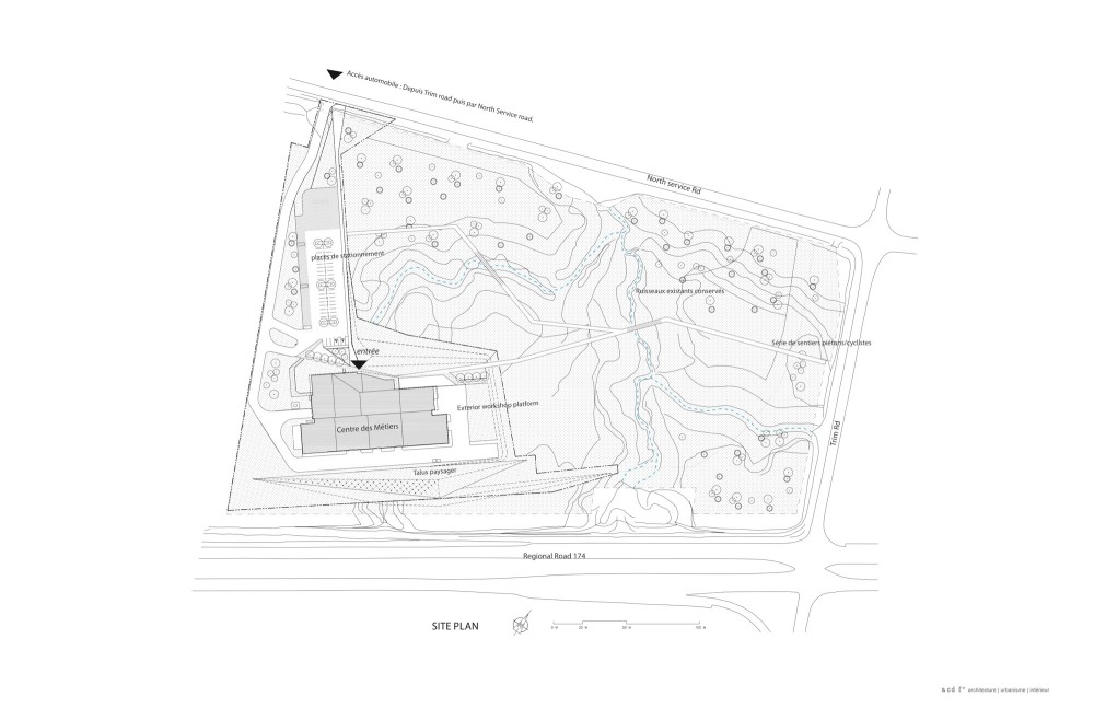
The richness of the different agricultural landscape strata and the richness of the topography of the site are the starting points of our conceptual approach. The analysis of the features of the site can see the richness of the dialogue between the topography of the area and the new building and the contrast between the peaceful and contemplative character of the landscape and the dynamic movement at the cars.

Like a vegetal plate that rises above the ground, the concept proposes the development of a sculptural planted roof, a kind of reconstituted topography who engaged a dialogue with the horizontal natural landscape while generating a strong sculptural presence on Route 174.

The Trades Centre project is orientated according to the frame of rows. The position of the buil- ding highlights topographical depressions and streams. The parking lots match with the path and are not visible from Highway 174, in order to magnify the project and its development into the natural landscape. The project’s implementation allows further development to the North and the East while maintaining the logical hierarchy of the main entrance first.

To highlight the horizontal nature and topography of the project, a land form is proposed along Route 174. The land form, planted with reflectors, will identify the project on Route 174 and mark the specific topography, landscape and ecological aspects of the project.

Integration of Sustainable Design
The landscape project revolves around the existing drainage ditches on the site. Through decades of development in the agricultural sector, streams have remained intact and functional for collec- ting surface water from field to river. This drainage network becomes the generating element of the design. It is the central point around which all the formal language of the site articulates and where all the principles of ecological landscaping emerge. These gaps’ prints, such as an open hand, extend its fingers in every direction, providing texture and atmosphere within the agricul- tural matrix. This matrix is magnified and integrated into pedestrian circulation throughout the campus, defining areas of building settlement, landscaped green spaces and functional spaces. The pedestrian corridors link the future buildings crossing the green areas and stepping over the streams through bridges.

New plantings are organized into two formal languages. The first one is composed of indigenous pioneer plants that are settled in the ditches following the contour lines and interacting with the existing woodlands to create, with years, rich ecological and spatially well defined corridors. The second one is composed of large-scale trees, planted along the agricultural frame and cutting in a formal way the collective spaces, the functional public site, such as parking lots and grassy areas.

Innovation in Addressing Program and/or the Clients’ Requirements
The project generates a strong sculptural presence on Highway 174 and sets down the Trades Centre as a benchmark in the community and regional landscape. The proposed building location allows future development to the North and East sides while maintaining the logical hierarchy of the main entrance at the start of the visit.

Pending further development, this is where a platform for external outdoor courses and exhibi- tion of student’s projects will be installed.

The presence of the belvedere, a headland reached by a wide staircase / agora, offers a view on the river and the landscape of the region, but also on the platform for educational purpose (green roof, mechanical appliance).

The sculptural and aerial character of the concept can generate a multitude of programmatic arrangements that give the project a perfect flexibility in the process of establishing a school through an architectural competition. This will make it possible and easy to adapt the planning of program functions, to project future expansions while retaining the basic concept.

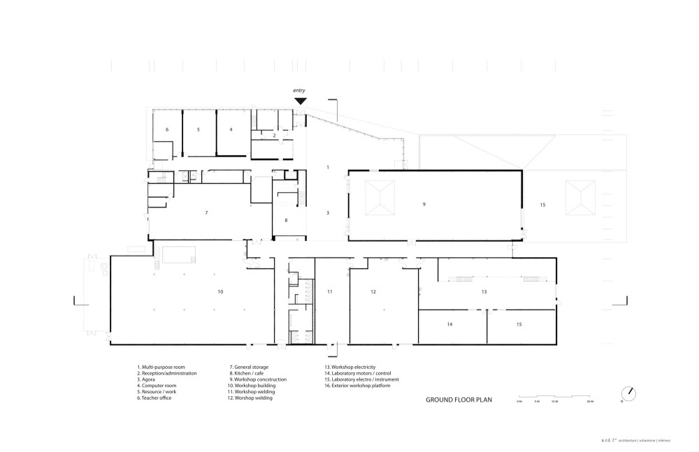
The Trades Centre is mainly organized on one level and, programmatically, is divided into two sectors: the construction sector [workshop / warehouse / hangar] and the education sector [admi- nistration, classrooms, multipurpose hall and student services]. Spatially, the Centre consists of a heart [the shed, the agora and the storage] a space of construction, discussion / dissemination and materiality. This core is surrounded to the South by shops, and to the North by administrative and teaching areas.
The East-West section shows the education sector, the main entrances, the spatial fluidity and the great curtain wall facing the site and the Ottawa River. The green roof and the access to the belvedere are also visible on it. The North-South section demonstrates the relationship between the Trades Centre, Route 174 and the topography of the site. This view also explains the visual and acoustic protection that can offer the bank while showing a breathtaking view of the building. The natural sunlight is recom- mended for workshops.

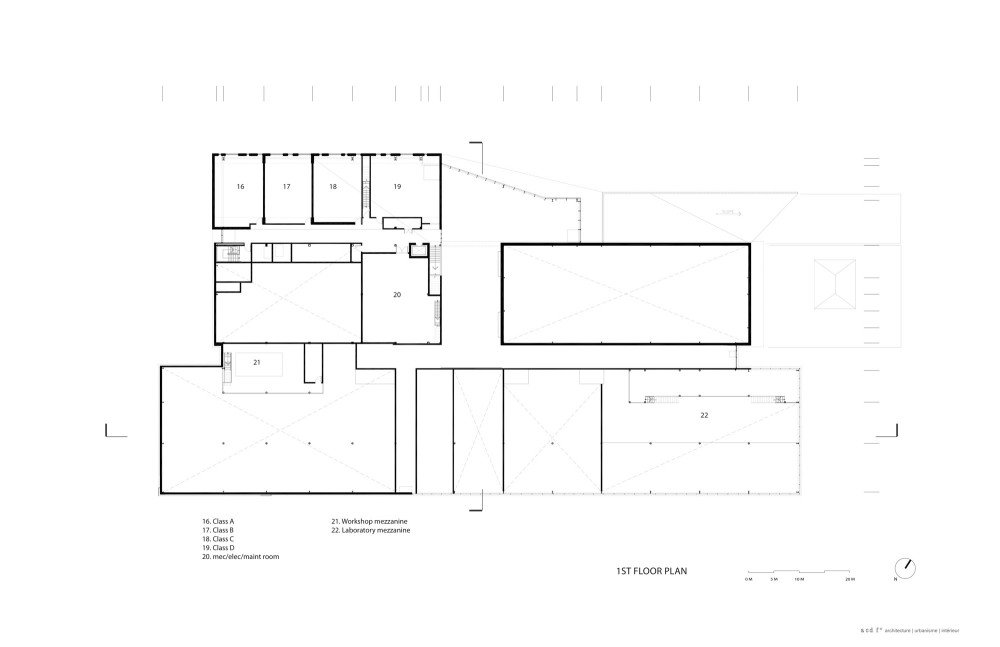
The second level enjoys abundant natural light and offers spectacular views of the site and the Ottawa River. Simple glass partitions are placed below the class timber volume and represent the administrative area of the Trades Centre. This sector is composed by the director’s office, his assis- tant (e) and teachers’ offices, a working and resource room, the staff lounge and a multipurpose conference room.
The construction details of the building will exhibit and showcase construction techniques so that students can appreciate and understand the different components required in building construction.
http://www.archdaily.com/103509/research-and-training-centre-in-the-construction-trades-acdf/#more-103509