20 de enero de 2011.

© Kaido Haagen
Architects: Salto AB
Location: Kreutzwaldi 3, Tartu, Estonia
Credits: Maarja Kask, Karli Luik, Ralf Lõoke
Interior designer: Katrin Kaevats, Jaan Port
Structural design: OÜ Pikoprojekt
Project area: 4,600 sqm
Project year: 2009
Photographs: Kaido Haagen, Reio Avaste & Karli Luik

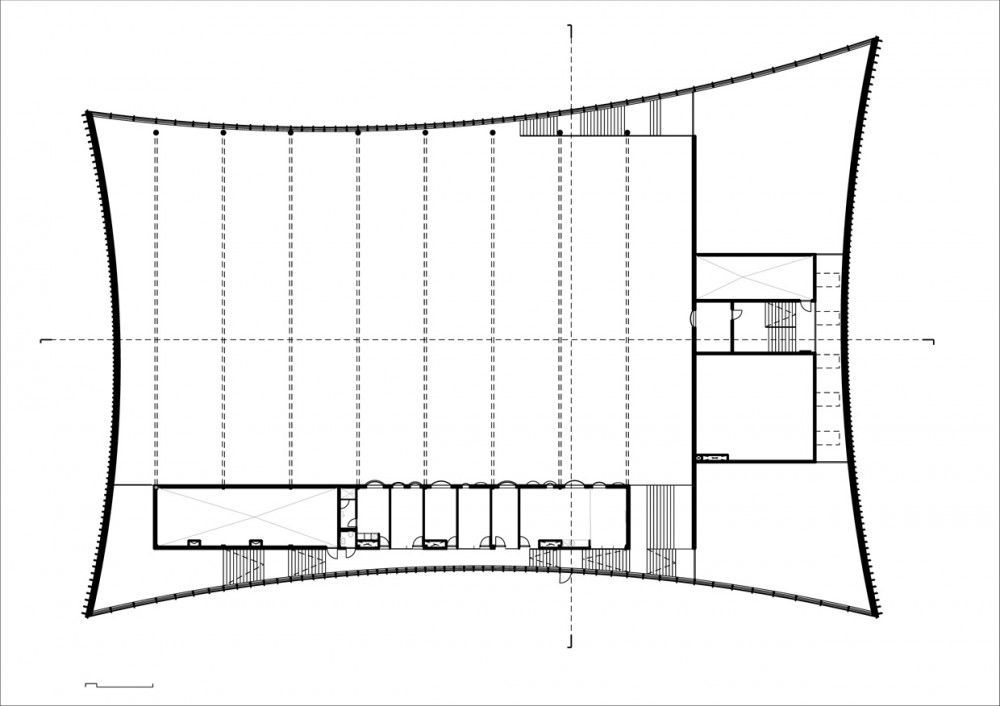
The buildings of the Estonian University of Life Sciences are located at the North-Western edge of Tartu, bordering with Tähtvere forest park. The institution set out to integrate its campus and freshen its image with innovative architecture achieved with the help of open architectural competitions. In 2007, the competition for a new sports hall was held, followed by a competition for new auditorium annexes for the forestry building in 2008.

The chosen plot for the sports hall was an empty, flat field right at the roadside at the entrance to town, so in addition to functionality and ability to integrate and organize the surrounding campus area, the competition, in a way, expected a greater degree of representation than the building type would normally imply. At the same time, the spatial programme of a sports hall largely prescribes the possibilities of designing the main volume. We decided to stretch all corners of the cubic volume, and to integrate the building organically with landscape.

Elevated ground forms a „cushion“ for the slightly entrenched building, thus optically minimising its volume, and continues in undulating forms, encompassing outdoor sports grounds and bicycle paths, towards a sloping valley further away. The streched-out corners of the building create concave lines both in plan and elevation, gently relating to landscape and softening the size of the building. At the same time the building retains sharpness, enabling constantly varying, expressive views from various angles.

This is due to optical effects of the form, clear-cut lines and finishing materials – glass on the longer sides of the building and larch cladding with wooden snags (nicknamed „hair“) on the shorter ones. The latter also add to the subtle play of overall optical effects, being shorter and denser in the middle, and longer and more widely placed at the edges. The snags coloured red form the name of the building – EMÜ spordihoone.

In the interior, the same attitude continues – a limited repertoire of considered details and takes. Moving around, the overall feel is light and airy, easy to navigate. The streched-out plan creates unconventional interior spaces. The choice of colours and materials is strictly limited to smooth exposed concrete and painted carroty surfaces with details in matte and shiny black. Irregularly placed bubbly interior windows opening towards the ballgames hall add a touch of frisky lightness and are echoed in the round glazed openings in gallery floor. In a delicate way, one is reminded that a sports hall is a bodily space – e.g. the concave outline of the building creates galleries narrowing in the middle, and with glazed openings in the floor the resulting space sharpens one’s bodily experience of space.










http://www.archdaily.com/104586/sports-hall-of-the-estonian-university-of-life-sciences-salto-ab/#more-104586