29 de noviembre de 2010.

© FG+SG – Fernando Guerra, Sergio Guerra
Architects: João Luís Carrilho da Graça
Location: Portalegre, Portugal
Project Team: Inês Lobo, João Maria Trindade, Flávio Barbini, Maria João Barbini, Luís Barros, Filipe Homem, Paula Miranda, Susana Rato, Pedro Ricciardi, João Manuel Alves, Inês Cortesão, Joanna Malitzki
Trainees: Andreia Salavessa, Julieta Cunha, Sandra Macieira
Graphic Modelling: Nuno Pinto, João Rosário
Foundations and Structure: AFA consultores de engenharia–António Adão da Fonseca
Water, Drainage and Gas Installations: AFA consultores de engenharia – Paulo Silva
Mechanical Installations: AFA consultores de engenharia –Isabel Sarmento
Building Physics: NATURALWORKS – Guilherme Carrilho da Graça
Electrical Installations, Telecommunications, and Security: AFA consultores de engenharia –Alexandre Martins and Fernando Aires
Project Area: 3,050 sqm
Project Year: 1993-2008
Photographs: FG+SG – Fernando Guerra, Sergio Guerra

Buildings should be simple and warm.

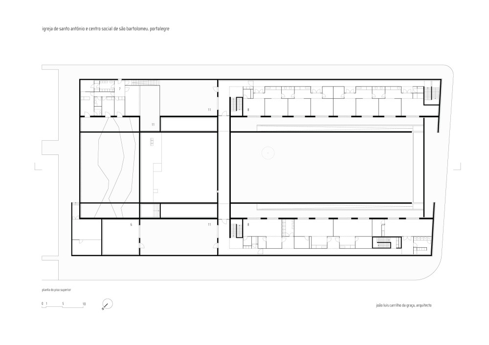
Seen from the outside, the building appears as an elementary volume formed by its white surfaces. The main space is defined by the spatial continuity that takes us from the street and swifts us to the quartz stone, left naked.

First the entrance portico. Next the courtyard, with two ramps on both sides and the community centre sidewings. In the end, the church itself – unexpectedly transparent due to its glass walls

© FG+SG – Fernando Guerra, Sergio Guerra
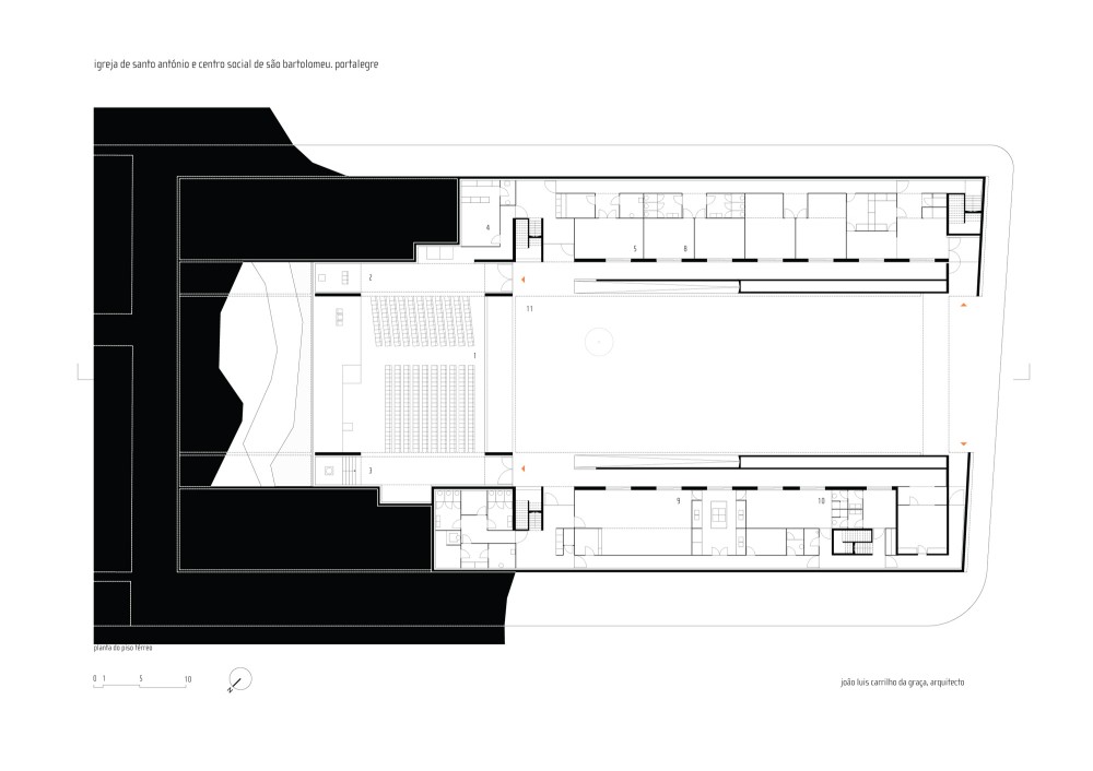
Another patio creates a stage setting for the church room, composed by the existing stone, air, zenithal lights, water and plants. An exterior space open to contemplation.

The church’s assembly room is almost a square plan. The altar is also a square table. These static and centered forms allow us to feel, although being presided, that this celebration is performed by a group of willing people.

The extreme simplicity of the space, the architectural form and all the objects design, create a sense of “freedom” where the main characters are the people and the events.

Architecture must stage the minimum in the most intense way.






http://www.archdaily.com/91978/st-antonio%e2%80%99s-church-st-bartolomeu-social-center-jlcg-arquitectos/#more-91978