Si ya es agradable ver que un bello edificio también puede funcionar como supermercado, para nosotros más lo ha sido saber que además se trata de una arquitectura sostenible/sustentable, ya que este negocio tiene la capacidad de generar más energía de que la consume. Este Climate Protection Supermarket se ha construido en la ciudad austríaca de Graz, y ha conseguido la certificación de oro de la ÖGNI (Austria Green Building Council).
Para conseguir esa proeza, el proyecto se ha basado en estos cinco puntos:
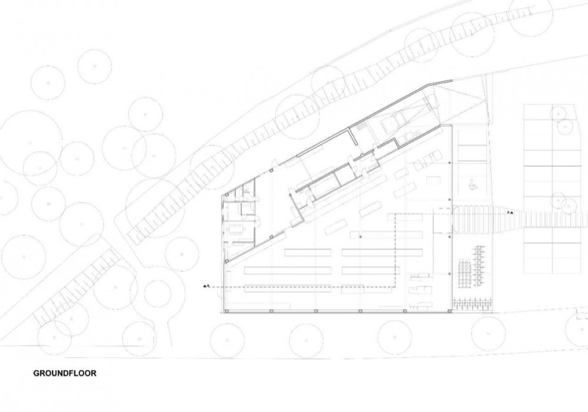
1.Un gran aislamiento en la envolvente del edificio. Algo fundamental para conseguir reducir al máximo sus necesidades energéticas en climatización.
2.El interior tiene un sistema de ventilación con recuperación de calor, y lo que parece ser una instalación de calefacción y refrigeración por suelo radiante (en el texto original se denomina “sectional foundation slab for cooling and heating“); iluminación por LED, y sistema de control de la luz natural con el fin de reducir el consumo eléctrico.
3.Empleo de materiales de construcción sostenibles. Reciclables, no-tóxicos y sin disolventes.
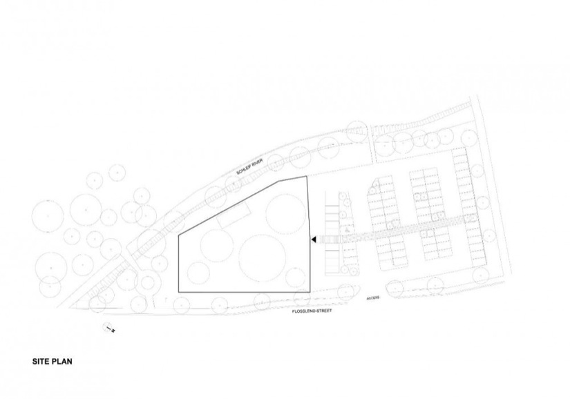
4.Microclima del lugar. Se ha puesto mucho en empeño en crear tantos espacios verdes como fuera posible, incluso en la cubierta (en la foto aún se ven de color tierra), que está diseñada para lograr además un equilibrio hidrológico por lixiviación.
5.Generación de energía. En dicho establecimiento se ha creado una planta con paneles fotovoltaicos, y una turbina hidroeléctrica en el caudal del canal Mühlgang cercano. El total de energía generada supera a la que la tienda necesita.
Aparte de todas estas buenas características sostenibles, tenemos como resultado un edificio moderno e innovador en su género, con una potente fachada chapa de acero galvanizado y madera. Una maravilla!











